Найти в Дзене
Лесстрой Портал

Дом с гаражом из пеноблоков за 2.8 млн руб

Проект дома № 264 из пеноблоков от строительной компании "ДревПроектСтрой". Стоимость от 2 876 000 руб в комплектации "под крышу" Просторный одноэтажный дом с гаражом может стать идеальным местом для проведения летнего отдыха или для постоянного проживания. Это дом будет Вам дарить круглый год удовольствие и предоставит шикарные возможности для отдыха дружной семьей или дружной компании друзей. В наше время многие предпочитают строить дома из блоков. Этот материал является подходящим для строительства дачных и загородных домов. Если для вас соотношение цены и качества играет важную роль, присмотритесь внимательно к этому материалу. Блок обладает теплоизоляционными показателями аналогичными натуральному дереву, однако он устойчив к огню и гниению. Дом из блоков: 157,45м². Размеры 16150 х 10100. 1 этаж: 157,45м². Терраса 4,66м², Спальня 9,35м², Коридор 11,04м², Гардероб 3,67м², Санузел 5,75м², ², Санузел 5,75м², Спальня 13,40м², Кухня 7,49м², Гостиная 30,72м², Гараж 31,12м², Котельная 4,

Проект дома № 264 из пеноблоков от строительной компании "ДревПроектСтрой". Стоимость от 2 876 000 руб в комплектации "под крышу"

Просторный одноэтажный дом с гаражом может стать идеальным местом для проведения летнего отдыха или для постоянного проживания. Это дом будет Вам дарить круглый год удовольствие и предоставит шикарные возможности для отдыха дружной семьей или дружной компании друзей.

В наше время многие предпочитают строить дома из блоков. Этот материал является подходящим для строительства дачных и загородных домов. Если для вас соотношение цены и качества играет важную роль, присмотритесь внимательно к этому материалу. Блок обладает теплоизоляционными показателями аналогичными натуральному дереву, однако он устойчив к огню и гниению.

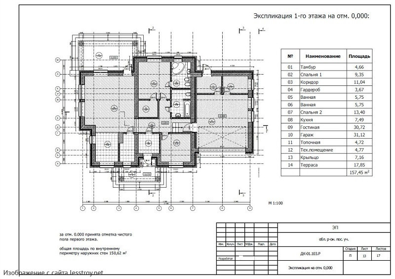
Дом из блоков: 157,45м². Размеры 16150 х 10100.

1 этаж: 157,45м². Терраса 4,66м², Спальня 9,35м², Коридор 11,04м², Гардероб 3,67м², Санузел 5,75м², ², Санузел 5,75м², Спальня 13,40м², Кухня 7,49м², Гостиная 30,72м², Гараж 31,12м², Котельная 4,72м², Техпомещение 4,77м², Крыльцо 7,16м², ², Терраса 17,85м².

Варианты изготовления стенового комплекта :

  • оцилиндрованное бревно естественной и камерной сушки от Ø- 200 до Ø-400 мм.
  • Профилированный брус естественной и камерной сушки.
  • Ручная рубка.
  • Клееный брус.
  • Карельская сухостойная сосна «Кело», г. Костомукша.
  • Пеноблок, газосиликатный блок, пустотелый кирпич и т.д.
-2