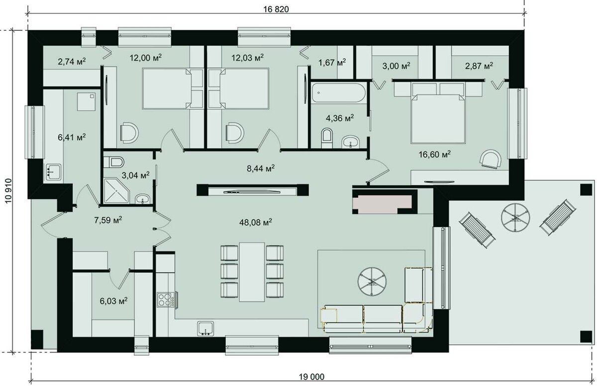
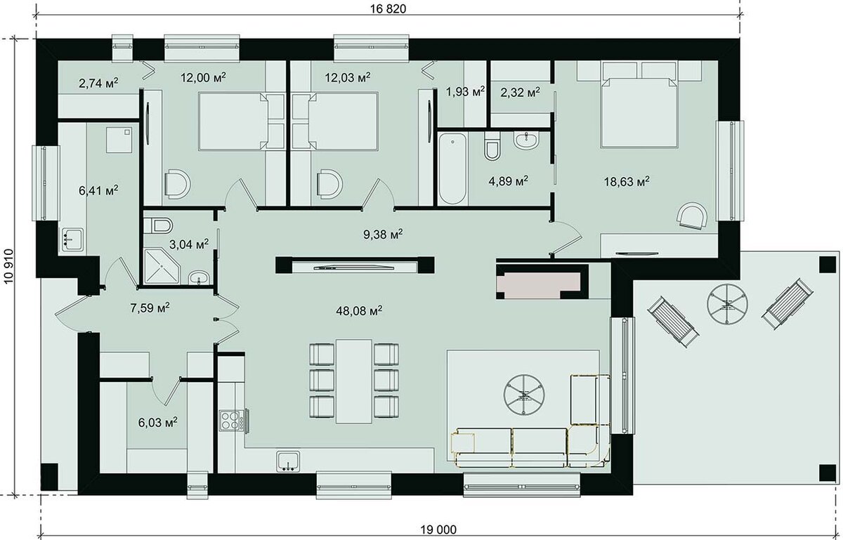
Проект АТОЛЛ - вариант одноэтажного дома КОРСИКА, выполненный с отделкой стен кирпичом (базовый дом - оштукатуренный) Коттедж АТОЛЛ можно построить на участке шириной от 17 метров. АТОЛЛ - проект практичного дома для постоянного проживания семьи из 3-6 человек. Особенности планировки - деление плана на две примерно равные вытянутые полосы - правую общую, и левую - жилую. Интерьер дома - современный, с раскрытым общественным пространством, но благодаря грамотному зонированию и необычной планировочной схеме сохранена приватность там, где это необходимо. Кроме представленного типового варианта, планировку можно сделать как в доме КОРСИКА или САРДИНИЯ, либо в другом, нужном Вам варианте. Тонкие перегородки - не несущие, можно переставлять; также можно произвольно двигать или добавлять окна - конструктив и художественный стиль позволяют. Переднюю часть плана занимают хозяйственные помещения - котельная и кладовая сезонных вещей. Это позволяет создать защитную зону между внешним шумом и жил
АТОЛЛ 131 м2 - проект узкого дома 11х19 с гостиной-лофт, мастер-спальней и двумя детскими
9 июля 20219 июл 2021
7049
2 мин
