Найти в Дзене
Studio57

ИНТЕРЬЕР КВАРТИРЫ 115 М2 В СКАНДИНАВСКОМ СТИЛЕ

Уникальный и универсальный интерьер квартиры в скандинавском стиле. Простота - это наивысшая форма утончённости! Интерьер и ничего лишнего. Белоснежная лаконичная кухня-гостиная, особый шарм которой придаёт столовая группа из натурального дерева. Сам гарнитур выполнен в светлых бело-серых оттенках. В кухне захотелось сделать свежий цветовой акцент, поэтому пенал со встроенной техникой мы выполнили в бирюзовом оттенке. Особым пожеланием заказчиков было сделать открытую полку для хранения кулинарных книги предметов декора. Лаконичная светлая прихожая площадью 12 м2 ✨ В проекте две ванные комнаты ( а точнее, ванная и душевая). Они выполнены в спокойных тонах с использованием деревянных элементов. На стенах крупноформатная плитка, чтобы визуально не делать небольшие пространства ещё меньше, а в качестве акцента наоборот выступает более мелкая цветная плитка-кабанчик. Какая ванная вам нравится больше: 1 или 2?) Сейчас прослеживается большой тренд на встроенную мебель в детских комнатах. Од
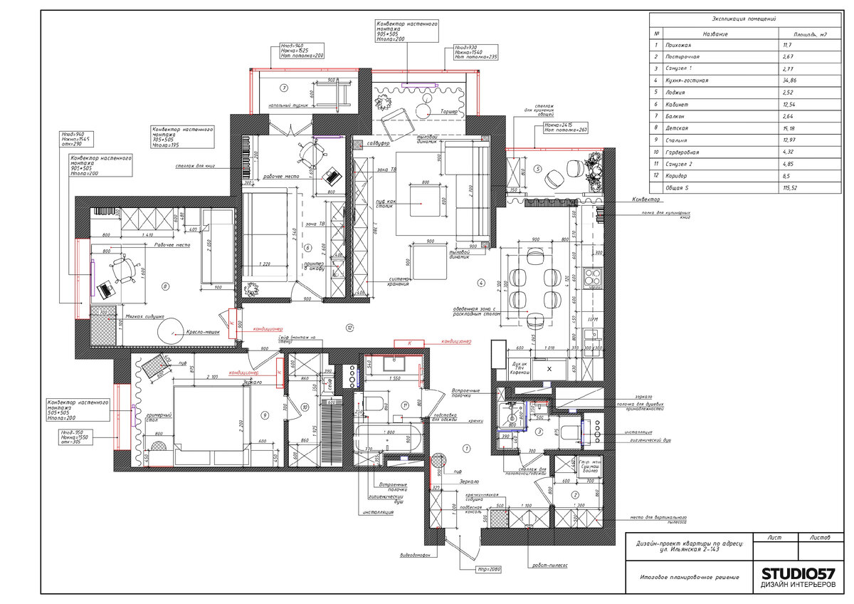
Итоговое планировочное решение
Итоговое планировочное решение

Уникальный и универсальный интерьер квартиры в скандинавском стиле. Простота - это наивысшая форма утончённости! Интерьер и ничего лишнего.

Белоснежная лаконичная кухня-гостиная, особый шарм которой придаёт столовая группа из натурального дерева. Сам гарнитур выполнен в светлых бело-серых оттенках.

В кухне захотелось сделать свежий цветовой акцент, поэтому пенал со встроенной техникой мы выполнили в бирюзовом оттенке. Особым пожеланием заказчиков было сделать открытую полку для хранения кулинарных книги предметов декора.

-4

Лаконичная светлая прихожая площадью 12 м2 ✨

В проекте две ванные комнаты ( а точнее, ванная и душевая). Они выполнены в спокойных тонах с использованием деревянных элементов. На стенах крупноформатная плитка, чтобы визуально не делать небольшие пространства ещё меньше, а в качестве акцента наоборот выступает более мелкая цветная плитка-кабанчик. Какая ванная вам нравится больше: 1 или 2?)

Сейчас прослеживается большой тренд на встроенную мебель в детских комнатах. Однако мы старались в большей степени использовать мобильную мебель, чтобы при необходимости комната могла трансформироваться.

Интерьер спальни минималистичный и светлый. Большая кровать с системой хранения, мобильная тумба у кровати с одной стороны и гримёрный столик - с другой. В качестве освещения спальной зоны были выбраны бра, так как заказчики любят читать перед сном. В спальне имеется своя гардеробная с необходимыми полочками для хранения.

Кабинет получился довольно функциональным и вместительным, несмотря на площадь в 12 м2. Тут есть стеллаж с комбинированной системой хранения и дополнительной подсветкой. Месторасположение стеллажа в углу напротив рабочей зоны выбрано неспроста: заказчик совершает много онлайн-звонков по работе, поэтому его пожеланием было разместить за спиной интересный объект, который будет красиво смотреться на заднем плане.

Белоснежная лоджия украшена зеленью для придания максимальной свежести помещению.