Добавить в корзинуПозвонить
Найти в Дзене
МОНОЛИТ-ХАУС

Построили дом, теперь строим баню

Двухэтажный компактный с мансардной кровлей дом из газобетона в деревне Коккорево Всеволожского района Ленинградской области был построен в 2014-2015 годах. Отделка фасадов дома была выполнена облицовочным кирпичом. Устроена утепленная кровля из металлочерепицы и смонтированы металлопластиковые окна. Общая площадь дома – 152 м2, жилая – 95 м2. Внутренние помещения дома предельно рациональны и практичны. Половину первого этажа занимает просторная гостиная с камином и выходом на застекленную веранду и компактная кухня – столовая. Вторая половина отдана под кабинет, гардероб и техническое помещение. Нашлось место и небольшому санузлу. На втором этаже разместились три спальни, в одной из которых есть выход на небольшой балкончик, просторная ванная комната и кладовая.Со временем площадь земельного участка этого дома в Коккорево увеличилась и появилась возможность построить баню с просторной комнатой отдыха и открытой зоной барбекю. Проект так же был разработан архитектурным отделом Монолит-

Двухэтажный компактный с мансардной кровлей дом из газобетона в деревне Коккорево Всеволожского района Ленинградской области был построен в 2014-2015 годах. Отделка фасадов дома была выполнена облицовочным кирпичом. Устроена утепленная кровля из металлочерепицы и смонтированы металлопластиковые окна.

Монолит-Хаус. Дом из газобетона.
Монолит-Хаус. Дом из газобетона.

Общая площадь дома – 152 м2, жилая – 95 м2. Внутренние помещения дома предельно рациональны и практичны. Половину первого этажа занимает просторная гостиная с камином и выходом на застекленную веранду и компактная кухня – столовая. Вторая половина отдана под кабинет, гардероб и техническое помещение. Нашлось место и небольшому санузлу. На втором этаже разместились три спальни, в одной из которых есть выход на небольшой балкончик, просторная ванная комната и кладовая.Со временем площадь земельного участка этого дома в Коккорево увеличилась и появилась возможность построить баню с просторной комнатой отдыха и открытой зоной барбекю.

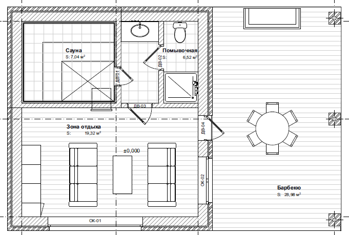
Монолит-Хаус. Проект бани с зоной отдыха и барбекю
Монолит-Хаус. Проект бани с зоной отдыха и барбекю

Проект так же был разработан архитектурным отделом Монолит-Хаус и летом 2021 года начал воплощаться в жизнь.

Монолит-Хаус. Подготовка к устройству монолитной железобетонной фундаментной плиты
Монолит-Хаус. Подготовка к устройству монолитной железобетонной фундаментной плиты

Для устройства этого небольшого фундамента потребовалась 100 прутков рифленой арматуры диаметром 12мм и 15м3 бетона марки В22,5. Баня будет, как и дом, построена из газобетона. Возведение стен в самом разгаре!

Монолит-Хаус. Возведение стен бани.
Монолит-Хаус. Возведение стен бани.
Монолит-Хаус. Проектируем и строим дома с 2007 года.
Монолит-Хаус. Проектируем и строим дома с 2007 года.