Найти в Дзене

Проект гаража АСД-Венеция на 2 машины

Предлагаем вашему вниманию проект двухэтажного гаража на два машиноместа. Характеристики проекта:
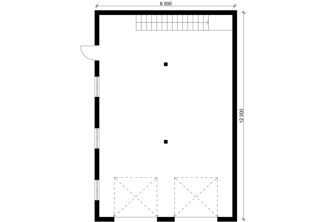
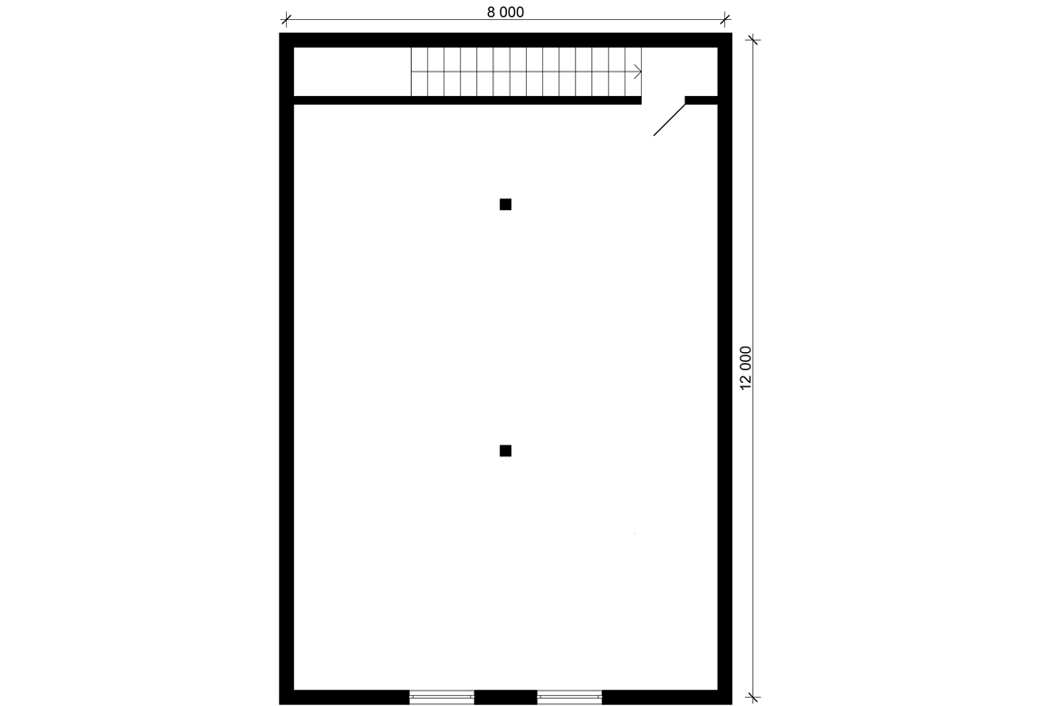
Площадь: 190кв.м.
Размеры: 12х8м Стоимость гаража в комплектации "Коробка" из газоблока - 2 280 000 руб.
Также на усмотрение заказчика возможно строительство гаража из других строительных материалов. Работаем строго по договору! Предоставляем гарантию 15 лет! Подробная информация о других комплектациях данного проекта, калькулятор строительства на странице: https://ro-stroj.ru/katalog/proekty-garazhej/proekt-venetsiya Вопросы о проекте или строительстве гаража под ключ можете задавать по телефону +7(495) 989 84 54

Вид гаража спереди
Вид гаража спереди

Предлагаем вашему вниманию проект двухэтажного гаража на два машиноместа.

Характеристики проекта:
Площадь: 190кв.м.
Размеры: 12х8м

Стоимость гаража в комплектации "Коробка" из газоблока - 2 280 000 руб.
Также на усмотрение заказчика возможно строительство гаража из других строительных материалов.

Работаем строго по договору!

Предоставляем гарантию 15 лет!

Подробная информация о других комплектациях данного проекта, калькулятор строительства на странице: https://ro-stroj.ru/katalog/proekty-garazhej/proekt-venetsiya

Вопросы о проекте или строительстве гаража под ключ можете задавать по телефону +7(495) 989 84 54