Добавить в корзинуПозвонить
Найти в Дзене

Так сколько же стоит кухня? И почему нормальные студии никогда не скажут вам цену за метр.

Если вы хотите, чтобы у мебельщика задергался глаз, то спросите у него "сколько стоит кухня?", но ни в коем случае не давайте своих размеров, а на все уточняющие вопросы отвечайте "ну кухня!", " ну стандартная", " ну зелененькая такая с деревянной столешницей", и все, чтобы больше никакой конкретики, но взгляд, требующий ответа. Для тех, кто впервые на моем канале: меня зовут Оксана и я мебельщик. Это такой же диагноз как алкоголизм или игромания, только деньги платят)))). с 2010 года работала в мебельных магазинах, на строительных базах и в салонах плитки. 11 лет работы #околоремонта и #околодизайна , но все же мебель - любовь всей жизни. Последние несколько лет я проектирую мебель для собственного производства нашей небольшой студии, а так же для сторонних производителей. На этом канале я бесплатно разбираю помещения своих подписчиков и делаю для них проекты мебели. Сегодня поговорим о боли всех, кто работает с нестандартом, и особенно, кухнями. Почему боль? Да потому что сказать

Если вы хотите, чтобы у мебельщика задергался глаз, то спросите у него "сколько стоит кухня?", но ни в коем случае не давайте своих размеров, а на все уточняющие вопросы отвечайте "ну кухня!", " ну стандартная", " ну зелененькая такая с деревянной столешницей", и все, чтобы больше никакой конкретики, но взгляд, требующий ответа.

Для тех, кто впервые на моем канале: меня зовут Оксана и я мебельщик. Это такой же диагноз как алкоголизм или игромания, только деньги платят)))). с 2010 года работала в мебельных магазинах, на строительных базах и в салонах плитки. 11 лет работы #околоремонта и #околодизайна , но все же мебель - любовь всей жизни. Последние несколько лет я проектирую мебель для собственного производства нашей небольшой студии, а так же для сторонних производителей. На этом канале я бесплатно разбираю помещения своих подписчиков и делаю для них проекты мебели.

Сегодня поговорим о боли всех, кто работает с нестандартом, и особенно, кухнями. Почему боль? Да потому что сказать "сколько стоит кухня" не-воз-мож-но без кучи вводных данных. Ниже будет много фото с примерами разлета по цене, внутри одного размера. Вы все сами поймете.

А пока приведу вам примерный диалог, который у меня минимум раз в день случается:

-Добрый день! Сколько у вас стоит кухня?

-Добрый день! Какая вас интересует?

-Ну кухня! обычная

-Нет понятия "обычная", для того, чтобы я назвала вам стоимость, мне нужны размеры, без них никак, расскажите какая вам нужна (хоть примерный размер, примерное наполнение по технике, если будет встройка, материал фасадов) и я все посчитаю, это займет 10 минут, просчет бесплатен и вас ни к чему не обязывает.

-Не нужно считать! Вы мне так скажите, я просто прицениться хочу.

-Это так не работает. Я не могу сказать "так", вопрос не корректен. Вот сколько стоит машина?

-... Ну..... они же разные бывают....

-Вооот. И с кухнями так же они тоже очень разные, хоть на вид похожие. Просчет занимает 10 минут, просто дайте размер и я тут же вам скажу сколько стоит кухня для вас в пленке, в пластике и краске...

-Нет, ну вы же ставили, цены знаете! вот и скажите!

-Хорошо. Цены от 14 000* до бесконечности. Средний чек 70-130 000 (да, даже средний чек имеет значительный разбег).

-Ну вы мне цену за метр скажите, я сама посчитаю, раз вы не можете.

-У нас нет понятия "цены за метр". Потому что "метр" это может быть просто один шкаф с фасадами 500мм на петлях эконом, а может два отдельных корпуса, в каждом из которых по 3 тандембокса (показываю такие варианты на витрине). Оба варианта - метр, но даже в одинаковых фасадах цена будет сильно отличаться. А еще есть глубина и высота, толщина столешницы и разные материалы... мы с вами говорим уже 10 минут, за это время вы бы распечатанный набросок кухни с прописанными ценами во всех популярных материалов фасадов на руки получили, это бесплатно и нужно для того, чтобы мы понимали друг друга, ни к какой покупке вас не обязывает. Считаем?

*цена реальной 2х метровой кухни из лдсп, которая сейчас стоит на витрине. У нас периодически можно поймать "за дешево" мебель, когда мы обрезки и остатки всякие в изделия превращаем.

на этом этапе либо человек сдается и раскрывает-таки тайну своих размеров, и мы реально накидываем его кухню в быстрой программе* и на распечатанном эскизе я пишу цену этого варианта в пленке/пластике/краске, с пояснением что туда входит и что не входит. (сборка и установка у нас по определению входит в стоимость, а вот мойка, смеситель, фартук, техника, подъем на этаж - по желанию, можно у нас заказать, а можно предоставить свои). Либо поджимает губы и уходит без цены. Я принципиально не называю какую-нибудь цену. Скажешь мало - потом будет возмущаться, чего это после замера все дороже, скажешь много - можно отпугнуть зря. Всегда нужно считать.

*на работе я использую две программы, первая онлайн, где можно за 5 минут накидать простые модули кухни, задать им размеры, и для эскиза ее достаточно. А вот когда с наполнением и замером все ясно уже начинается настоящее детальное проектирование в мебельной программе ПРО100 и это уже не 5 минут).

От вот этой прелюдии перед расчетом у каждого мебельщика есть здоровенная мозоль на языке, ведь я привела вам короткую версию, а люди могу увиливать от ответа до 40 минут. И данных не дают, но и уходить не уходят. Л-логика.))))

У меня есть ощущение, что люди боятся, что как только они назовут свой размер и посчитают, из витринного шкафа сразу выскочат два крепких парня, скрутят клиента и заставят оформиться. Ей Богу)))

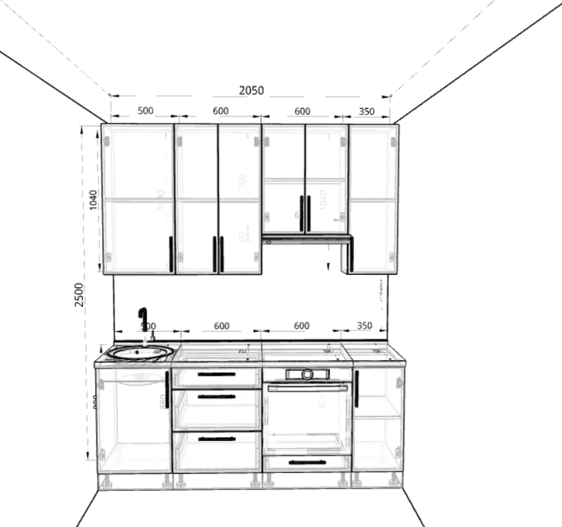
Ну так а что же с ценами? На фото ниже я задала комнату, типичную для пятиэтажки нашего города. В ней нарисую несколько вариантов кухни и под фото пропишу ее стоимость в пленке/пластике/краске на 26.06.2021 в Ростовской области (увы, сейчас цены на материал растут каждый день). Вы увидите как конструктив и материалы влияют на ценообразование.

Посмотрели фото? Как вам разница? Вот и представьте как можно назвать цену за метр? В убыток себе никто работать не станет, поэтому либо будут назвать цену за метр при "полном фарше", а ведь многим столько не нужно и люди просто переплатят за то, чего в их кухне нет, либо назовут цену, а потом после замера она вырастет в два раза и неприятно удивит клиента. Уважающие себя студии и цеха таким не занимаются, а считают конкретно то, что клиенту нужно, чтобы без переплат и сюрпризов а-ля "каша из топора".

Если вы стесняетесь считать мебель в студиях "просто так без покупки" - не стесняйтесь, ведь это нормальный рабочий момент и это единственный способ узнать точную стоимость. Если вы не будете "тренировать" человека с просчетом 30 вариантов без замера, то никто никогда не подумает про вас ничего плохого. Если же вы боитесь, что после просчета на вас будут давить и "навяливать", напишите мне на почту - я разберу ваше помещение в статье, сделаю вам проекты (все бесплатно и анонимно. Мне с этого - контент для статьи, вам - понимание что делать со своими кв метрами). И уже мой проект вы сможете разослать в соц сети и вотс ап студий своего города и попросить его рассчитать, даже лично бегать ни к кому не придется.

Если вы хотите, чтобы я разобрала ваше помещение (бесплатно), то вы должны:

1. подписаться на канал.

2. отправить на почту sprosiumebelshika@yandex.ru план комнаты (можно от руки, вид сверху и размеры), описание всех коммуникаций и карту электрики (опять все можно от руки), список ожиданий от комнаты (что там быть должно обязательно, чего быть не должно, как планируете использовать помещение, что и сколько хранить).

3. быть готовым к уточняющим вопросам.

Спасибо всем, кто дочитал! Всем удачного ремонта и уюта в доме.