Добавить в корзинуПозвонить
Найти в Дзене

Проект загородного дома «Луара» 714а, 320 м2, 3(4) спальни (мастер-спальня), двусветная столовая

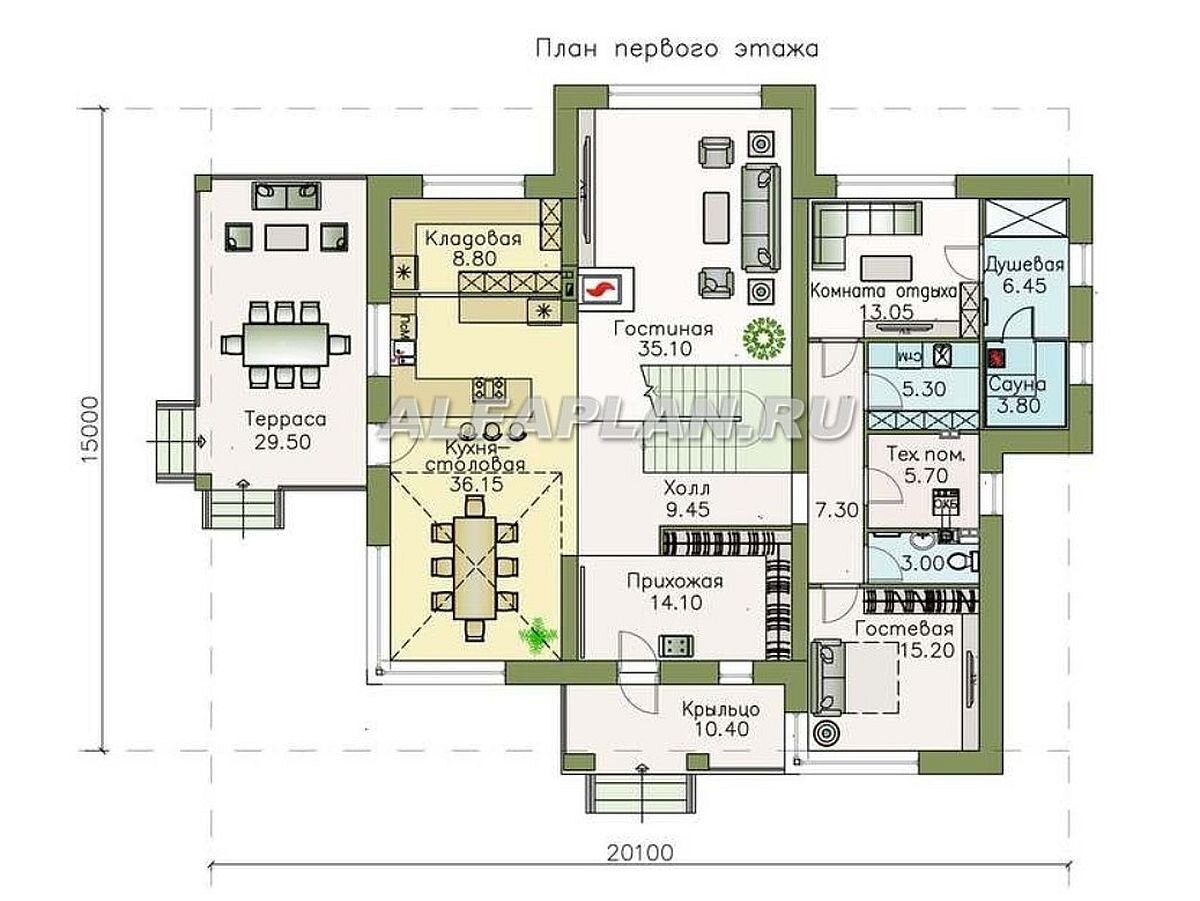
Респектабельный загородный дом «Луара» 714а, 3(4) спальни, мастер-спальня, сауна, двусветная столовая – стильная вилла с угловым остеклением и идеальной планировкой. Отлично подойдет для большого участка и многочисленной современной семьи из 5-6 человек, любящей собираться вместе и принимать гостей. У проекта дома есть прямой и зеркальный варианты (листайте слайд-шоу). Планировка дома исключительно комфортна, все помещения просторны и функциональны. Внутренняя несущая стена делит план 1 этажа на две зоны. Основная часть отведена под гостевую зону активного отдыха, центром которой является единое пространство гостиной-кухни-столовой, включающее в себя также лестницу на 2 этаж. Открытая планировка дает возможность интересных интерьерных решений, а четкое зонирование сделает пребывание здесь удобным. Фасады дома под стать его внутреннему устройству – респектабельны и современны, главное их украшение – угловое панорамное окно высотой в два этажа. Светлый облицовочный кирпич с темными кон

Респектабельный загородный дом «Луара» 714а, 3(4) спальни, мастер-спальня, сауна, двусветная столовая – стильная вилла с угловым остеклением и идеальной планировкой.

Отлично подойдет для большого участка и многочисленной современной семьи из 5-6 человек, любящей собираться вместе и принимать гостей. У проекта дома есть прямой и зеркальный варианты (листайте слайд-шоу).

Планировка дома исключительно комфортна, все помещения просторны и функциональны.

Внутренняя несущая стена делит план 1 этажа на две зоны. Основная часть отведена под гостевую зону активного отдыха, центром которой является единое пространство гостиной-кухни-столовой, включающее в себя также лестницу на 2 этаж. Открытая планировка дает возможность интересных интерьерных решений, а четкое зонирование сделает пребывание здесь удобным.

Фасады дома под стать его внутреннему устройству – респектабельны и современны, главное их украшение – угловое панорамное окно высотой в два этажа. Светлый облицовочный кирпич с темными контрастными деталями, натуральный камень в отделке цоколя и колонн, а также белая горизонтальная полоса штукатурной системы в отделке балкона – все детали продуманны до мелочей и вместе создают строгий и стильный облик дома.

Фасады дома по проекту "Луара" 714а                          ©Владимир Тарасов
Фасады дома по проекту "Луара" 714а ©Владимир Тарасов

Строительство дома под ключ из газобетона или керамического кирпича может быть реализовано в любом регионе России. Готовые проекты домов требуют ПРИВЯЗКИ к участку строительства дома.

Проект дома цена (на момент публикации): архитектурно-строительная документация (АС): 69900 руб, инженерные разделы 18300 руб.

Ставьте 👍👍 этой статье и пишите в комментариях ⬇⬇⬇ Ваши вопросы по планировке дома! С радостью ответим!

Посмотреть подробней проект дома «Луара» 714А и заказать его можно по ссылке.

Вариант проекта 714В с большим гаражом на 2 машины здесь.

Все варианты проектов из коллекции «Альфавилла» см. здесь.

Проект загородного дома "Луара"714В
Проект загородного дома "Луара"714В

Подписывайтесь на наш канал Яндекс ДЗЕН. У нас – только уникальные авторские проекты домов. Еще больше интересных постов в нашем Telegram. , VK, FB.

Стройте дома по проектам ®Альфаплан! «Фото построенных домов» – более 450 фотогалерей строительства домов по нашим проектам.

Проект разработан архитектурным бюро ®«Альфаплан». Архитектурный проект дома является охраняемым объектом авторского права. Воспроизведение визуализаций проекта и/или его частей разрешается с обязательным указанием имени автора и активной гиперссылки на источник.

#загородный дом #проект под ключ #планировка #строительство дома #проект двухэтажного дома