Найти в Дзене
4living

Париж: студия 15 кв.м

Конечно, 15 кв. метров это не слишком много, но для студента, да еще и в Париже – просто мечта. Особенно, если они оформлены с таким безупречным вкусом.  Информация об объекте:
Место: Париж, Франция
Метраж: 15 кв. м
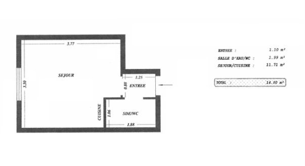
Архитектор: Marion Alberge Эта очень маленькая квартира, купленная для студента, пребывала на момент ее приобретения в самом плачевном состоянии: грязная, тесная и совершенно неудобная.  Очевидно, здесь требовался качественный «освежающий» ремонт, а заодно и более продуманная планировка. Потому что 15 метров все-таки совсем мало. А ведь здесь нужно не только спать, но и учиться, есть, а еще иметь возможность изредка приглашать друзей.  Вписать все потребности молодого владельца в более чем компактный размер взялась Марион Альберж, молодой парижский декоратор-стилист. Студия вышла светлой, чистой и исключительно удобной – мечта не только студента, но и наверняка многих молодых холостяков.  План. Крошечная студия имеет довольно удобный план: прямоугольное пространство цен

Конечно, 15 кв. метров это не слишком много, но для студента, да еще и в Париже – просто мечта. Особенно, если они оформлены с таким безупречным вкусом. 

Информация об объекте:
Место: Париж, Франция
Метраж: 15 кв. м
Архитектор: Marion Alberge

Эта очень маленькая квартира, купленная для студента, пребывала на момент ее приобретения в самом плачевном состоянии: грязная, тесная и совершенно неудобная. 

Очевидно, здесь требовался качественный «освежающий» ремонт, а заодно и более продуманная планировка. Потому что 15 метров все-таки совсем мало. А ведь здесь нужно не только спать, но и учиться, есть, а еще иметь возможность изредка приглашать друзей. 

Вписать все потребности молодого владельца в более чем компактный размер взялась Марион Альберж, молодой парижский декоратор-стилист. Студия вышла светлой, чистой и исключительно удобной – мечта не только студента, но и наверняка многих молодых холостяков. 

-2

План. Крошечная студия имеет довольно удобный план: прямоугольное пространство центральной комнаты (около 12 метров), а остальное – 2-метровая изолированная ванная и малюсенькая прихожая. 

-3

Вид до переустройства: тесно, неудобно, неуютно и темно. Единственное, что Марион оставила от старой отделки – это паркет, который, конечно, был отциклеван и приведен в порядок. Французы с большим пиететом относятся к старым напольным покрытиям и не будут менять их без крайней необходимости. И дело не только в экономичности или экологичности, а еще и в уважении к старым материалам. Сочетание старого и нового – одна из основных примет французского подхода к дизайну. 

-4

Первое, что сделала дизайнер, – расчистила стену от гипсовых панелей и возвела удобнейший шкаф-стеллаж, сделанный строго под размер комнаты. Дверцы открываются нажатием, исключение – только дверцы гардероба, они слишком тяжелые для такого механизма. Все полки сделаны под размер: для CD, виниловых дисков, книг. В стеллаж встроены точечные светильники и розетки для музыкального центра и светильника-шара. 

-5

В нишу вписался компактный диван, который, тем не менее, раскладывается в удобную двуспальную кровать. Разнообразить строгий серый помогли цветные подушки бирюзового цвета – именно он выбран в качестве доминирующего акцента: бирюзовые в студии не только аксессуары, но целая стена напротив библиотеки. 

-6

Красота в деталях: мебели в доме минимум, но она исключительно легкая и изящная. Пример – столики, которые убираются друг под друга. Идеальное решение для небольшой студии – они занимают минимум места, но раскладываются в 3 полноценных журнальных столика, что незаменимо к приходу гостей. Кроме того, с ними можно «играть» раскладывая их лесенкой, что всегда выглядит интересно. 

-7

Марион развернула кухню относительно ее первоначального расположения. Теперь она стоит не в узком простенке, а вдоль длинной стены. В небольшом шкафчике внизу разместился холодильник, размером с мини-бар, и шкаф для посуды. Наверху – микроволновая печь и шкафчики. В столешницу из дуба врезаны раковина и варочная индукционная панель. По размерам кухня не стала больше, но ее продлили с помощью дубового стола, который в данном случае предельно многофункционален и может играть роль, как разделочной поверхности, обеденного стола, так и стола для занятий и работы. 

-8

«Фартук» на кухне сделан из стекла, оформленного под нержавеющую сталь. «Он выглядит интереснее, чем просто стеклянный и практичнее, чем отделка из нержавейки», – считает дизайнер. 

-9

В крошечной прихожей размером один квадратный метр даже не получалось вместить полноценную вешалку. Ее роль взяли на себя веселые цветные крючки.

-10

Ванная выложена плиткой с фацетом, которую в Европе называют «метро». Ее дизайн был разработан для парижского метро в конце XIX века и парижане по-прежнему ее очень любят. В 2 квадратных метра вписались душ, унитаз и небольшая раковина с удобным шкафчиком.