Добавить в корзинуПозвонить
Найти в Дзене
ОВиК project

FAQ #1: сложности организации правильной работы систем противодымной вентиляции при пожаре на 1-ом этаже

Решили запустить новую рубрику "FAQ". Здесь будем разбирать различные вопросы (ситуации) и пытаться найти на них ответ. Итак, поехали! Рассмотрим типовое решения для многоквартирных жилых зданий: На первом этаже лифтовый холл совмещен с вестибюлем (не выгорожен). На типовом этаже в лифтовом холле предусматривается зона безопасности МГН. Лифт для перевозки пожарных подразделений размещается в выгороженной шахте. Структурная схема противодымной вентиляции для данного случая выглядит так (в соответствии с СП 7.13130.2013 [3]): Рассмотрим вариант с пожаром на первом этаже. При пожаре на первом этаже осуществляется пуск систем ДУ1, КДУ1, ПД2, ПД3 и открытие соответствующих клапанов. Казалось бы, и все. Но давайте разберемся с ситуацией поподробнее. По сигналу пожарной сигнализации оба лифта переходят в режим "пожарная опасность". В соответствии с алгоритмом режима, кабины лифтов перемещаются на основной посадочный этаж (по умолчанию это первый этаж). По прибытии на основной посадочный этаж
Решили запустить новую рубрику "FAQ". Здесь будем разбирать различные вопросы (ситуации) и пытаться найти на них ответ.
Итак, поехали!

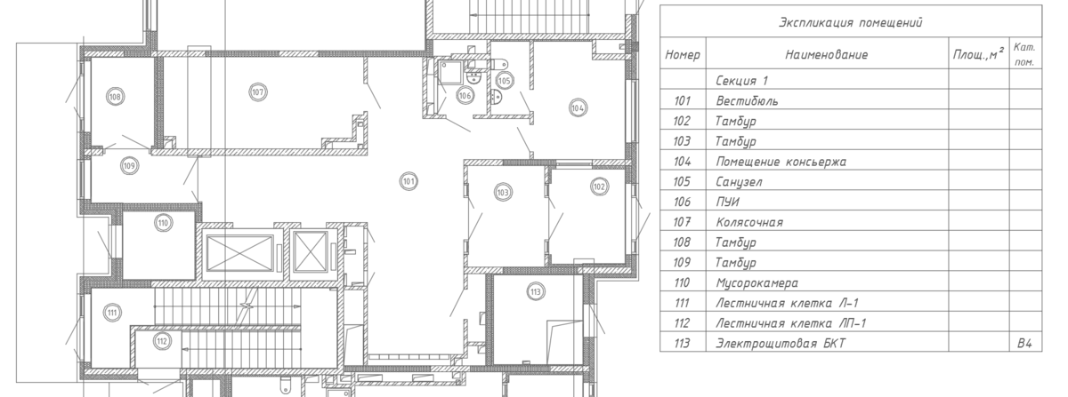
Рассмотрим типовое решения для многоквартирных жилых зданий:

Рис. 1 Первый этаж
Рис. 1 Первый этаж
Рис.2 Типовой этаж
Рис.2 Типовой этаж

На первом этаже лифтовый холл совмещен с вестибюлем (не выгорожен). На типовом этаже в лифтовом холле предусматривается зона безопасности МГН. Лифт для перевозки пожарных подразделений размещается в выгороженной шахте.

Структурная схема противодымной вентиляции для данного случая выглядит так (в соответствии с СП 7.13130.2013 [3]):

Рис.3 Структурная схема противодымной вентиляции
Рис.3 Структурная схема противодымной вентиляции

Рассмотрим вариант с пожаром на первом этаже.

При пожаре на первом этаже осуществляется пуск систем ДУ1, КДУ1, ПД2, ПД3 и открытие соответствующих клапанов.

Казалось бы, и все. Но давайте разберемся с ситуацией поподробнее.

По сигналу пожарной сигнализации оба лифта переходят в режим "пожарная опасность". В соответствии с алгоритмом режима, кабины лифтов перемещаются на основной посадочный этаж (по умолчанию это первый этаж). По прибытии на основной посадочный этаж двери кабины и шахты автоматически открываются и остаются в открытом положении (подробнее алгоритм смотри в ГОСТ 34305-2017 [2]).

В результате наблюдаем следующие отрицательные моменты:

  1. Если во время пожара в кабинах лифтов находились люди, то лифт доставит их на этаж пожара. Согласитесь, не самое лучшее решение;
  2. Всегда есть вариант отказа системы подпора в лифт. Может не запуститься вентилятор, может не открыться противопожарный клапан в стакане (в нашем случае). При таком развитии событий дым через открытые двери кабины и шахты моментально заполнит шахту ("stack effect");
  3. Если же системы подпора в лифтовые шахты будут работать в штатном режиме, то будет нарушаться п. 7.4 СП 7.13130.2013 [3], а именно:
При совместном действии систем приточной и вытяжной противодымной вентиляции отрицательный дисбаланс в защищаемом помещении допускается не более 30%. При этом перепад давления на закрытых дверях эвакуационных выходов не должен превышать 150 Па. Положительный дисбаланс не допускается.

В нашем случае на компенсацию будут работать системы КДУ1, ПД2, ПД3. А это уже кратное превышение необходимого расхода.

Решение данной ситуации

Внимательный читатель может указать на п. 5.6.1 ГОСТ 34305-2017 [2]:

Перевод лифта в режим "Пожарная опасность" должен быть произведен по команде автоматической системы пожарной сигнализации здания (сооружения), при поступлении которой кабина лифта должна быть отправлена на основной посадочный этаж. В случае обнаружения системой автоматической пожарной сигнализации опасных факторов пожара на основном посадочном этаже допустима подача команды на перемещение кабины лифта на другой (альтернативный) назначенный этаж. Требования по установлению основного посадочного этажа и альтернативного назначенного этажа должны быть предусмотрены проектом здания и оговорены при заказе лифта.

Действительно, назначение альтернативного посадочного этажа (к примеру, второго) позволяет решить указанные выше проблемы:

  1. Перемещение людей на безопасный этаж;
  2. Двери шахты лифта на 1-м этаже будут закрыты. Это ограничит распространение дыма;
  3. Соблюдается баланс.

Но данное решение порождает следующую проблему (актуальна для холодного периода года):

По сигналу от пожарной сигнализации запускается система оповещения и управления эвакуацией людей (звуковая сирена и т.д.). Начинается эвакуация на ВСЕХ этажах. Основной поток людей эвакуируется по лестничным клеткам, МГН эвакуируется в ПБЗ (на всех этажах, не только с очагом пожара). МГН могут находиться на любом этаже. Возможна такая ситуация: МГН перемещается в ПБЗ, а там стоят открытые кабины лифтов и с них идет поток холодного воздуха. Долго в таком помещении МГН не смогут находиться. Просто уйдут оттуда. А это создаст сложности при их эвакуации и т.д.

Получается, необходимо отправить лифт туда, где нет зоны безопасности МГН. Одно из решений - отправка лифта в подземную автостоянку (разумеется, при наличии таковой). При пожаре на 1-м этаже жилой части здания, в лифтовом холле автостоянки МГН находиться не будут. Поток холодного воздуха через открытые двери лифтовой кабины и шахты не создаст проблем.

Еще одним вариантом выхода из данной ситуации мы видим устройство выгороженного лифтового холла (еще лучше - тамбур-шлюза (см. "Примечание" в конце статьи) на основном посадочном этаже. Данное решение универсально. Решаются все вышеперечисленные проблемы:

  1. Лифт доставит людей в лифтовый холл основного посадочного этажа. Двери лифтового холла будут дымогазонепроницаемые, ограждения - противопожарные (см. п. 5.2.4 ГОСТ Р 53296-2009 [1]);
  2. Дверь тамбур-шлюза является препятствием для попадания дыма в лифтовую шахту;
  3. Соблюдается баланс;
  4. Зона безопасности МГН на первом этаже не предусматривается. Соответственно, холодный поток воздуха не создаст проблем.

Вывод

Считаем, что необходимо внести в нормативные документы требование об обязательном устройстве выгороженного лифтового холла на основном посадочном этаже.

Будем признательны, если поделитесь своими соображениями на этот счет.

Примечание

Устройство тамбур-шлюза с подпором воздуха на основном посадочном этаже позволяет оптимизировать системы противодымой вентиляции: отказаться от подпора в шахту лифта с режимом "пожарная опасность" (в нашем случае - система ПД3) на основании пп. "а" п. 7.14 СП 7.13130.2013.

7.14 Подачу наружного воздуха при пожаре системами приточной противодымной вентиляции следует предусматривать:
а) в шахты лифтов (при отсутствии у выходов из них тамбур-шлюзов, защищаемых приточной противодымной вентиляцией), установленных в зданиях с незадымляемыми лестничными клетками;
...

Защиту указанного тамбур-шлюза можно осуществить системами подпора в ПБЗ (в нашем случае - ПД1.1 и ПД1.2). Подробно об организации подпора в ПБЗ писали здесь.

При этом рекомендуем лифт с режимом "перевозка пожарных подразделений" отправлять на основной посадочный этаж, а лифт с режимом "пожарная опасность" на другой (допустим 2-й) этаж (открытые двери кабины лифта и лифтовой шахты дают значительные утечки).

С учетом вышесказанного, схема противодымной вентиляции будет выглядеть так:

Рис.4 Оптимизированная структурная схема противодымной вентиляции
Рис.4 Оптимизированная структурная схема противодымной вентиляции

Библиография

[1] ГОСТ Р 53296-2009 Установка лифтов для пожарных в зданиях и сооружениях. Требования пожарной безопасности

[2] ГОСТ 34305-2017 Лифты пассажирские. Лифты для пожарных

[3] СП 7.13130.2013 "Отопление, вентиляция и кондиционирование. Требования пожарной безопасности (с Изменениями N 1, 2)"

Благодарим за внимание!

Подписывайтесь на нас в Telegram!

QR-код для перехода в Telegram-канал
QR-код для перехода в Telegram-канал

Отправить пожелания, замечания, Ваши технические решения, справочную литературу и другую полезную информацию Вы можете на электронный адрес: ovik-projekt@yandex.ru

Друзья, мы не просим средства на поддержку нашего проекта (хотя будем им рады, чего таить). Но если Вы действительно хотите выразить нам благодарность: