Найти в Дзене

Дизайн кухни: основы

В статье мы поговорим о обмерах, списке чертежей, конфигурации, зонировании, рабочем треугольнике, технике и электрике кухни. Кухня это сердце дома. На кухне мы готовим пищу, общаемся с семьёй и гостями. Удобство на кухне — залог комфорта, безопасности и существенный вклад в наше здоровье. Ведь как сказал Гиппократ "Мы есть то, что мы едим". Обмеры кухни Зафиксируйте ширину, глубину комнаты, высоту потолка, оконный проем, расположение выводов воды, особенности конструкции стен. Где начинаются отопительные трубы, где заканчиваются, на какой глубине от стены. Какая глубина подоконника? По сегодняшним нормам минимальный размер кухни — от 8 кв. м. Если метраж будет меньше, придётся планировать меньше шкафчиков для хранения, техники и урезать обеденную зону. Список чертежей Типы кухонных гарнитуров В зависимости от геометрии комнаты кухонный гарнитур может быть линейный, угловой, П-образный, в две линии и с островом. Какая кухня лучше прямая или г-образная? Конечно, прямая. Нет стыков, "
Оглавление

В статье мы поговорим о обмерах, списке чертежей, конфигурации, зонировании, рабочем треугольнике, технике и электрике кухни.

Кухня это сердце дома. На кухне мы готовим пищу, общаемся с семьёй и гостями. Удобство на кухне — залог комфорта, безопасности и существенный вклад в наше здоровье. Ведь как сказал Гиппократ "Мы есть то, что мы едим".

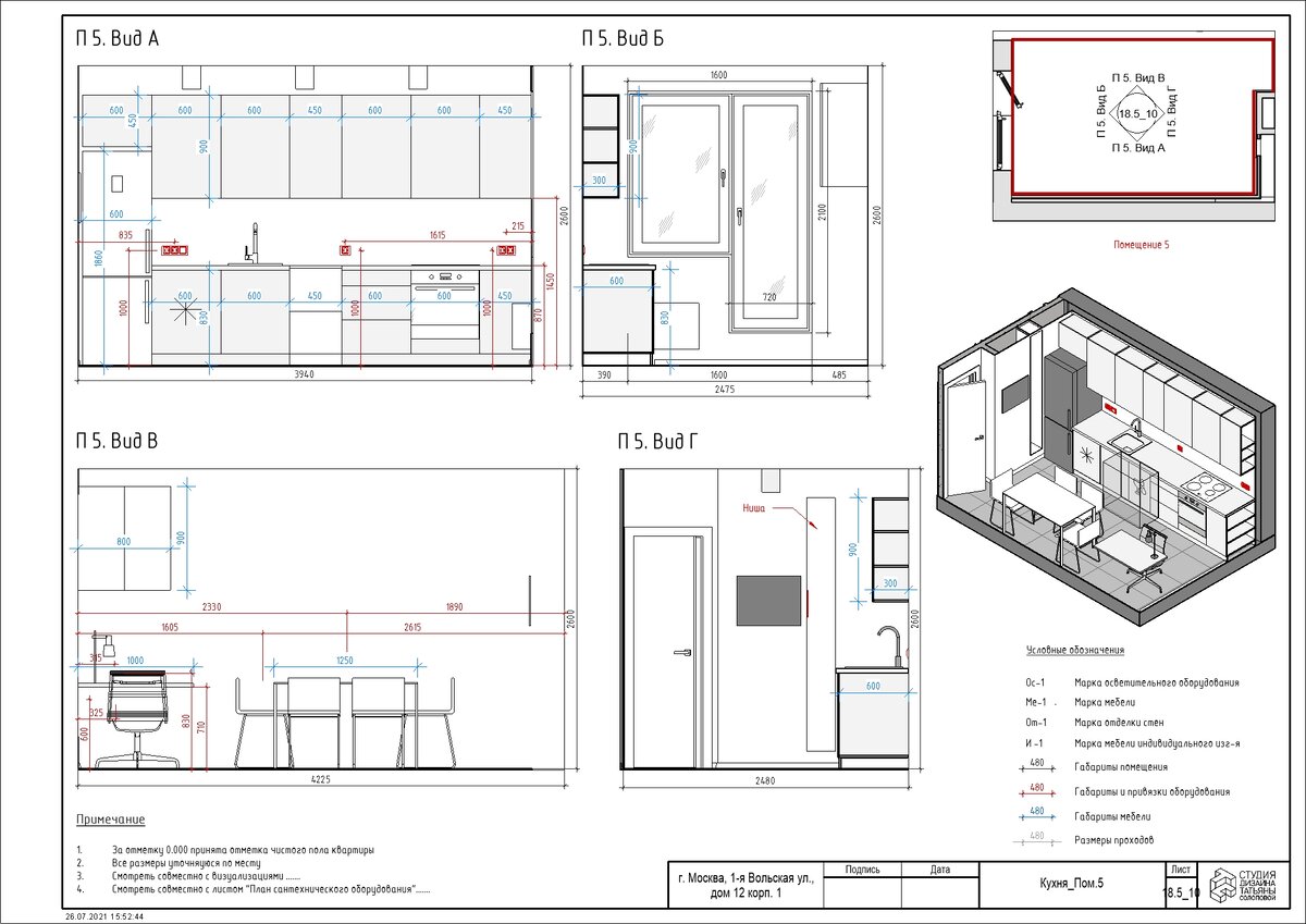
Кухня со стороны лоджии*
Кухня со стороны лоджии*

Обмеры кухни

Зафиксируйте ширину, глубину комнаты, высоту потолка, оконный проем, расположение выводов воды, особенности конструкции стен. Где начинаются отопительные трубы, где заканчиваются, на какой глубине от стены. Какая глубина подоконника?

По сегодняшним нормам минимальный размер кухни от 8 кв. м. Если метраж будет меньше, придётся планировать меньше шкафчиков для хранения, техники и урезать обеденную зону.

Список чертежей

  • План размещения мебели и сантехнического оборудования
  • Развёртка
  • План осветительных приборов с привязками
  • План пола и потолка
Развертка кухни*
Развертка кухни*

Типы кухонных гарнитуров

В зависимости от геометрии комнаты кухонный гарнитур может быть линейный, угловой, П-образный, в две линии и с островом.

Типы кухонных гарнитуров (фото из открытых источников)
Типы кухонных гарнитуров (фото из открытых источников)

Какая кухня лучше прямая или г-образная? Конечно, прямая. Нет стыков, "мертвых" углов.

Зонирование

Кухня делится на три зоны: ближняя, средняя и дальняя. Все, что используется ежедневно, находится в ближней зоне быстрого доступа. В средней зоне располагаются вещи, которые нужны время от времени. То, что используется редко располагается на верхних полках и цоколе.

Организация пространства на кухне (Фото из открытых источников)
Организация пространства на кухне (Фото из открытых источников)

Рабочий треугольник

Чтобы быстрее приготовить блюдо, проделывая минимальный путь и затрачивая минимум сил, нужно расположить основные рабочие точки — холодильник (хранение), мойку (подготовка) и плиту (приготовление пищи) по сторонам равностороннего треугольника со сторонами два-три шага (примерно метр-полтора).

Фото из открытых источников
Фото из открытых источников

В жизни мы заранее достаем продукты из холодильника, а не во время приготовления пищи. Поэтому настоящий рабочий треугольник мойка, плита и рабочая зона.

На больших кухнях есть возможность сделать четырехугольник вместо треугольника — например, при планировке кухни с островом.

Кухня с островом (Made in Art Glück)
Кухня с островом (Made in Art Glück)

Техника

При подборе техники учитывается ширина, высота и глубина шкафа ещё на этапе планирования.

Размеры модулей нижних и верхних шкафов у производителей (Made in Art Glück)
Размеры модулей нижних и верхних шкафов у производителей (Made in Art Glück)

Духовой шкаф

Для лучшего обзора содержимого духового шкафа его лучше располагать на уровне груди. Можно расположить духовку в колонну рядом с варочной поверхностью или в колонну рядом с холодильником. Над духовкой или рядом с ней должен быть участок столешницы, куда можно поставить горячую посуду(противень).

Стиральная машина

Можно располагать под столешницей у мойки, либо в колонне, например, под духовкой. Важно чтобы это была практически бесшумная машина. Иначе ей место в отдельной комнате.

Посудомоечная машина

Её удобно располагать рядом с мойкой не только из-за близости к коммуникациям. Если в раковине встроен измельчитель пищевых отходов, то в ней удобно очистить (ополоснуть) тарелку и тогда отправить ее в посудомойку.

Измельчитель бытовых отходов

Отличный помощник на кухне, сокращает до нуля количество пищевых отходов, если это мощная модель, измельчающая кости. Располагается под раковиной. Учтите, что если под раковиной располагается ещё и фильтр для воды, места для мусорного ведра остаётся очень мало.

Плюс измельчителя — вы не храните остатки пищи в ведре и весь мусор можно разделить на пластик, картон, металл, стекло. Ну.. ещё памперсы))

Вытяжка

Вытяжка выбирается в ширину варочной поверхности. Её вешают на 60-65 см от электрической плиты и 75 см от газовой. Самый проверенный вариант — купольная вытяжка. Самый современный вариант — вытяжки, встроенные в столешницу или дизайнерская вытяжка в потолке.

Вытяжка не должна закрывать единственный вентканал. Нужно обязательно оставить отверстие для естественной циркуляции воздуха.

Прямоугольная купольная вытяжка. Кухня Aster cucine Brera.  (Фото из открытых источников)
Прямоугольная купольная вытяжка. Кухня Aster cucine Brera. (Фото из открытых источников)

Варочная панель

Если в доме кухня маленькая, варочной панели на две конфорки для семьи из 4 человек будет вполне достаточно. Если в доме электрическая плита, обратите внимание на индукционные модели. Плита быстро остывает, ей не обожжёшься, за такой плитой легко ухаживать.

Если у вас газовая плита, не располагайте её рядом с занавесками и ближе чем 50 см от окна или балконной двери, чтобы порыв ветра не затушил огонь.

Свет через северное кухонное окно попадает в помещение через лоджию, поэтому было принято решение использовать в отделке кухни белый цвет*
Свет через северное кухонное окно попадает в помещение через лоджию, поэтому было принято решение использовать в отделке кухни белый цвет*

Розетки и выключатели

Планировать розетки можно, ориентируясь на точное расположение кухонной техники.

Не делайте розетки в выдвижных модулях. В модуль всегда будет включён какой-нибудь прибор, что будет вызывать беспорядок на кухне.

Выдвижной модуль в столешнице (Фото из открытых источников)
Выдвижной модуль в столешнице (Фото из открытых источников)

На шинопровод можно подключить нужное количество розеток.

Трековые розетки (Фото из открытых источников)
Трековые розетки (Фото из открытых источников)

На кухонном острове розетки можно делать на фасаде или внутри ящиков.

Розеткам и выключатель обеденной зоны*
Розеткам и выключатель обеденной зоны*

Для безопасной работы бытовой техники нужно провести отдельную линию от щитка с электросчётчиком — для розеток, к которым вы будете подключать мощные приборы на кухне. Провод должен быть трёхжильным, розетки — с заземлением и подключаться через отдельный автомат и УЗО.

К местам подключения техники нужен лёгкий доступ, поэтому не планируйте розетки за встроенной техникой. К розеткам нужно обеспечить лёгкий доступ.

Проектируя розетки, лучше заложить пару про «запас».

* Проектирование — Студия Дизайна Татьяны Солоповой

Другие статьи:

Столешница и фартук на кухне. Плюсы и минусы материалов

Дизайн кухни: Кухонный гарнитур

Дизайн туалета: нюансы проектирования в многоквартирном доме

Дизайн ванной комнаты: нюансы проектирования в многоквартирном доме

Дизайн спальни

Дизайн гостиной

.

Если вам нужен неповторимый интерьер, выполненный командой профессионалов, учитывающий ваш жизненный уклад и стилистические предпочтения, свяжитесь с нами!

На сайте solopovadesign.ru/uslugi можно познакомится с полным перечнем услуг и портфолио.

Viber/WhatsApp/Telegram: +79175392789

Info@solopovadesign.ru