Добавить в корзинуПозвонить
Найти в Дзене

Интерьер коттеджа

Создание интерьера на этапе перепланировки дома Автор проекта: дизайнер Татьяна Север, г. Москва Атмосфера раннего утра, когда в окно пробираются первые лучи летнего солнца, а тишина и спокойствие наполняют прохладный стеклянный воздух, легла в основу концепции дизайна дома для молодой семьи с двумя дочками-погодками. Тема первого этажа — «Утренняя роса». Интерьеры гостевых комнат третьего этажа рождались под влиянием живописи постимпрессионизма и постмодернизма. Дизайнер присоединилась к работе по созданию интерьера на этапе перепланировки реконструированного коттеджа. Вход в дом перенесли в боковую часть и обустроили холл с большим окном на месте дверного проема. Объем дома стал более приватным, из обеденной зоны теперь не просматривается входная дверь, а вид на сад открывается не от порога и поэтому сохраняется эффект внезапности. Вместо двух этажей по исходному плану в новом доме обустроено четыре жилых уровня. После того как подняли потолок, мансарда стала полноценным третьим этаж

Создание интерьера на этапе перепланировки дома

Автор проекта: дизайнер Татьяна Север, г. Москва

Атмосфера раннего утра, когда в окно пробираются первые лучи летнего солнца, а тишина и спокойствие наполняют прохладный стеклянный воздух, легла в основу концепции дизайна дома для молодой семьи с двумя дочками-погодками. Тема первого этажа — «Утренняя роса». Интерьеры гостевых комнат третьего этажа рождались под влиянием живописи постимпрессионизма и постмодернизма.

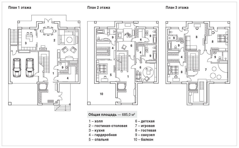
Общая площадь — 685,0 м²
Общая площадь — 685,0 м²

Дизайнер присоединилась к работе по созданию интерьера на этапе перепланировки реконструированного коттеджа. Вход в дом перенесли в боковую часть и обустроили холл с большим окном на месте дверного проема. Объем дома стал более приватным, из обеденной зоны теперь не просматривается входная дверь, а вид на сад открывается не от порога и поэтому сохраняется эффект внезапности.

-3

Вместо двух этажей по исходному плану в новом доме обустроено четыре жилых уровня. После того как подняли потолок, мансарда стала полноценным третьим этажом с тремя гостевыми и игровой. В цоколе разместили бильярдную, домашний кинотеатр, бар, сауну и др. Чтобы всем членам семьи, включая самое старшее поколение, было удобно передвигаться по дому, возвели лифтовую шахту на четыре этажа.

-4

Первый этаж визуально организован как единое пространство, при этом каждая зона имеет комфортные границы. Холл отделяет сквозная перегородка, пропускающая дневной свет из окна, кухню при желании можно закрыть раздвижными дверями с матовым тонированным стеклом, каминная отделена от коридора сквозным аквариумом.

Каминная зона. Ступенчатая форма камина — реплика ар-деко в интерьере. Над ним картина «Вечером», автор Гаго Рушанян. Стеклянные витрины заняла домашняя библиотека.
Каминная зона. Ступенчатая форма камина — реплика ар-деко в интерьере. Над ним картина «Вечером», автор Гаго Рушанян. Стеклянные витрины заняла домашняя библиотека.

Как можно меньше открытых поверхностей, все шкафы сделать закрытыми — реализация этих пожеланий заказчиков дала возможность содержать дом в идеальном порядке. На первом этаже все, что не хочется показывать, убирается в кладовку, скрытую под лестницей. Встроенная мебель, сквозная перегородка для холла выполнены столярной мастерской Design 01.

-6

Главный объект в столовой — обеденный стол Gallotti&Radice с ножкой из хромированного металла и тонированной стеклянной столешницей, отражающей свет из окна. Напольное панно из керамогранита Mirage Italia создано по авторским эскизам, дизайнера вдохновил рисунок плафона настольной лампы эпохи ар-деко. Подвесные светильники Vistosi над столом олицетворяют капельки росы.

-7

Окна дома ориентированы на две стороны: с видом на главную улицу и во двор, поэтому в центральной части второго этажа устроен гардероб, а хозяйская и детская спальни, а также санузлы получились с большими окнами, очень светлыми.

-8

В детской — кровать Mamka, ковер Dovlet House. В гостевой — кровать Sonberry, ковер Dovlet House, аксессуары Happy Collections, картина Виктора Пивоварова «В парке».

Цветовая палитра интерьера составлена из оттенков раннего утра. Приглушенные сероватые тона — отсыл ко времени, когда солнце еще не взошло и краски природы не проявлены во всей своей яркости, а теплые зеленые и желтые акценты олицетворяют теплые лучи солнца.

Фото: Евгений Евграфов

♦ • ♦ • ♦ • ♦ • ♦

Подписывайтесь на наш канал. Идеи оформления интерьеров домов смотрите на сайте журнала «Красивые дома».