Найти в Дзене
Design Standart

ДО-ПОСЛЕ. Как из скучной двушки в новостройке мы делали интересную квартиру с изюминкой

Приступая к этому проекту в центре Петербурга, мы никак не могли найти такое решение, которое бы сделало эту квартиру интересной и уютной для проживания-криволинейные стены, нарезка комнат и северная ориентация-не самое радушное начало для проектирования. К нам обратилась молодая пара без детей. В этой небольшой квартире нас попросили разместить гостевой санузел, кабинет, гардероб и спальню, а так же-гостиную и кухню с раскладным столом. И желательно-не забыть про пианино. Минусы планировки: -прихожая на проходе. Это означает, что грязь и пыль будут разноситься по всей квартире - криволинейная геометрия кухни и гостиной-как разместить мебель? - маленькие санузлы. как поставить ванную и все необходимое для комфортной жизни? К нашему счастью, эта квартира расположена в апартаментах, это позволило нам работать с планировкой более смело. В апартаментах нет жестких требований по мокрым зонам. 1. Гостевой санузел разместили при входе в квартиру вместе с ванной, это позволило нам освободить

Приступая к этому проекту в центре Петербурга, мы никак не могли найти такое решение, которое бы сделало эту квартиру интересной и уютной для проживания-криволинейные стены, нарезка комнат и северная ориентация-не самое радушное начало для проектирования.

К нам обратилась молодая пара без детей.

В этой небольшой квартире нас попросили разместить гостевой санузел, кабинет, гардероб и спальню, а так же-гостиную и кухню с раскладным столом. И желательно-не забыть про пианино.

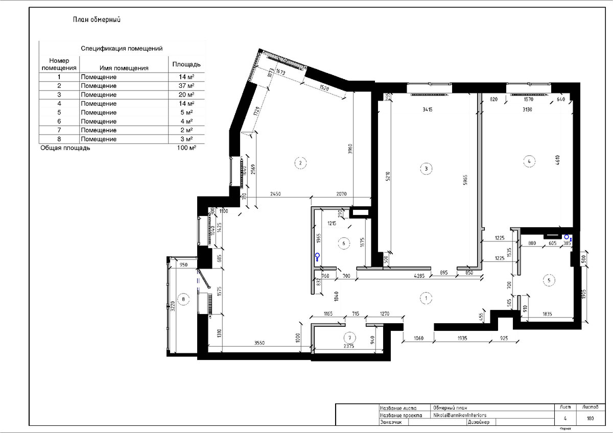
Обмерный план-с него мы начали работу. Промерили все стены и окна, собрали максимум информации, чтобы потом вести проектирование поступательно
Обмерный план-с него мы начали работу. Промерили все стены и окна, собрали максимум информации, чтобы потом вести проектирование поступательно

Минусы планировки:

-прихожая на проходе. Это означает, что грязь и пыль будут разноситься по всей квартире

- криволинейная геометрия кухни и гостиной-как разместить мебель?

- маленькие санузлы. как поставить ванную и все необходимое для комфортной жизни?

К нашему счастью, эта квартира расположена в апартаментах, это позволило нам работать с планировкой более смело. В апартаментах нет жестких требований по мокрым зонам.

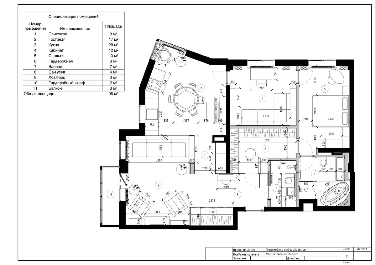
Этот план мы утвердили с клиентами. он понравился всем участникам процесса. давайте расскажем, что именно мы тут сделали
Этот план мы утвердили с клиентами. он понравился всем участникам процесса. давайте расскажем, что именно мы тут сделали

1. Гостевой санузел разместили при входе в квартиру вместе с ванной, это позволило нам освободить место для прохода в гостиную. В нем мы разместили душевой поддон и стиральную технику. Он будет служить постирочной.

2. Проход в спальню оформили гардеробом.

3. Кабинет сделали по центру квартиры-тут применили традиционный для питерских квартир анфиладный принцип. В него можно попасть как из кухни, так и из спальни. Если к хозяевам придут гости, тут тоже можно общаться.

мы всегда стараемся снабдить свои проекты наглядными схемами, чтобы клиенты видели все в деталях
мы всегда стараемся снабдить свои проекты наглядными схемами, чтобы клиенты видели все в деталях

4. Кухню и гостиную зонировали на 2 части диваном и консолью за ним. Кухонный блок пустили вдоль наружной стены-эта часть квартиры выходит на потрясающую водную панораму!

5. В гостиной применили классический прием-напротив дивана поставили камин и 2 кресла.

Нам очень нравится квартира, которая получилась в результате перепланировки. В ней появилась индивидуальность, и она стала гораздо более комфортной. А вы как считаете?

-4