Добавить в корзинуПозвонить
Найти в Дзене
GOOD WOOD Строительство домов

Как мы улучшали серийный проект: кейс про деревянный дом с огромными окнами

Мы постоянно работаем над улучшением серийных проектов. Cобираем рекомендации от конструкторов, советы от архитекторов и обратную связь от строителей. Но самые главные наши консультанты — это клиенты. Именно на основе пожеланий заказчиков, которые уже живут в доме, мы дорабатываем и оптимизируем проект. На примере недавно обновлённого СВ-4 расскажем вам подробнее, как мы собираем обратную связь от клиентов и работаем над улучшением проекта. 1. Комментарий от клиентки Татьяны, которая живет со своей семьей в доме по проекту СВ-4 чуть больше года: «Когда мечтаешь о доме, кажется, что все время будешь проводить на улице — завтракать, обедать и ужинать на террасе. На деле же, почти все приемы пищи удобнее и быстрее организовать дома, особенно, если семья большая. Огромная 27-метровая терраса часто у нас пустует без дела, а вот гостиная никогда не может быть слишком большой. Когда приезжают родители или друзья с детьми, нам уже не хватает пространства в ней». На основе подобных пожеланий з

Мы постоянно работаем над улучшением серийных проектов. Cобираем рекомендации от конструкторов, советы от архитекторов и обратную связь от строителей. Но самые главные наши консультанты — это клиенты. Именно на основе пожеланий заказчиков, которые уже живут в доме, мы дорабатываем и оптимизируем проект.

На примере недавно обновлённого СВ-4 расскажем вам подробнее, как мы собираем обратную связь от клиентов и работаем над улучшением проекта.

1. Комментарий от клиентки Татьяны, которая живет со своей семьей в доме по проекту СВ-4 чуть больше года:

«Когда мечтаешь о доме, кажется, что все время будешь проводить на улице — завтракать, обедать и ужинать на террасе. На деле же, почти все приемы пищи удобнее и быстрее организовать дома, особенно, если семья большая. Огромная 27-метровая терраса часто у нас пустует без дела, а вот гостиная никогда не может быть слишком большой. Когда приезжают родители или друзья с детьми, нам уже не хватает пространства в ней».

На основе подобных пожеланий заказчиков мы изменили габаритные размеры дома — и его площадь увеличилась с 268 м² до 275 м². Мы убрали открытую часть террасы с заднего фасада, и за счет этого увеличили гостиную — ширина ее стала на 0,7 м больше.

-3

2. Комментарий от семьи Неворотиных, которые живут в доме 3 года:

«Мы обожаем наш дом. Наверное, единственное, чем мы немного недовольны — это слишком большие холлы на обоих этажах. Непонятно, как их использовать. Они у нас стоят почти пустые — жалко пространства».

В новой версии СВ-4 мы перекомпоновали планировки таким образом, что удалось более эффективно разместить помещения и избавиться от пустых холлов и неиспользуемого пространства.

-4

А еще на первом этаже мы поменяли местами прихожую, котельную и лестницу. Оказалось, что от перемены мест сумма иногда меняется! В результате в центре дома высвободилось место для санузла. А на прежнем месте санузла удалось разместить еще одну комнату — кабинет с панорамным окном и небольшой террасой при ней.

3. Комментарий от Сергея:

«Не понимаю, зачем нужен второй вход через котельную. На моей памяти, мы ни разу его не использовали. К котлу всегда проходим через холл».

Оказалось, владельцы домов редко используют второй технический вход через котельную. Поэтому мы переместили прихожую с входом на другую сторону дома и убрали отдельный вход с улицы в котельную. Пройти к котлу теперь можно из прихожей.

-5


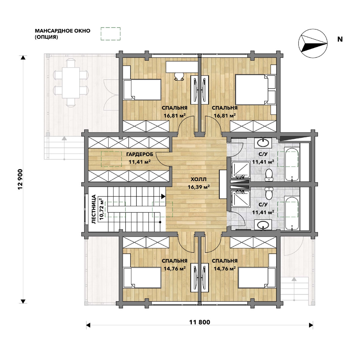
4. Комментарий от Оксаны, которая живет в доме с большой семьей уже около 5 лет:

«До недавнего времени нас все устраивало в доме. Но полгода назад к нам переехали родители мужа, и спален стало недостаточно. Мы выкрутились, переоборудовав гардеробную в спальню для младшего ребенка».

В обновленном проекте мы оптимизировали площадь и на втором этаже разместили 4 отдельных спальни и 2 санузла, а также просторную гардеробную. Планировки 2-го этажа теперь продуманы таким образом, что их легко можно было трансформировать: спальни объединяются между собой или с санузлами, превращаясь, например, в мастер-спальню. А еще весь второй этаж можно разделить на взрослый и детский блок.

-6


5. Комментарий от Артема, который живет в доме около года:

«Я уже давно работаю удаленно, из дома. В какой-то момент стало неудобно работать из гостиной, и мы с женой сами переделали гостевую спальню на первом этаже в кабинет. Но в работе из гостиной было отличный бонус — можно было быстро выйти на террасу освежиться, выпить кофеёк и опять пуститься за работу».

Мы переорганизовали планировку первого этажа и в нем нашлось место для 14-метрового кабинета с панорамным окном и выходом на небольшую террасу площадью в 6,5 м². Идеально, чтобы освежить голову в перерывах между работой.

-7

В итоге у нас получился дом, в котором на двух этажах размещаются 6 отдельных комнат и одна общая зона кухни-гостиной-столовой площадью почти 50 м².

При этом в проекте осталось все то, что так полюбилось клиентам:

1. Большие панорамные окна, занимающие оба фронтона.

СВ-4 — проект из серии «Виражи», которая отличается большой площадью остекления
СВ-4 — проект из серии «Виражи», которая отличается большой площадью остекления


2. Удобная лестница с поворотной площадкой и правильными параметрами ступеней: чтобы даже самым маленьким и самым пожилым на ней было комфортно и безопасно.

Лестничная площадка с мансардными окнами
Лестничная площадка с мансардными окнами


3. Просторная прихожая и продуманные места для хранения. Прихожая вмещает в себя множество гардеробных шкафов и большое пространство для переодевания — даже нескольким людям одновременно не будет в ней тесно. А на втором этаже расположена большая гардеробная комната.

Гардеробная комната на втором этаже с мансардным окном
Гардеробная комната на втором этаже с мансардным окном


4. Терраса с навесом, на которую можно выйти из столовой.

Выход на террасу из зоны гостиной-столовой
Выход на террасу из зоны гостиной-столовой

Каждую мелочь в планировке проекта мы продумывали с тщательностью и заботой. Уверены, что у каждого члена семьи в этом доме найдется свой любимый уголок.