Добавить в корзинуПозвонить
Найти в Дзене

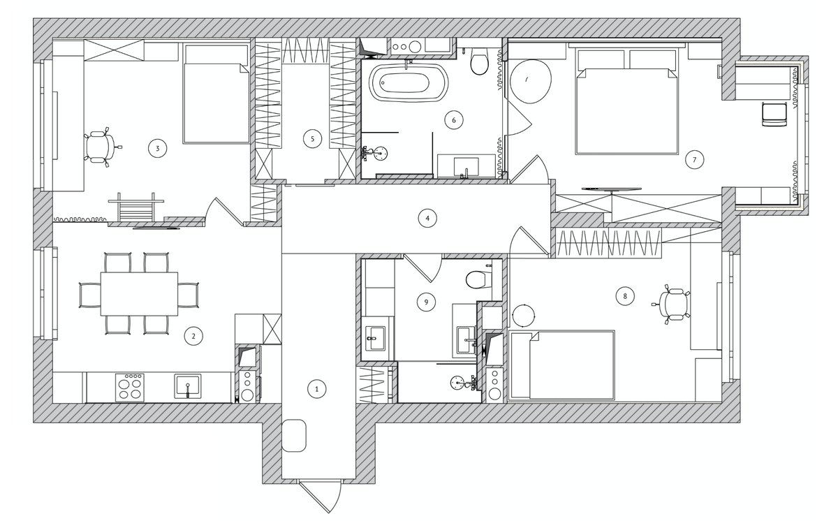
Квартира для семьи с двумя детьми: у каждого по комнате и большая кухня

Привет! Меня зовут Карен Карапетян, я — архитектор и интерьерный дизайнер. Сегодня покажу объект, о котором уже немного рассказывал. Проведу виртуальную экскурсию по всей квартире, и остановлюсь на важных деталях. В этой квартире будет жить семья из 2 взрослых и 2 детей — мальчик и девочка. Планировка Общая площадь квартиры — 104 м². Как видите, мы заметно изменили планировку квартиры. Подробнее о ней я расскажу в другой раз, а сейчас выделю основные моменты: Сейчас на объекте ведутся финальные отделочные работы. Стены и потолок выкрашены, на пол укладываем паркет, плитка в санузлах и на кухне приклеена. Прихожая и гардеробная Прихожая получилась вытянутая, но вместительная: поместился пуф, а в нишах будет шкаф и комод для мелочей и сумок. В шкафу справа от входа будут спрятаны электрощиты. Доступ к ним останется легким, но глаза мозолить не будут. Предполагается, что хозяева и гости разуваются у входной двери, а верхнюю одежду могут оставить в гардеробной. Дверь будет зеркальной
Оглавление

Привет! Меня зовут Карен Карапетян, я — архитектор и интерьерный дизайнер.

Сегодня покажу объект, о котором уже немного рассказывал. Проведу виртуальную экскурсию по всей квартире, и остановлюсь на важных деталях.

В этой квартире будет жить семья из 2 взрослых и 2 детей — мальчик и девочка.

Планировка

Общая площадь квартиры — 104 м². Как видите, мы заметно изменили планировку квартиры. Подробнее о ней я расскажу в другой раз, а сейчас выделю основные моменты:

  1. Мы отказались от кухни-гостиной в пользу просторной кухни (2)
  2. Прямо перед входом в квартиру выделили место для гардеробной (5)
  3. Детский/гостевой санузел (9) выполняет функцию прачечной
  4. Доступ в родительский санузел (6) есть только из мастер-спальни (7)
  5. Балкон присоединили к спальне и организовали там рабочее место (7)

Сейчас на объекте ведутся финальные отделочные работы. Стены и потолок выкрашены, на пол укладываем паркет, плитка в санузлах и на кухне приклеена.

Прихожая и гардеробная

Прихожая получилась вытянутая, но вместительная: поместился пуф, а в нишах будет шкаф и комод для мелочей и сумок. В шкафу справа от входа будут спрятаны электрощиты. Доступ к ним останется легким, но глаза мозолить не будут.

-3
Вид из кухни на прихожую. Слева — ниша для шкафа
Вид из кухни на прихожую. Слева — ниша для шкафа

Предполагается, что хозяева и гости разуваются у входной двери, а верхнюю одежду могут оставить в гардеробной. Дверь будет зеркальной с обеих сторон, удобно посмотреться перед выходом на улицу, и не занимает лишнего места. Сама дверь кстати раздвижная.

В гардеробной уже установили сенсорный датчик, который будет включать подсветку шкафов, так что нет необходимости каждый раз искать выключатель.

Как вы заметили, в тумбе под зеркалом есть некое круглое отверстие. Подумайте, для чего оно нужно, а ответ я скажу позже.

Кухня

Здесь будет прямой кухонный гарнитур и большой обеденный стол на 6 человек. На кухне есть пара фишек. Во-первых, это тонкий телевизор Samsung Frame. Он подключается только к небольшому оптоволоконному кабелю, за счет чего и выглядит как минималистичная рамка для картины, а весь "мозг" его может находиться в любом другом месте, и конкретно в этот раз мы разместим его в верхнем правом пенале на кухне. Звук кстати хозяева квартиры решили выводить дополнительно через колонки на потолке.

В потолке вмонтированы колонки
В потолке вмонтированы колонки

Во-вторых, между кухней и детской мальчика мы поставим стеклянную перегородку. Через нее будет проходить больше света в зону кухни. А если понадобится, то мальчик сможет закрыть перегородку шторкой со своей стороны. Площадь кухни — 16 м².

Детская мальчика

Детскую мы не делали тематическую несмотря на то, что юный хозяин очень любит динозавров. Почему тематические детские это плохо я рассказывал здесь.

Мы будем использовать акцентный текстиль и наклейки с динозаврами, которые можно будет легко снять, когда вкусы изменятся. Также мы выкрасили участок стены у входа магнитно-грифельной краской, на ней можно будет рисовать мелками и примагничивать свои рисунки. Также здесь будет стоять шведская стенка, рабочий стол и небольшие шкафы (для одежды — у входа, для игрушек — у стола). Еще и место для игр останется. Площадь комнаты — 16 м².

Детская девочки

Девочка еще совсем маленькая, и у нее нет особых предпочтений, поэтому в ее комнате мы тоже будем использовать наклейки, которые легко заменить. В ее комнате тоже есть участок стены, покрытый магнитно-грифельной краской. Он еще и выступает относительно остальной стены, и в его торце мы смонтировали подсветку. В комнате девочки также будет рабочий стол и шкаф. Площадь комнаты — 15,5 м².

Детский санузел

Детский санузел мы расширили за счет коридора, который предполагался застройщиком прямо в центре квартиры (расширять санузлы за счет нежилых помещений разрешено), и перенесли вход из грязной зоны прихожей. Этим санузлом будут пользоваться как дети, так и гости. Также он выполняет функцию прачечной. Здесь мы установим небольшую мойку, чтобы можно было застирать грязные вещи, стиральная и сушильная машинки будут стоять в колонне, а рядом с ними сушильный шкаф. Это очень полезная в хозяйстве вещь, подробнее я рассказывал здесь.

В этом санузле мы использовали плитку и керамогранит разных текстур и цветов. На полу — квадратный керамогранит, который выглядит как шлифованный бетон. На стенах — прямоугольная плитка с древесной текстурой и вертикальными линиями. В душевой — светлая плитка с горизонтальными линиями. И у входа в санузел — светлая плитка с нейтральной текстурой. Площадь санузла — 6,7 м².

Доступ к коммуникациям — через нажимной люк
Доступ к коммуникациям — через нажимной люк

Коридор

Коридор в этой квартире действительно остался внушительных размеров — 8 м². Хозяева его будут использовать как галерею: повесят здесь картины, и светильники направят прямо на них. Кстати, под потолком в коридоре у нас спрятаны вся вентиляция, кондиционеры. По центру потолка в коридоре будет накладной трек, врезной мы не стали делать, потому что он занимает около 8 см под потолком, а у нас и так уже там все под завязку забито. Кстати потолок здесь опускали на 30 см. Да, мы не стали маскировать "объем", который образовался здесь под потолком, мне он очень нравится, мы его даже покрасили отличным от остального потолка цветом.

Вид из кухни в коридор. Квадраты на полу — фанерная основа для паркета
Вид из кухни в коридор. Квадраты на полу — фанерная основа для паркета

Также здесь мы смонтировали два светильника для подсветки пола. Обычно мы стараемся избегать коридоров в своих проектах, подробнее рассказал здесь, но здесь он органично вписался в интерьер.

-17

Спальня и ванная

Балкон мы присоединили к спальне, чтобы сделать там небольшое рабочее место для хозяев и зону для отдыха кошки. Кажется, что на стене расположены полки для книг, это конечно так, но в то же время это места для отдыха кошки. Кстати, в начале статьи я обратил ваше внимание на круглое отверстие в комоде в коридоре, там будет лоток для кошки, догадались?

В спальне над изголовьем будет необычный ночник — он занимает всю стену и состоит из множества лампочек, которые по форме напоминают китайские фонарики. Стена за ними дополнительно звукоизолирована, поэтому соседей не будет слышно.

Напротив кровати мы смонтируем шкаф в потолок, в котором кстати будет спрятан воздуховод, идущий с внешнего блока. Площадь спальни — 19 м².

Ванная выбивается по цвету из всей квартиры: она темная и будто обшита сланцем, а это всего лишь плитка с таким эффектом. Ванная будет контрастная: белая сантехника будет светиться на фоне почти черной плитки. Но в то же время ванная очень функциональная, здесь есть и большая мойка, и душевая, и отдельно стоящая ванна, и унитаз с хранением над ним. Площадь ванной — 7 м².

"Сланцевая" плитка в ванной, доступ к коммуникациям через люк
"Сланцевая" плитка в ванной, доступ к коммуникациям через люк

Кстати, про эту ванную комнату я уже рассказывал, читайте здесь.

Вот так выглядит промежуточный этап между покупкой квартиры и реализацией. Пишите ваши мысли в комментариях!

Раннее я рассказывал и показывал, как можно сделать удобной однушку с несущей стеной по центру и какие идиотские ошибки не надо допускать в интерьере.