Добавить в корзинуПозвонить
Найти в Дзене
Z500 Архитектурное бюро

Z362 Небольшой мансардный дом с верандой, подойдет для строительства на узком участке.

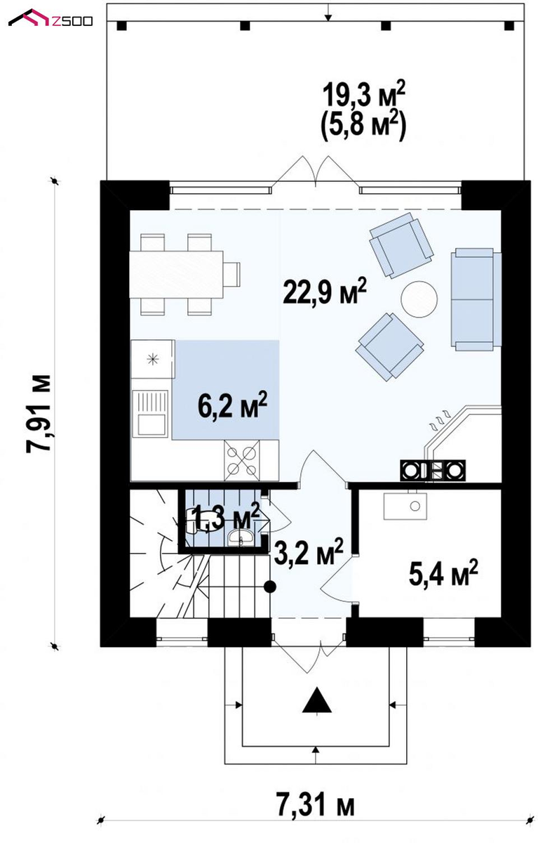
Z362 представляет собой небольшой мансардный дом с верандой, подойдет для строительства на узком участке. Компактные размеры дома не помеха комфортному проживанию в нем. Данный проект великолепный вариант для семей из 2-3 человек. Чем привлекателен проект Z362: Наш каталог типовых проектов домов включает широкий выбор компактных и бюджетных коттеджей, выполненных в различных стилях. Проект Z362 подойдет и сторонникам классических домов, и почитателям современных идей архитектурного стиля. Понравился проект? Пишите комментарии. Посмотреть другие проекты вы можете на сайте.

Z362 представляет собой небольшой мансардный дом с верандой, подойдет для строительства на узком участке. Компактные размеры дома не помеха комфортному проживанию в нем. Данный проект великолепный вариант для семей из 2-3 человек.

Чем привлекателен проект Z362:

  • Пространство коттеджа четко разделено на зону отдыха (мансардный этаж) и дневную часть;
  • Просторная терраса крытого типа дает возможность наслаждаться трапезами на природе даже в непогоду;
  • Теплоты и уюта строению придает отделка фасада деревянными элементами;
  • Контрастное сочетание цветов кровли и фасадов делают дом оригинальным и современным;
  • Дом экономичен в строительстве и удобен в эксплуатации.

Наш каталог типовых проектов домов включает широкий выбор компактных и бюджетных коттеджей, выполненных в различных стилях. Проект Z362 подойдет и сторонникам классических домов, и почитателям современных идей архитектурного стиля.

Понравился проект? Пишите комментарии.

  • Заказать проект можно  ЗДЕСЬ!
  • Все подробности о данном проекте Вы найдете  ЗДЕСЬ!

Посмотреть другие проекты вы можете на сайте.