Найти в Дзене

ДЕНЕЖНЫЙ 55 м2 - проект маленького домика под сдачу, с тремя спальнями.

Конечно, хорошо иметь участок земли с домом у реки, леса или моря - если даже не жить там постоянно, в любой момент можно приехать и хорошо отдохнуть. Единственный минус - частный дом требует больше финансовых вливаний, чем городская квартира. Нужен ремонт, отопление, уход за участком и т.д. Чтобы сделать свою жизнь более беззаботной, советуем обратить расход в доход, построив кроме основного жилого второй, маленький домик, удобный для сдачи внаём отдыхающим. Дом ДЕНЕЖНЫЙ легко справится с этой задачей - он маленький, недорогой в строительстве и простой в обслуживании. И может вместить спокойную семью с 4 детьми, шесть весёлых студентов или две дружных семейных пары. Проект был разработан в дополнение к коллекции проектов жилых домов РИО или МАЛЬТА и может составить с любым из них гармоничную усадьбу. ДЕНЕЖНЫЙ имеет угловую конфигурацию и боковой вход, что позволит скромно и удобно расположить его в углу участка при въезде, возможно даже с изолированным входом и маленьким палисадником.
Оглавление
Конечно, хорошо иметь участок земли с домом у реки, леса или моря - если даже не жить там постоянно, в любой момент можно приехать и хорошо отдохнуть. Единственный минус - частный дом требует больше финансовых вливаний, чем городская квартира. Нужен ремонт, отопление, уход за участком и т.д.
Чтобы сделать свою жизнь более беззаботной, советуем обратить расход в доход, построив кроме основного жилого второй, маленький домик, удобный для сдачи внаём отдыхающим.

Дом ДЕНЕЖНЫЙ легко справится с этой задачей - он маленький, недорогой в строительстве и простой в обслуживании. И может вместить спокойную семью с 4 детьми, шесть весёлых студентов или две дружных семейных пары.

Проект был разработан в дополнение к коллекции проектов жилых домов РИО или МАЛЬТА и может составить с любым из них гармоничную усадьбу. ДЕНЕЖНЫЙ имеет угловую конфигурацию и боковой вход, что позволит скромно и удобно расположить его в углу участка при въезде, возможно даже с изолированным входом и маленьким палисадником. Также можно менять ориентацию окон комнат, чтобы ваш приватный сад был скрыт от глаз квартирантов.

ПЛАНИРОВКА

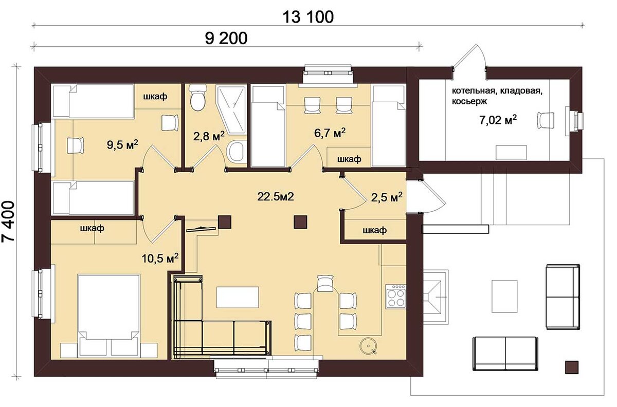
Все помещения этажа скомпонованы вокруг эффектного пространства гостиной с камином и панорамным окном в центре дома. В интерьере применён приём визуального (и фактического) объединения кухни-столовой и гостиной, это экономит площадь дома и визуально расширяет его скромное пространство.

-2

Главный вход с бокового торца. Справа от входа расположено помещение котельной, слева летняя терраса с камином. При входе в дом раскрывается красивый вид на гостиную с витражным окном, справа в нише размещена зона кухни. Вдоль гостиной одна за одной скомпонованы 3 спальных комнаты, рассчитанные на 6 человек.

Так как несущих стен в доме нет, могут быть планировку можно варьировать, например, устроить в домике 2 спальни вместо трёх или одну из комнат переоборудовать в баньку.

Домик можно построить с котельной или без неё.

КОНСТРУКТИВНЫЕ РЕШЕНИЯ

Конструктивные решения простые, экономичные и максимально надежные.

Фундаменты ленточные монолитные на глубину промерзания грунта. Наружные стены толщиной 400 мм из газосиликатных блоков. Перегородки из гипсокартона по деревянному каркасу. Перекрытие пола - железобетонное.

Кровля шатровая, утепленная, по деревянным балкам и стропилам очень экономной уникальной конструкции, разработанной в бюро ИНВАПОЛИС. Особенность такой конструкции в том, что её элементы одновременно являются функциональными и декоративными: балки, нижние части стропил и подшивка формируют графичный рисунок дере-вянного потолка.

План дома РИО 117, который можно строить вместе с ДЕНЕЖНЫМ
План дома РИО 117, который можно строить вместе с ДЕНЕЖНЫМ
  • Информацию для заказа чертежей Вы можете найти на странице дома на нашем основном сайте.
  • Другие проекты гостевых домиков ИНВАПОЛИС здесь...
  • Вся коллекция домов РИО
  • Если Вам интересны наши проекты, подписывайтесь на канал ИНВАПОЛИС-ДЗЕН, смотрите обзоры и подборки домов, задавайте вопросы авторам в комментариях.