Найти в Дзене

Проект Холма Смарт

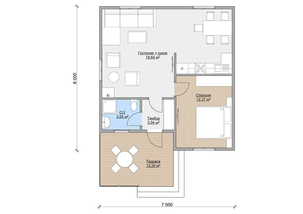
Параметры дома: Площадь дома 50 м² Количество этажей 1 Площадь кухни-гостиной 19,64 м² Количество спален 2 Количество санузлов 1 Площадь террасы 12,2 м²

Параметры дома:

Площадь дома 50 м²

Количество этажей 1

Площадь кухни-гостиной 19,64 м²

Количество спален 2

Количество санузлов 1

Площадь террасы 12,2 м²

-2