Добавить в корзинуПозвонить
Найти в Дзене
Береговой

Как выглядят планировки квартир для большой семьи в квартале возле парка «Фили»

Представьте: у вас дома светло и просторно, у детей и взрослых есть свои приватные пространства, а также имеется помещение для дружных семейных посиделок. Выглядывая в окно, вы видите зелень, реку и небо, а рядом с домом дети могут бегать по лужайкам и дышать свежим воздухом. Кажется, что речь о загородном доме? Но нет: до Арбата на автомобиле можно домчать за 15 минут, до Сити – за 10, а в пешей доступности есть станции метро «Фили» и МЦК «Шелепиха». Можно легко доехать на работу, в театр или до лучшей в городе школы искусств. Хотите так жить? Это возможно в жилом квартале Береговой, расположенном на первой линии Москвы-реки рядом с парком «Фили» и свободной от машин набережной с парком в духе «Зарядья». Давайте посмотрим, какие планировки здесь предлагают для больших семей, какие виды отделки включены в цену и какие опции для вашего комфорта предусмотрены в квартале. Что собой представляют планировки квартир? Во всех квартирах Берегового высота потолков составляет 3 метра, а высота о
Оглавление

Представьте: у вас дома светло и просторно, у детей и взрослых есть свои приватные пространства, а также имеется помещение для дружных семейных посиделок. Выглядывая в окно, вы видите зелень, реку и небо, а рядом с домом дети могут бегать по лужайкам и дышать свежим воздухом.

Кажется, что речь о загородном доме?

Но нет: до Арбата на автомобиле можно домчать за 15 минут, до Сити – за 10, а в пешей доступности есть станции метро «Фили» и МЦК «Шелепиха». Можно легко доехать на работу, в театр или до лучшей в городе школы искусств.

Хотите так жить? Это возможно в жилом квартале Береговой, расположенном на первой линии Москвы-реки рядом с парком «Фили» и свободной от машин набережной с парком в духе «Зарядья».

Давайте посмотрим, какие планировки здесь предлагают для больших семей, какие виды отделки включены в цену и какие опции для вашего комфорта предусмотрены в квартале.

Квартал полностью готов, ключи от квартир выдаются сразу после покупки
Квартал полностью готов, ключи от квартир выдаются сразу после покупки

Что собой представляют планировки квартир?

Во всех квартирах Берегового высота потолков составляет 3 метра, а высота окон – 210 см. Из этих окон открываются виды на реку, сталинки, Сити и зелёный двор, а также через них обильно поступает свежий воздух (спасибо парковому окружению). Впрочем, если покажется, что естественной вентиляции недостаточно, поможет механическая вытяжка и центральное кондиционирование (все системы установлены вдали от квартир, на техническом этаже, так что микроклимат в доме будет улучшаться бесшумно).

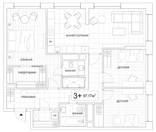
  • Если у вас двое детей и вы ищете практичную жилплощадь из разряда «чтобы было комфортно, но не в дворцовом стиле», стоит присмотреться к трёхкомнатным европланировкам около 80-100 квадратов:
Добавьте описание
Добавьте описание

Кухня-гостиная с тремя панорамными окнами достаточно просторна и освещена, чтобы там было приятно проводить время вместе: кто-то готовит, кто-то читает или рисует, кто-то просто лежит на диване, но всё равно все рядом.

Родительская спальня дистанцирована от детских, а ещё здесь есть удобная ниша для гардероба и приватный санузел с душевой – всё для того, чтобы взрослые были не только «мамой-папой», но и могли комфортно вести свою частную жизнь, которая детей не касается.

Каждому из двоих детей достанется по изолированной спальне. Психологи говорят, что наличие своей комнаты помогает развить у ребёнка творческое мышление, сформировать понятие личных границ и комфорта, усвоить, что есть и права, и обязанности.

Ещё один санузел поможет избежать утренних очередей на чистку зубов, а гардеробная комната и ниша в прихожей – разгрузить жилое пространство от шкафов и комодов.

(Для тех, кому нужно больше гардеробных, есть почти такая же планировка, где предусмотрена дополнительная комната для вещей с входом из «взрослой» спальни).

● Если вы любите, чтобы кухня была изолирована от гостиной, и вам важно, чтобы пространство, где вы принимаете посетителей, было отделено от спален, можно подумать о покупке вот такой 4-комнатной квартиры чуть больше 120 квадратов:

Гостиная и кабинет – условные обозначения; разумеется, это просто жилые комнаты. Например, на месте кабинета может быть вторая детская
Гостиная и кабинет – условные обозначения; разумеется, это просто жилые комнаты. Например, на месте кабинета может быть вторая детская

Частное и общее пространство разведены коридором, а для гостей даже есть специальная уборная. Это удобно, если вы хотите посидеть с друзьями в домашней обстановке или обсудить в зуме какой-то проект, но при этом не мешать спать своей половинке и детям и вообще не пускать посторонних в личные комнаты.

Если говорить в общем, то площадь некоторых планировок в Береговом достигает 136 квадратов, а просторно и комфортно здесь даже в однушках, метраж которых начинается от 45 кв. м, и можно выбрать именно тот вариант (или несколько), который устроит по всем параметрам.

Как квартиры подготовят к новоселью?

● Для тех, кто желает лично продумать каждый сантиметр дома и украсить всё так, как давно мечталось, предусмотрена отделка white box. Это значит, что самые пыльные, шумные и требующие высокого профессионализма работы будут уже сделаны (вплоть до разводки электрики и сантехники и установки входной двери). Вы же получите белые ровные потолки, полы и стены – чистый холст для вашего творчества.

● Для тех, кто хочет эксклюзивный дизайн, но времени или желания заниматься ремонтом нет, предусмотрено ограниченное число квартир с концептуальной отделкой от бюро STUDIO 211.

Такие квартиры сдаются с готовой кухонной зоной с бытовой техникой, межкомнатными дверями из натурального дерева и полным оснащением санузлов, вплоть до стеклянной ширмы от брызг и зеркал с подсветкой и подогревом.

В жилых комнатах – паркет из благородного ясеня, по его тёплой и чуть шероховатой поверхности приятно ступать босиком. В санузлах – качественный керамогранит. Всё в естественных природных тонах, которые будут актуальны долгие годы
В жилых комнатах – паркет из благородного ясеня, по его тёплой и чуть шероховатой поверхности приятно ступать босиком. В санузлах – качественный керамогранит. Всё в естественных природных тонах, которые будут актуальны долгие годы
Фартук и столешница кухонного гарнитура выполнены из высокопрочного кварца. Здесь установят холодильник, вытяжку, духовой шкаф, варочную панель и посудомоечную машину; большая часть техники скрыта дверцами гарнитура, чтобы сохранить воздушный и ненавязчивый стиль пространства
Фартук и столешница кухонного гарнитура выполнены из высокопрочного кварца. Здесь установят холодильник, вытяжку, духовой шкаф, варочную панель и посудомоечную машину; большая часть техники скрыта дверцами гарнитура, чтобы сохранить воздушный и ненавязчивый стиль пространства

Каковы условия жизни в квартале?

Двор и инфраструктура Берегового приватные и находятся под охраной и видеонаблюдением.

Здесь предусмотрены как объекты первой необходимости (подземный паркинг, детский сад, супермаркет, аптека, бытовые услуги), так и опции для работы и отдыха – лобби с зоной коворкинга и диванами у камина, ресторан, лекторий и многое другое.

Со двора, где уже высажена взрослая зелень и оборудованы места для детских игр и отдыха, есть свой выход к набережной, которая входит в 7-километровую цепочку пешеходных набережных от «Мастерской П. Фоменко» до парка «Фили» и будет представлять собой современный парк.

На этой набережной есть причал до речных трамвайчиков, которые регулярно курсируют по маршруту от Хорошёво-Мнёвники до Киевского и обратно
На этой набережной есть причал до речных трамвайчиков, которые регулярно курсируют по маршруту от Хорошёво-Мнёвники до Киевского и обратно

В верхней части набережной, помимо холмов, полян, деревьев и цветов, будут пункты проката, беговые и прогулочные дорожки, воркаут-зоны, кафе, а в зоне у воды – амфитеатры и тихие места для йоги и созерцания.

Кажется, идиллическое сочетание близости к природе и быстрого доступа ко всем культурно-образовательным и профессионально-деловым опциям столицы, вы не находите? И все это доступно уже сейчас, ведь квартиры в Береговом готовы.

Листайте ниже, чтобы зайти в интернет-бутик квартир, узнать больше деталей о квартале и забронировать планировку, которая лучше всего подойдет вам и вашим детям.