Добавить в корзинуПозвонить
Найти в Дзене

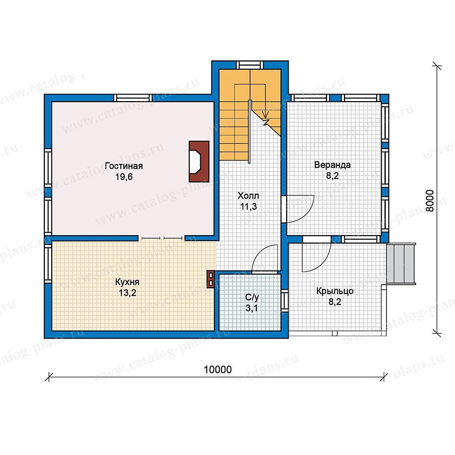
70-45 - Проект каркасного дома в немецком стиле, общая площадь 127м²

Общая площадь: 127 м² Габариты: 10x8 м Наружные стены: деревянный каркас Фундамент: монолитная ж/б плита Перекрытия: по деревянным балкам Крыша: мансардная Кровля: металлочерепица Наружная отделка: штукатурка Цоколь: нет Архитектурный стиль: немецкий Подробнее о проекте:
https://catalog-dom.ru/catalog/70-45

Общая площадь: 127 м²

Габариты: 10x8 м

Наружные стены: деревянный каркас

Фундамент: монолитная ж/б плита

Перекрытия: по деревянным балкам

Крыша: мансардная

Кровля: металлочерепица

Наружная отделка: штукатурка

Цоколь: нет

Архитектурный стиль: немецкий

Подробнее о проекте:
https://catalog-dom.ru/catalog/70-45