Найти в Дзене

Проект одноэтажного дома с диагональным планом - «Модуль» 352А - 300 кв.м

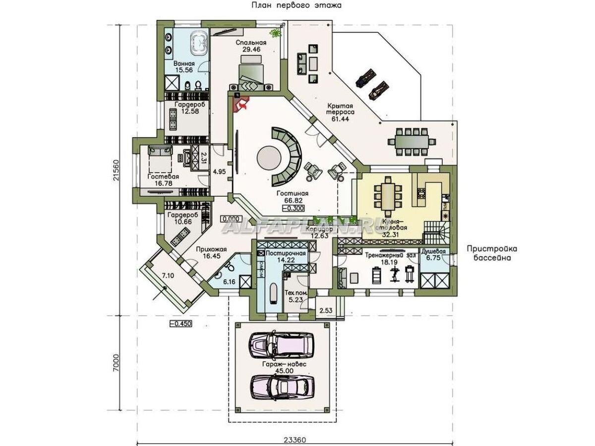
Проект одноэтажного дома с диагональным планом - «Модуль» 352А – площадью 300 м2, с 2 спальнями, гаражом-навесом, тренажерным залом, объемной гостиной и террасой — эффектный респектабельный коттедж, изначально созданный по индивидуальному заказу и рассчитанный на большой земельный участок, с возможностью пристройки бассейна. У проекта дома есть ПРЯМОЙ (на изображениях) и зеркальный варианты. Подписывайтесь на наш канал Яндекс ДЗЕН, прежде чем читать дальше. У нас – только уникальные авторские проекты домов. Нам интересно Ваше мнение об этом проекте дома. Поделитесь им с нами! Планировка дома симметрична относительно оси, пересекающей прихожую, шестиугольную гостиную 67 м2 и большую крытую террасу (61 м2). Помещения дома по этой оси можно также условно разделить на две функциональные зоны: активную и зону отдыха. В активной (гостевой) части расположены: объемная гостиная с большими панорамными окнами с угловым камином,
большим домашним кинотеатром и выходом на террасу; кухня-столо

Проект одноэтажного дома с диагональным планом - «Модуль» 352А – площадью 300 м2, с 2 спальнями, гаражом-навесом, тренажерным залом, объемной гостиной и террасой — эффектный респектабельный коттедж, изначально созданный по индивидуальному заказу и рассчитанный на большой земельный участок, с возможностью пристройки бассейна. У проекта дома есть ПРЯМОЙ (на изображениях) и зеркальный варианты.

Подписывайтесь на наш канал Яндекс ДЗЕН, прежде чем читать дальше. У нас – только уникальные авторские проекты домов.

Проект одноэтажного дома "Модуль" 352А                                       © Владимир Тарасов
Проект одноэтажного дома "Модуль" 352А © Владимир Тарасов

Нам интересно Ваше мнение об этом проекте дома. Поделитесь им с нами!

Планировка дома симметрична относительно оси, пересекающей прихожую, шестиугольную гостиную 67 м2 и большую крытую террасу (61 м2). Помещения дома по этой оси можно также условно разделить на две функциональные зоны: активную и зону отдыха.

В активной (гостевой) части расположены:

объемная гостиная с большими панорамными окнами с угловым камином,
большим домашним кинотеатром и выходом на террасу;

кухня-столовая, преимуществом которой в том числе является большой количество встроенных шкафов для хранения, а также наличие погреба, спуск в которой осуществляется по лестнице. В погребе устроены три кладовые различного размера и назначения.

домашний тренажёрный зал с душевой, практичная постирочная и гладильная комната, тех.помещение с отдельным выходом, откуда можно пройти к автомобилям на крытую стоянку, вместительная гардеробная при входе.

В зоне релакса находятся:

просторная мастер - спальня хозяев дома с отдельной гардеробной и ванной с джакузи.

комната, которая может быть детской или гостевой, в зависимости от состава семьи.

Крытая терраса дома вмещает уголок отдыха и обособленную трапезную зону, где можно будет обедать всей семьёй в летнее время, наслаждаясь прохладой.

Фасады дома по проекту 352А "Модуль" решены в современном стиле. Применяемые облицовочные материалы  выбраны светлых тонов: белая штукатурная система, бежевые фасадные панели, серый искусственный камень в отделке цоколя и колон крыльца. За счет такого решения фасады дома не выглядят громоздко.           © Владимир Тарасов
Фасады дома по проекту 352А "Модуль" решены в современном стиле. Применяемые облицовочные материалы выбраны светлых тонов: белая штукатурная система, бежевые фасадные панели, серый искусственный камень в отделке цоколя и колон крыльца. За счет такого решения фасады дома не выглядят громоздко. © Владимир Тарасов

Посмотреть подробней проект дома и заказать его можно по ссылке.

Проектом предусмотрена возможность пристройки бассейна (см. на изображении - проект 352А-2). Вас также может заинтересовать вариант проекта 350А «Альтер Эго» с диагональным планом меньшей площади или другие варианты нашей коллекции «Одноэтажная Россия».

Строительство дома под ключ ведется из газобетона с утеплением минватой, кровля из битумной черепицы., фундамент – монолитная ж/б плита. Строительство дома под ключ может быть выполнено в любом регионе России. Готовые проекты домов требуют ПРИВЯЗКИ к участку строительства дома.

Проект дома цена (на момент публикации): архитектурно-строительная документация (АС): 51100 руб., инженерные разделы: 9300 рублей.

«Фото построенных домов» – более 450 фотогалерей строительства домов по нашим проектам.

Еще больше интересных постов в нашем Telegram. , VK, FB.

Стройте дома по проектам ® Альфаплан!

Проект разработан архитектурным бюро ®«Альфаплан». У нас – только уникальные авторские проекты домов. Архитектурный проект дома является охраняемым объектом авторского права. Воспроизведение визуализаций проекта и/или его частей разрешается с обязательным указанием имени автора и активной гиперссылки на источник.

#загородный дом #одноэтажный дом #проект под ключ #планировка дома #строительство домов