Найти в Дзене
Просто о Каркасе.

Каркасный дом. Основы стройки. Простыми словами.

Просто о каркасном домике. Привет, читатель. Я научу тебя строить каркасный дом. Это просто! Но вначале я расскажу немного о себе: Еще в 2013 году я загорелся желанием построить свое каркасное убежище. Сейчас, спустя время я переквалифицировался, но дом я все таки достроил. На своем канале я хочу рассказать тебе как построить примерно вот такой каркасный дом. А ты уже с полученными знаниями, можешь творить все что угодно! Итак, начнем с первого, но самого важного этапа: подготовка!
Для начала, нужно определиться, с размерами и планировкой дома, а так же правильно выбрать место на своей территории.
Думаю что про полный список можно сделать отдельную статью На этом наш этап подготовки полностью завершен. Осталось закупить весь материал по проекту и можно приступать. В следующей статье мы продолжим. Подпишись на канал, что бы не пропустить
продолжение!
Часть 2 : Фундамент и обвязка.
Оглавление

Просто о каркасном домике.

Привет, читатель. Я научу тебя строить каркасный дом. Это просто! Но вначале я расскажу немного о себе:

Еще в 2013 году я загорелся желанием построить свое каркасное убежище. Сейчас, спустя время я переквалифицировался, но дом я все таки достроил. На своем канале я хочу рассказать тебе как построить примерно вот такой каркасный дом. А ты уже с полученными знаниями, можешь творить все что угодно!

Каркасный дом 6*6, который мы будем строить.
Каркасный дом 6*6, который мы будем строить.

Итак, начнем с первого, но самого важного этапа: подготовка!
Для начала, нужно определиться, с размерами и планировкой дома, а так же правильно выбрать место на своей территории.

  • Нам необходимо: выбрать либо проект из готовых, либо обратиться за помощью в специализированные компании. Второй вариант конечно надежнее. Специалисты подберут для Вас, или сделают новый качественный проект.
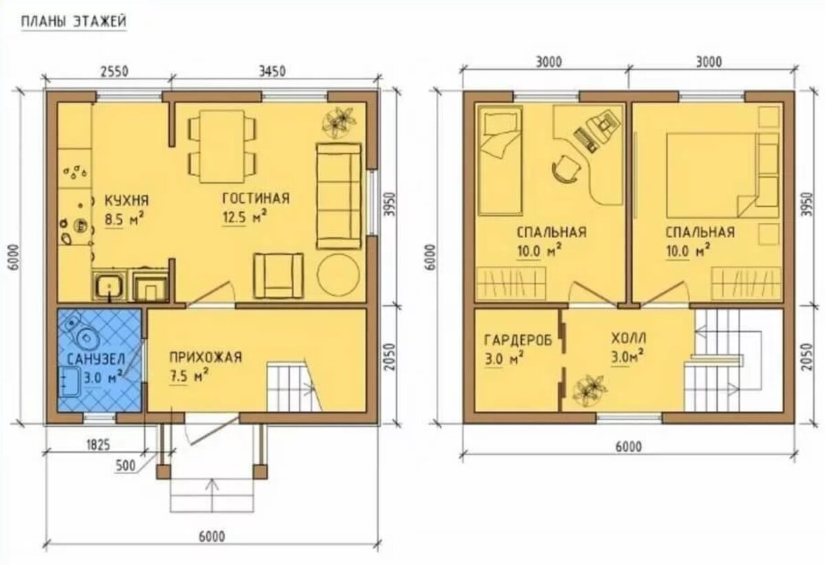
проект дома 6*6
проект дома 6*6

  • Проект подобрали. Место выбрали. Что дальше? Правильно - инструмент!
    Для сборки каркасника нам
    понадобится не так много инструмента, но без большинства тут не обойтись. Итак, что нам понадобится:
  1. Измерительный инструмент: Рулетки, Линейки, Угольники, Уровень.
  2. Пилы: Торцовочная, Циркулярная, Обычная бензопила, Ножовка, в общем чем больше разновидностей пил у вас имеется, тем проще будет вам при работе.
  3. Молотки, Шуруповерт, в идеале, конечно Нейлер, пригодится так же в некоторых моментах болтоверт и дрель. Далее расскажу для чего.
  4. Так же, малый инструмент: например, пистолет для пены, герметика.

Думаю что про полный список можно сделать отдельную статью

На этом наш этап подготовки полностью завершен. Осталось закупить весь материал по проекту и можно приступать. В следующей статье мы продолжим.

Подпишись на канал, что бы не пропустить
продолжение!


Часть 2 : Фундамент и обвязка.