Найти в Дзене
ZAGGO.RU

Отвод дождевой и талой воды с участка, или Как организовать скрытую систему дренажа?

Весенние паводки — серьезная проблема для владельцев частных домов. Стоящая на участке вода подмывает фундаменты построек, вредит корням растений, да и ходить по раскисшей земле — удовольствие ниже среднего. А значит, нужна дренажная система. Есть два вида систем, отводящих воду с участка: открытая и закрытая. Открытая представляет собой сеть из бетонных, металлических или пластиковых лотков, проложенных поверх грунта. Она хорошо справляется с отводом стекающей с крыши дома дождевой воды (поэтому называется ливневой). Но чтобы избавить участок от паводковых вод, открытых каналов должно быть слишком много, и это отнимет у участка непозволительно много площади. Да и участок они, в общем-то, не украшают. Закрытый дренаж — система погруженных в грунт перфорированных труб — не занимает полезное место и не портит ландшафт. Вода движется под землей (самотеком или при помощи насоса), и попадает в водосборный колодец, а из него — в придорожную канаву, ближайший водоем или общую систему дождевой
Оглавление

Весенние паводки — серьезная проблема для владельцев частных домов. Стоящая на участке вода подмывает фундаменты построек, вредит корням растений, да и ходить по раскисшей земле — удовольствие ниже среднего. А значит, нужна дренажная система.

Есть два вида систем, отводящих воду с участка: открытая и закрытая. Открытая представляет собой сеть из бетонных, металлических или пластиковых лотков, проложенных поверх грунта. Она хорошо справляется с отводом стекающей с крыши дома дождевой воды (поэтому называется ливневой). Но чтобы избавить участок от паводковых вод, открытых каналов должно быть слишком много, и это отнимет у участка непозволительно много площади. Да и участок они, в общем-то, не украшают.

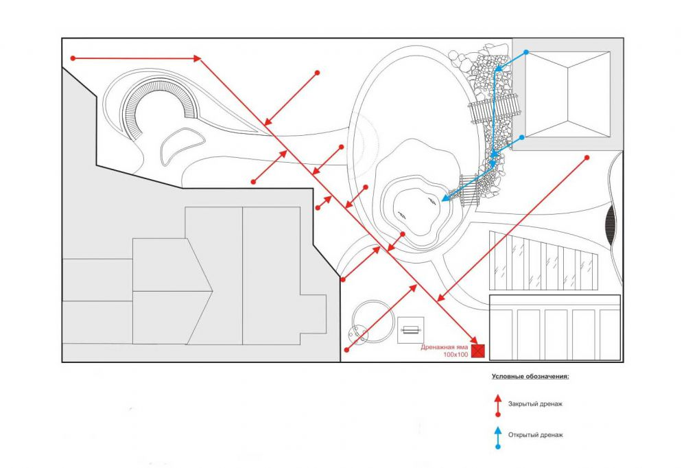
Проект дренажной системы
Проект дренажной системы

Закрытый дренаж — система погруженных в грунт перфорированных труб — не занимает полезное место и не портит ландшафт. Вода движется под землей (самотеком или при помощи насоса), и попадает в водосборный колодец, а из него — в придорожную канаву, ближайший водоем или общую систему дождевой канализации, если таковая имеется.

Дрены

Основным компонентом закрытой дренажной системы являются дрены. Они могут быть керамическими, каменными и асбестоцементными. Но такие изделия критически дороги, поэтому применяются редко. В подавляющем количестве случаев участки осушают при помощи пластиковых труб. И их стоит рассмотреть подробно.

Итак, пластмассовая дрена — это гофрированная труба с отверстиями, через которые поступает вода. Гофрирование дает трубе возможность изгибаться на сложных участках рельефа и выдерживать давления грунта при сезонных подвижках. Диаметр предлагаемых рынком изделий составляет 50-200 мм.

Дренаж участка без гравия и щебня: эффективная и экономичная технология отвода воды

Материалом для дрен служат полиэтилен низкого давления (ПНД), полиэтилен высокого давления (ПВД) и поливинилхлорид (ПВХ). Все они предназначены для закладки на глубину не более 2 м. Для дренажной системы дачного участка этого более чем достаточно. Существуют также двухслойные дрены (ПНД+ПВД) высокой прочности, которые можно погружать более чем на 5 м, но они разработаны для крупных магистралей.

Пластиковая дрена
Пластиковая дрена
Фасонные изделия, служащие для соединения дрен под разными углами, изготавливают из полипропилена — более крепкого, надежного и дорогого, чем вышеперечисленные, пластика. Перфорацию в изделиях такого рода не делают

Технология укладки

Отводящие воду трубы укладывают в траншеи, глубина которых определяется несколькими факторами, основной из которых — тип почвы. Для минеральных грунтов этот показатель составляет от 60 до 150 см. Для торфяных — 100-160 см. Увеличенная глубина во втором случае связана с тем, что торф нестабилен — он постоянно разлагается и вымывается.

Схема устройства системы дренажа 
1. Дренажная труба
2. Щебень мытый
3. Геотекстиль
4. Песок мытый
5. Плодородный грунт
6. Газон
Схема устройства системы дренажа 1. Дренажная труба 2. Щебень мытый 3. Геотекстиль 4. Песок мытый 5. Плодородный грунт 6. Газон

На глубину прокладки дрен влияет еще один фактор — глубина залегания так называемого водоупора, то есть почвенного пласта, непроницаемого для влаги. Очевидно, что дрену нужно укладывать выше него, иначе в дренажной системе просто не будет смысла. Определить, где проходит водоносный горизонт, а также узнать другую полезную информацию о состоянии почвы на участке, можно, сделав геодезические исследования. Сегодня существует множество компаний, предлагающих услуги такого рода. Да, привлечение специалистов повлечет за собой определенные расходы, но в конечном итоге затраты себя оправдают.

Ширина траншеи для дрен составляет в среднем 30-40 см. Чтобы избежать осыпания грунта в процессе рытья, ее стенки делают небольшим с уклоном наружу. Если грунты слабые, траншею можно временно укрепить сколоченными из досок щитами.

Одна погруженная в грунт дренажная труба длиной 1 м осушает в среднем 10-20 м² участка

Чтобы обеспечить естественный ток воды, дрены нужно прокладывать с уклоном в сторону излива. Минимальный уклон — 3 мм на 1 м длины. Разумно будет увеличить эту цифру до 5 мм на 1 м длины. Но делать слишком крутой спуск не следует, иначе быстро текущая вода будет переполнять систему в нижней точке.

Этапы устройства системы дренажа
Этапы устройства системы дренажа

Шаг расположения дрен зависит от типа грунта. На тяжелых — глинистых и суглинистых — трубы прокладывают на расстоянии от 4 до 15 м друг от друга. На легких супесчаных и песчаных — через каждые 20-30 м.

Завершив земельные работы, на дно траншеи укладываю геотекстиль и далее делают подушку из щебня (обратный фильтр) для дренажной трубы. Стремясь упростить себе задачу, многие ограничиваются слоем песка толщиной около 10 см, но лучше использовать щебень.

Следующий этап — собственно прокладка труб. Чтобы отверстия в дренах не забивались грязью, необходим еще один фильтр, который подбирают в зависимости от типа почвы на участке. На глинистых грунтах лучше всего работает оболочка из кокосового волокна. В продаже можно найти готовые трубы, обернутые этим материалом. Для суглинков подходит геотекстиль толщиной от 2 до 4 мм. А если в грунте преобладает песок, подойдет стеклохолст и схожие с ним тонкие материалы.

Обернутую в тот или иной фильтр дрену засыпают щебнем (фракции 20-40 мм) на 2/3 глубины траншеи. Поверх заводят концы полотна геотекстиля и делают песчаную подушку толщиной 5-10 см. А ее, в свою очередь, засыпают плодородным грунтом и засеивают газоном. На этом прокладку труб можно считать законченной.

Колодцы

Даже прошедшая сквозь фильтры грунтовая вода, поступающая в дрены, не может похвастаться кристальной чистотой. Чтобы песок, ил и прочие загрязняющие частицы не препятствовали работе системы, ставят дренажные колодцы. Вода, попадая в них, замедляет течение, и содержащаяся в ней взвесь оседает на дне, которое должно быть ниже зоны присоединения труб как минимум на 40 см.

Помимо основной своей функции дренажные колодцы являются также узлом сопряжения труб

Производят колодцы из армированного бетона и пластика. Разумеется, первые долговечнее вторых. Есть также разница в обслуживании. Колодцы нужно чистить как минимум раз в год, и в случае с пластиковыми колодцами, диаметр которых составляет обычно 31,5-60 см, пользуются черпаками или ставят грязевой насос. Бетонные же колодцы (70-100 см) позволяют спуститься внутрь и провести максимально качественную ассенизацию.

Пластиковые колодцы
Пластиковые колодцы

Кроме того, специалисты рекомендуют установить два-три смотровых колодца, позволяющих отслеживать уровень грунтовых вод. Их ставят в верхней и нижней точках системы, но не подключают к ней.

Насосы

Дренажные насосы нужны тогда, когда воду в системе нужно поднять выше ее естественного уровня. Например, дренаж проходит на глубине 80 см, а сточная канава — на глубине 50 см.

При выборе насоса исходят из того, что объем перекачиваемых сточных вод составляет от 40 до 200 л в час на 100 м² площади. Но это — минимальные цифры, не учитывающие неизбежные «форс-мажоры», например, ливневые дожди, которые будут перенасыщать почву влагой. Так что разумно будет приобрести насос мощнее необходимого в два, а то и в три раза.

Зачем нужно проводить инженерно-геологические изыскания?

Что же касается напора, его определяют исходя из расстояния от зеркала воды до верхней точки ее подачи. Потери напора по упрощенной формуле можно рассчитать так: каждые 10 м трубы означают минус 1 м напора.

Обслуживание системы

Огромным плюсом скрытой дренажной системы является то, что на зиму из нее не нужно сливать воду. Ведь ее уровень в трубах редко поднимается выше 1-2 см. Остальной объем занимает воздух, который не позволит трубе разорваться, даже если жидкость замерзнет. Да и рыхлый объемный фильтр работает как естественный теплоизолятор. Единственное, что следует сделать до наступления холодов — достать из колодца насосы, и то только в том случае, если шахта не утеплена. Вернуть насосы на место нужно до весенних паводков, самое позднее — в середине марта.

И все же нельзя сказать, что скрытая дренажная система в принципе не требует ухода. Раз в 10-15 лет ее необходимо промывать. Очевидно, что каждая дрена для этого должна быть доступна с двух концов. Одним из них является ближайший колодец. А другим — выпуск, который нужно предусмотреть еще на стадии монтажа. Для вывода труб на поверхность разработаны специальные фасонные элементы, которые в «нерабочее» время закрывают заглушками, чтобы защитить систему от мусора извне.

Промывка труб осуществляется при помощи насоса, который подключают поочередно к обоим концам дрены, прогоняя воду в двух направлениях.

Дренаж без щебня

-7

Существуют готовые к укладке дренажные системы, заметно упрощающие работы по осушению участка. Так, модули SoftRock состоят из перфорированной гибкой трубы, которая погружена в пенополистирольную засыпку. Как утверждают производители, она эффективнее традиционного щебня на 30–50 %. Для защиты от заиливания труба обернута в геотекстиль.

Длина модулей составляет 3 м, а внутренний диаметр может быть равен 110, 160 или 200 мм. Система предназначена для укладки в грунт на глубину до 2,5 м. Прогнозируемый срок ее службы — порядка 100 лет.

Источник: https://www.zaggo.ru/article/stroitel_stvo/uchastok/otvod_dozhdevoj_i_taloj_vody_s_uchastka_ili_kak_organizovat_skryt.html

Затапливает участок и подвал во время дождя? 5 способов это предотвратить
Что делать, если весной подтапливается участок?
Зачем нужно проводить инженерно-геологические изыскания?