Найти в Дзене
Вира-АртСтрой

10 проектов дизайна квартиры в стиле минимализм

Проект в стиле минимализм позволяет выполнить бюджетный, но при этом красивый ремонт в сжатые сроки. В этом обзоре мы покажем вам модные интерьеры квартир из нашего портфолио, решенные в минималистичном ключе. Познакомиться с полными галереями проектов можно по ссылкам. Пишите в комментариях, какие варианты вам понравились! 1. Дизайн 2-комнатной квартиры 60 м² Ссылка на дизайн-проект «Гармония уюта» Планировка квартиры 2. Дизайн 2-комнатной квартиры 56 м² Ссылка на дизайн-проект «Братья Блюз» Планировка квартиры 3. Дизайн 4-комнатной квартиры 77 м² Ссылка на дизайн-проект «Сложный серый» Планировка квартиры 4. Дизайн 2-комнатной квартиры 55 м² Ссылка на дизайн-проект «Квартира для холостяка» Планировка квартиры 5. Дизайн 3-комнатной квартиры 65 м² Ссылка на дизайн-проект «Кофейная сказка» Планировка квартиры 6. Дизайн 4-комнатной квартиры 253 м² Ссылка на дизайн-проект «Правильное сочетание» Планировка квартиры 7. Дизайн 3-комнатной квартиры 124 м² Ссылка на дизайн-проект «Возвращение
Оглавление

Проект в стиле минимализм позволяет выполнить бюджетный, но при этом красивый ремонт в сжатые сроки. В этом обзоре мы покажем вам модные интерьеры квартир из нашего портфолио, решенные в минималистичном ключе.

Познакомиться с полными галереями проектов можно по ссылкам. Пишите в комментариях, какие варианты вам понравились!

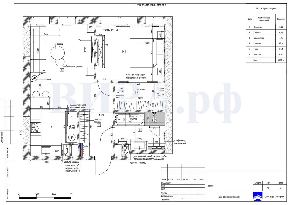
1. Дизайн 2-комнатной квартиры 60 м²

Ссылка на дизайн-проект «Гармония уюта»

Планировка квартиры

2. Дизайн 2-комнатной квартиры 56 м²

Ссылка на дизайн-проект «Братья Блюз»

Планировка квартиры

-2

3. Дизайн 4-комнатной квартиры 77 м²

Ссылка на дизайн-проект «Сложный серый»

Планировка квартиры

-3

4. Дизайн 2-комнатной квартиры 55 м²

-4

Ссылка на дизайн-проект «Квартира для холостяка»

Планировка квартиры

-5

5. Дизайн 3-комнатной квартиры 65 м²

-6

Ссылка на дизайн-проект «Кофейная сказка»

Планировка квартиры

-7

6. Дизайн 4-комнатной квартиры 253 м²

-8

Ссылка на дизайн-проект «Правильное сочетание»

Планировка квартиры

-9

7. Дизайн 3-комнатной квартиры 124 м²

Ссылка на дизайн-проект «Возвращение к простоте»

Планировка квартиры

-10

8. Дизайн 4-комнатной квартиры 181 м²

Ссылка на дизайн-проект «Гармония формы»

Планировка квартиры

-11

9. Дизайн 3-комнатной квартиры 74 м²

-12

Ссылка на дизайн-проект «На стыке контрастов»

Планировка квартиры

-13

10. Дизайн 4-комнатной квартиры 162 м²

-14

Ссылка на дизайн-проект «Магия цвета»

Планировка квартиры

-15

Также по теме:

✔️ Сколько стоит дизайн и ремонт квартиры?

Понравилась публикация? Ставьте лайки и подписывайтесь на наш канал!

Телефон компании «Вира-АртСтрой»: ☎️ +7 (495) 989-54-03

-16