Добавить в корзинуПозвонить
Найти в Дзене
Вира-АртСтрой

Современный интерьер 4-комнатной квартиры

Интерьер этой квартиры в Зеленограде вдохновляет на путешествия к далеким Карибским островам. Такое дизайнерское решение придется по вкусу морским романтикам. Капитанская каюта Здесь есть и библиотека, и уютная современная мягкая мебель, располагающая к чтению романов про пиратов до утра. Глубокое синее море В основе цветовой палитры интерьера — глубокий синий цвет. Декор — морская полоска, стильные ромбовидные узоры, тематические фрески и постеры с рыбными косяками, морскими животными и бурлящими голубыми водоворотами. Погружение в морские грёзы В спальне тематика морских путешествий поддерживается доской для сёрфинга, графичным текстильным принтом в виде морских ракушек и цветовым решением в оттенках голубого и бежевого с ярким солнечно-жёлтым акцентом. Детскую комнату украшают обои с изображениями резвящегося семейства китов и забавное кресло со спинкой в виде головы зубастой акулы. Стильный декор гостевого санузла навеян корабельной романтикой — изображением компаса, де
Оглавление

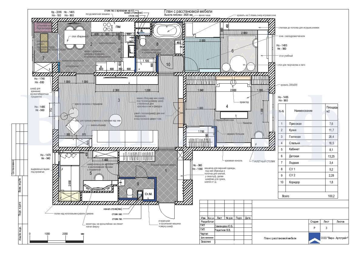
Планировка из проекта современной четырехкомнатной квартиры 100 кв. м
Планировка из проекта современной четырехкомнатной квартиры 100 кв. м

Интерьер этой квартиры в Зеленограде вдохновляет на путешествия к далеким Карибским островам. Такое дизайнерское решение придется по вкусу морским романтикам.

Капитанская каюта

Дизайн гостиной
Дизайн гостиной

Домашняя библиотека и диванная зона в гостиной
Домашняя библиотека и диванная зона в гостиной

Здесь есть и библиотека, и уютная современная мягкая мебель, располагающая к чтению романов про пиратов до утра.

Глубокое синее море

Интерпретация морской тематики в интерьере квартиры из нашего портфолио
Интерпретация морской тематики в интерьере квартиры из нашего портфолио

В основе цветовой палитры интерьера — глубокий синий цвет. Декор — морская полоска, стильные ромбовидные узоры, тематические фрески и постеры с рыбными косяками, морскими животными и бурлящими голубыми водоворотами.

Идея оформления столовой зоны в современной квартире
Идея оформления столовой зоны в современной квартире
Отделка кухонного фартука
Отделка кухонного фартука

Погружение в морские грёзы

Вариант оформления спальни для ценителей морских путешествий
Вариант оформления спальни для ценителей морских путешествий

В спальне тематика морских путешествий поддерживается доской для сёрфинга, графичным текстильным принтом в виде морских ракушек и цветовым решением в оттенках голубого и бежевого с ярким солнечно-жёлтым акцентом.

Морские мотивы в интерьере детской комнаты
Морские мотивы в интерьере детской комнаты

Детскую комнату украшают обои с изображениями резвящегося семейства китов и забавное кресло со спинкой в виде головы зубастой акулы.

Интерьер гостевого санузла с голубой плиткой
Интерьер гостевого санузла с голубой плиткой

Стильный декор гостевого санузла навеян корабельной романтикой — изображением компаса, деревянной текстурой палубы и веселой игрой световых бликов на поверхности морской воды.

Море и земля

Дизайн-проект вместительной прихожей в синих тонах
Дизайн-проект вместительной прихожей в синих тонах

Не отстаёт от маринизма и просторный холл со встроенными шкафами, где в морскую палитру вплетаются оттенки терракоты и мотивы райской растительности экзотических островов.

Также по теме:

✔️ Все фото проекта

✔️ Сколько стоит дизайн квартиры?

Понравилась публикация? Ставьте лайки и подписывайтесь на наш канал!

Телефон компании «Вира-АртСтрой»: ☎️ +7 (495) 989-54-03

Добавьте описание
Добавьте описание