Добавить в корзинуПозвонить
Найти в Дзене
ОВиК project

Обзор оборудования №6: Стакан монтажный СТАМ (ВЕЗА) со встроенным противопожарным клапаном

Данная статья не является рекламой. Ее цель - проинформировать проектировщиков о наличии данного оборудования (в каталогах пока нет). В свое время данная информация нас сильно выручила. Узлы монтажа стаканов могут пригодиться широкому кругу читателей. На данный момент достаточно много компаний производят монтажные стаканы со встроенными противопожарными клапанами (Ventz, Вентзащита, Климатвентмаш и др.). Теперь аналогичное изделие есть и у ВЕЗЫ. Подробное описание стаканов СТАМ 401, СТАМ 411 (а также стаканов СТАМ 404, СТАМ 405, СТАМ 414, СТАМ 415 - со встроенным клапаном противопожарным обратным ПРОК) представлено здесь. Схемы монтажа стаканов СТАМ на кровле: Скачать схемы можно здесь. 16.05.2021 Благодарим за внимание! Друзья, мы не просим средства на поддержку нашего проекта (хотя будем им рады, чего таить). Но если Вы действительно хотите выразить нам благодарность:

Данная статья не является рекламой. Ее цель - проинформировать проектировщиков о наличии данного оборудования (в каталогах пока нет). В свое время данная информация нас сильно выручила. Узлы монтажа стаканов могут пригодиться широкому кругу читателей.

На данный момент достаточно много компаний производят монтажные стаканы со встроенными противопожарными клапанами (Ventz, Вентзащита, Климатвентмаш и др.). Теперь аналогичное изделие есть и у ВЕЗЫ.

Рис. 1 Стаканы монтажные СТАМ 401 (слева), СТАМ 411 (справа)
Рис. 1 Стаканы монтажные СТАМ 401 (слева), СТАМ 411 (справа)

Подробное описание стаканов СТАМ 401, СТАМ 411 (а также стаканов СТАМ 404, СТАМ 405, СТАМ 414, СТАМ 415 - со встроенным клапаном противопожарным обратным ПРОК) представлено здесь.

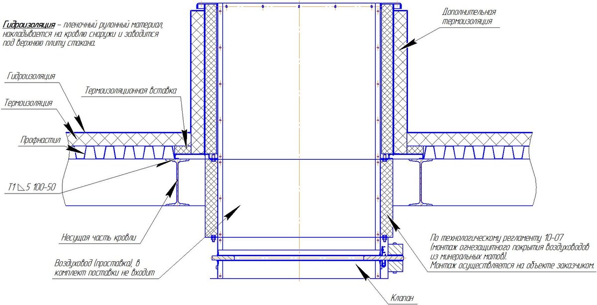
Схемы монтажа стаканов СТАМ на кровле:

Скачать схемы можно здесь.

16.05.2021

Благодарим за внимание!

Друзья, мы не просим средства на поддержку нашего проекта (хотя будем им рады, чего таить). Но если Вы действительно хотите выразить нам благодарность: