Добавить в корзинуПозвонить
Найти в Дзене
Окей, дизайнер!

Две стильные десткие для детей разного возраста

Всем привет! Я уже писала про то, что работа дизайнера интерьера с детскими, это особое искусство. Хочу поделится с вами двумя детскими для детей разного возраста на примере одного из моих проектов. Детская комната 1 . Возраст ребенка 3-5 лет. Конечно же, в таком возрасте спросить ребенка о его предпочтениях очень сложно. Поэтому дизайн комнаты выбирают родители. В данном случае, комната имеет не обычную конфигурацию, потому, что в квартире ее, как отельного помещения, вообще не подразумевалось. А на этом месте подразумевалась гостиная. Но взмахом волшебной палочки грамотной планировкой, мы переместили гостиную в другое место (позже выложу проект полностью). Детская комната для малыша, разительно отличается от детской для подростка своей функцией, точнее мебелью, которая эту функцию выполняет. Нум пока не нужен полноценный рабочий стол и кровать, но уже необходимы зоны хранения - шкаф и стеллаж. Цветовая гамма, может быть поярче, так как ребенок учится развивать свое восприятие

Всем привет!

Я уже писала про то, что работа дизайнера интерьера с детскими, это особое искусство.

Хочу поделится с вами двумя детскими для детей разного возраста на примере одного из моих проектов.

Детская комната 1 .

Возраст ребенка 3-5 лет.

Конечно же, в таком возрасте спросить ребенка о его предпочтениях очень сложно. Поэтому дизайн комнаты выбирают родители.

В данном случае, комната имеет не обычную конфигурацию, потому, что в квартире ее, как отельного помещения, вообще не подразумевалось. А на этом месте подразумевалась гостиная. Но взмахом волшебной палочки грамотной планировкой, мы переместили гостиную в другое место (позже выложу проект полностью).

Детская комната для малыша, разительно отличается от детской для подростка своей функцией, точнее мебелью, которая эту функцию выполняет. Нум пока не нужен полноценный рабочий стол и кровать, но уже необходимы зоны хранения - шкаф и стеллаж.

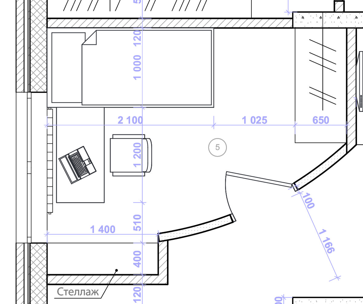
План мебели детской  комнаты 1.
План мебели детской комнаты 1.

Цветовая гамма, может быть поярче, так как ребенок учится развивать свое восприятие и крупные цветовые фрагменты ему в этом помогут.

Дизайн должен быть более "игривым" развивать фантазию и приглашать ребенка к интерекактиву.

Детская комната 2.

Возраст ребенка: 10-14 лет.

Ситуация меняться, когда нужно спроектировать детскую для подростка.

План мебели детская комната 2.
План мебели детская комната 2.

Тут уже ребенок сам делает выбор, потому он должен активно участвовать, рассказывать о своем образе жизни, вкусах и пожеланиях.

Он должен обозначить самостоятельно, то какую хочет цветовую гамму и стиль.

Но самое главное, что нужно уесть - функциональность интерьера. Рабочая зона должна быть продумана максимально удобной. У подростка должно быть больше зон хранения и мощнее освещение.

Как вам две такие детские комнаты? Пишите в комментариях.

Ставтье лайки, они мотивируют писать больше, подписывайтесь на мой Дзен, здесь много интересного:)

Переходите на мой сайт

Так же вам моет быть интересно:

5 главных правил удачной детской комнаты