Добавить в корзинуПозвонить
Найти в Дзене

💹 Проект "Люкс" - сочетание стиля и комфорта всего за 3 млн рублей

🏠 Проект «Люкс» - это отличный пример современного дома в стиле модерн, который не занимает много места на участке, но при этом не теряет своей функциональности и комфорта. Дом спроектирован специально для молодой семьи, которая ценит удобство во всем. Просторные комнаты для отдыха, большая гостиная и терраса для приятного времяпрепровождения с друзьями и близкими, отдельный тихий кабинет для работы.✅ Идеальное сочетание стиля и комфорта всего за 3 млн рублей. 📌 Рассмотрим технические характеристики 📌 Посмотрим как устроен дом внутри? Совершим небольшую экскурсию и рассмотрим проект "Люкс" поподробнее. Как и полагается, начнем с 1 этажа. 1️⃣ Первый этаж Попасть в дом можно несколькими способами: Проходя через главный вход, мы попадем в прихожую (5,2 м2). ➡️ Справа находится санузел (3,4 м2), оборудованный душевой кабинкой. Продвигаемся немного вперед по широкому коридору (7,2 м2) и здесь мы увидим лестницу на второй этаж, рядом с которой расположился вход в техническое помещение (4,
Оглавление

🏠 Проект «Люкс» - это отличный пример современного дома в стиле модерн, который не занимает много места на участке, но при этом не теряет своей функциональности и комфорта.

Дом спроектирован специально для молодой семьи, которая ценит удобство во всем. Просторные комнаты для отдыха, большая гостиная и терраса для приятного времяпрепровождения с друзьями и близкими, отдельный тихий кабинет для работы.✅ Идеальное сочетание стиля и комфорта всего за 3 млн рублей.

📌 Рассмотрим технические характеристики

  • Общая площадь: 160 м2
  • Габаритные размеры: 13×8 м
  • Этажность: 2
  • Количество комнат: 4
  • Дополнительно: терраса, балкон, 2 санузла
  • Фундамент (на выбор): монолитный, свайный, сильноармированная утепленная плита
  • Материал несущих стен: каркас
  • Кровля: оцинкованный профнастил, металлочерепица
  • Стоимость от 2 880 000 рублей

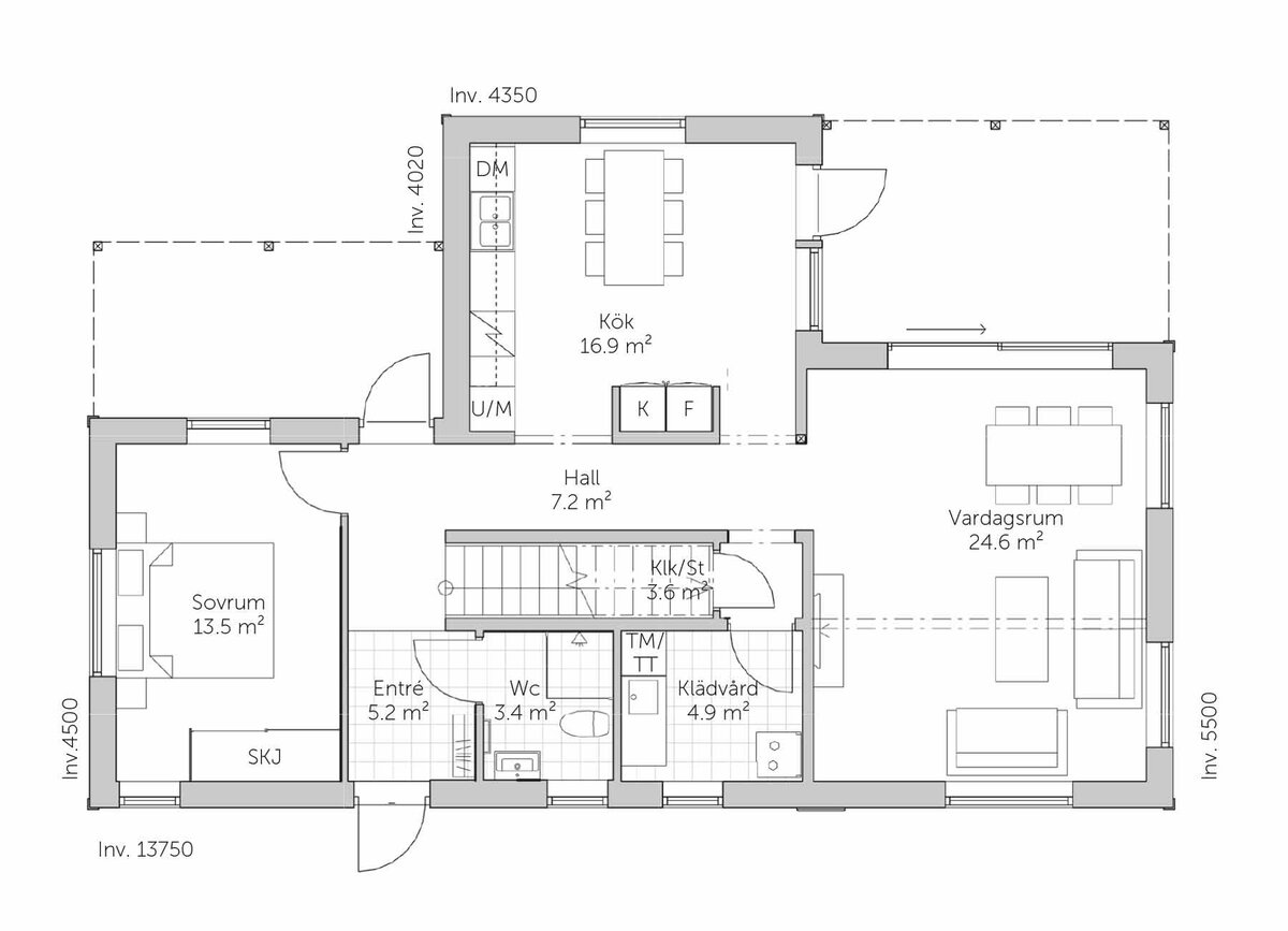
📌 Посмотрим как устроен дом внутри?

Совершим небольшую экскурсию и рассмотрим проект "Люкс" поподробнее. Как и полагается, начнем с 1 этажа.

1️⃣ Первый этаж

Попасть в дом можно несколькими способами:

  • Через прихожую
  • С внутреннего двора через кухню
  • Либо через террасу в гостиную
-2

Проходя через главный вход, мы попадем в прихожую (5,2 м2).

➡️ Справа находится санузел (3,4 м2), оборудованный душевой кабинкой.

Продвигаемся немного вперед по широкому коридору (7,2 м2) и здесь мы увидим лестницу на второй этаж, рядом с которой расположился вход в техническое помещение (4,9 м2).

⬅️ Слева дверь, ведущая в просторную гостевую (13,5 м2) с большими окнами.

⬆️ Прямо располагается светлая кухня (16,9 м2) с прекрасным видом на террасу.

➡️ Справа разместилась огромная гостиная (24,6 м2), объединенная со столовой зоной. Здесь можно прекрасно провести время в большой компании или посмотреть фильм в узком семейном кругу.

2️⃣ Второй этаж

Поднимаемся по лестнице на второй этаж. Здесь мы видим:

-3

⬅️ Слева комната (18,8 м2) с гардеробной, а ⬆️прямо расположена спальня (16,4 м2). Каждая оснащена выходом на балкон.

⬇️Есть просторная ванная комната (8,3 м2) с большой ванной с гидромассажем и душевой кабиной.

⬅️ Справа большая семейная зона (26,4 м2), через которую можно попасть в маленький уютный кабинет (7,6 м2) для уединения и спокойной работы.

Теперь вы сами можете оценить по достоинству удобство и многофункциональность данного проекта.

Расскажите в комментариях, понравился ли Вам этот уютный домик? Хотелось бы в таком жить?

А вот подборка других наших не менее интересных проектов:

Еще больше проектов на нашем сайте. Будем рады видеть вас в нашей группе ВКонтакте «Свой Дом» – строительство домов под ключ