Найти в Дзене
Антон Гончаров

Проект дома

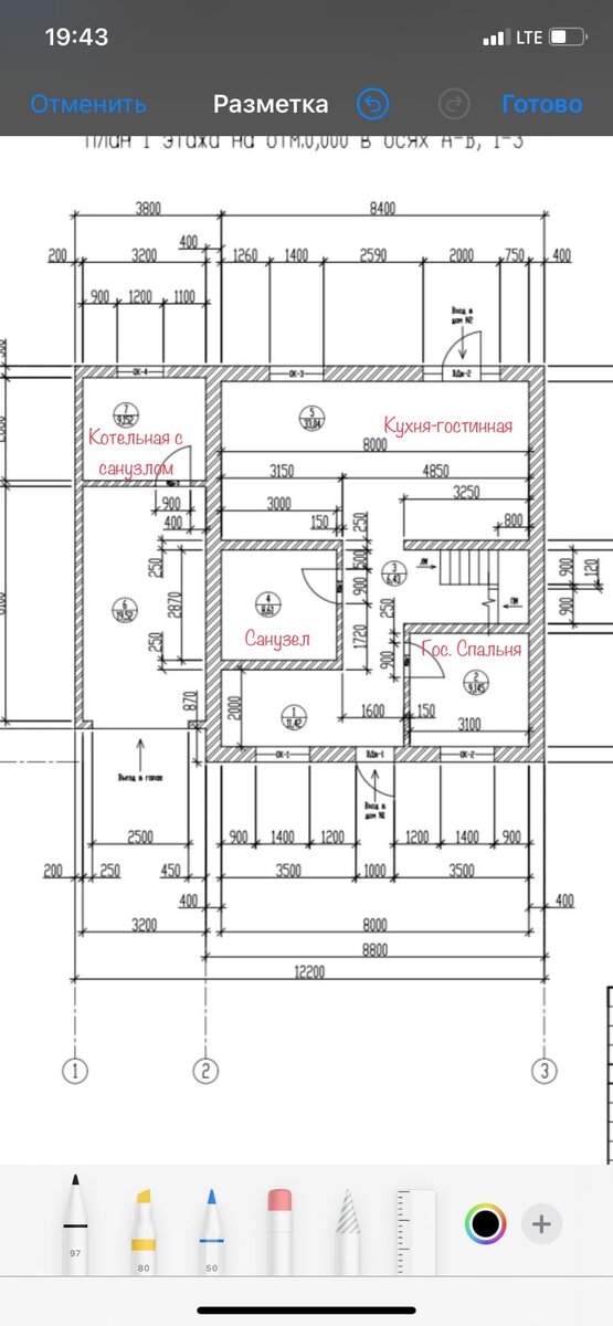
🙌ПРОЕКТ ДОМА 🙌.   Как только в наших светлых головках 😁 появилась новая мечта🏡... Мы начали поиски проекта. Начались затяжные исследования просторов интернета... это не принесло своих плодов 🤷🏼‍♂️, но... 💫Мы поняли что хотим!!!  Пришли к выводу что нам необходимо: Первый этаж /   - Просторный хол в котором спокойно могут перемещаться три и более человек и соответственно зона для хранения верхней одежды;   - Санузел в котором будет располагаться душевая кабина, унитаз, раковина, стиральная и сушильная машина;  - Гостевая спальня у нас она порядка 9 квадратов / компактная, но в тоже время в ней будет все необходимое для комфортного время препровождения ;  - Просторный хол 😅ну не любим мы тереться плечами о стены 😁; - Кухня-гостинная с окном выходящим на задний двор нашей фазенды 🌳👌🏻 и двери-портал выходящие на веранду; - Гараж примыкающий к дому в котором мы расположим также котельную.   В итоге первый этаж вместе с гаражом по площади выходит 97,3 кв. м. Второй этаж/ - Наша с
-2

🙌ПРОЕКТ ДОМА 🙌. 

 Как только в наших светлых головках 😁 появилась новая мечта🏡... Мы начали поиски проекта. Начались затяжные исследования просторов интернета... это не принесло своих плодов 🤷🏼‍♂️, но... 💫Мы поняли что хотим!!! 

Пришли к выводу что нам необходимо: Первый этаж / 

 - Просторный хол в котором спокойно могут перемещаться три и более человек и соответственно зона для хранения верхней одежды; 

 - Санузел в котором будет располагаться душевая кабина, унитаз, раковина, стиральная и сушильная машина; 

- Гостевая спальня у нас она порядка 9 квадратов / компактная, но в тоже время в ней будет все необходимое для комфортного время препровождения ; 

- Просторный хол 😅ну не любим мы тереться плечами о стены 😁; - Кухня-гостинная с окном выходящим на задний двор нашей фазенды 🌳👌🏻 и двери-портал выходящие на веранду; - Гараж примыкающий к дому в котором мы расположим также котельную. 

 В итоге первый этаж вместе с гаражом по площади выходит 97,3 кв. м. Второй этаж/ - Наша спальня совмещённая с гардеробной; - Две детские, окна в которых располагаются на задний двор; - Просторный санузел в котором будет душ, большая ванная, унитаз и раковина; - Компактный хол. 

 Итог площади по второму этажу 67 кв. м. Общая площадь дома составляет 164,24 кв. м. Сделали примерный набросок дома и пошли к архитектору 👌🏻 учтя все нормы, нагрузки, наши хотелки через почти неделю .... 💫🥳 МЫ ПОЛУЧАЕМ ПРОЕКТ🤤 P.S / Для удобства Настёна Вам подписала комнаты.