Найти в Дзене

🔶Технический проект ремонта квартиры🔶

Разделы проекта. ПЛАНИРОВКА ОТДЕЛКА ЭЛЕКТРИКА Обмер. Планировка. 3 варианта планировки, с последующей проработкой выбранного заказчиком варианта. Ремонтные работы
(стены, сантехника, оборудование). А также подсчёт площадей под отделку (для сметы). Электрика
(свет, выключатели, розетки). Это комплект чертежей, которые действительно нужны строителям для проведения евроремонта. 30 дней длится ремонт. Обычно ремонт длится 30 дней ( 1 месяц ).
Подробности в статье: "Капитальный ремонт квартиры за 1 месяц". Канал: Будни Дизайнера Сайт: ТРИ ЛУЧА 🔶 Помогаю людям определиться с их желаниями.
🔷 Делаю чертежи для строителей, чтобы эти желания были исполнены.
💠 Нет, я не волшебник, а всего лишь дизайнер. Никакой мистики. Всё реально! ☎ +7 916 490-9022
Оглавление

Разделы проекта.

ПЛАНИРОВКА

  • Обмер, Чертеж обмерного плана.
  • Планировочное решение с расстановкой мебели (3 варианта, с последующей проработкой выбранного).

ОТДЕЛКА

  • План строительных работ (возводимые перегородки, утепление, шумоизоляция).
  • Схемы расположения оборудование (сантехника, отопление, вентиляция, кондиционирование, теплые полы).
  • Схема отделки помещений. Подсчётом площади отделки.

ЭЛЕКТРИКА

  • Схема расположения светильников и выключателей.
  • Схема управления освещением.
  • Схема расположения розеток и электроприборов.

Обмер.

Планировка.

3 варианта планировки, с последующей проработкой выбранного заказчиком варианта.

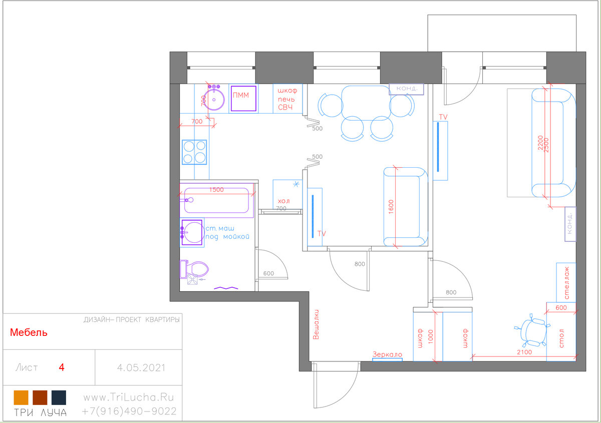
Расстановка мебели
Расстановка мебели

Ремонтные работы
(стены, сантехника, оборудование).

А также подсчёт площадей под отделку (для сметы).

Электрика
(свет, выключатели, розетки).

Это комплект чертежей, которые действительно нужны строителям для проведения евроремонта.

30 дней длится ремонт.

Обычно ремонт длится 30 дней ( 1 месяц ).
Подробности в статье: "
Капитальный ремонт квартиры за 1 месяц".

Канал: Будни Дизайнера Сайт: ТРИ ЛУЧА

🔶 Помогаю людям определиться с их желаниями.
🔷 Делаю чертежи для строителей, чтобы эти желания были исполнены.
💠 Нет, я не волшебник, а всего лишь дизайнер. Никакой мистики. Всё реально!
☎ +7 916 490-9022