Проект Z105 представляет собой комфортный функциональный дом с кабинетом на первом этаже. Изюминкой проекта являются угловые окна в дневной зоне. Преимущества проекта Z105: Понравился проект? Пишите комментарии. Посмотреть другие проекты вы можете на сайте.
Проект Z105 представляет собой комфортный функциональный дом с кабинетом на первом этаже. Изюминкой проекта являются угловые окна в дневной зоне. Преимущества проекта Z105: Понравился проект? Пишите комментарии. Посмотреть другие проекты вы можете на сайте.
...Читать далее
Проект Z105 представляет собой комфортный функциональный дом с кабинетом на первом этаже. Изюминкой проекта являются угловые окна в дневной зоне.
Преимущества проекта Z105:
- «С»-образная форма дневной зоны, образованная кладовой в центре, разделяет ее на отдельные подзоны, для более уютного обустройства гостиной столовой и кухни. Отказавшись от кладовой дневную зону можно сделать более открытой.
- Почти полностью открытая кухня, плавно переходящая в столовую, визуально увеличивает пространство дневной зоны.
- Частично крытая терраса позволяет удобно и комфортно организовать пространство вокруг дома.
- Угловые окна в дневной зоне обеспечивают хорошее естественное освещение на протяжении всего дня.
- Кладовая в центре дома обеспечивает быстрый доступ к хозяйственным принадлежностям.
- Кладовая расположенная рядом с кухней является неоценимым подспорьем для удобного ведения хозяйства.
- Прямой переход из гаража в дом поможет быстро перенести вещи из/в машину.
- Дополнительная комната на первом этаже сделает ежедневный быт более комфортным и функциональным.
- Расположение санузлов один над другим упрощают проведение водопроводной системы в доме.
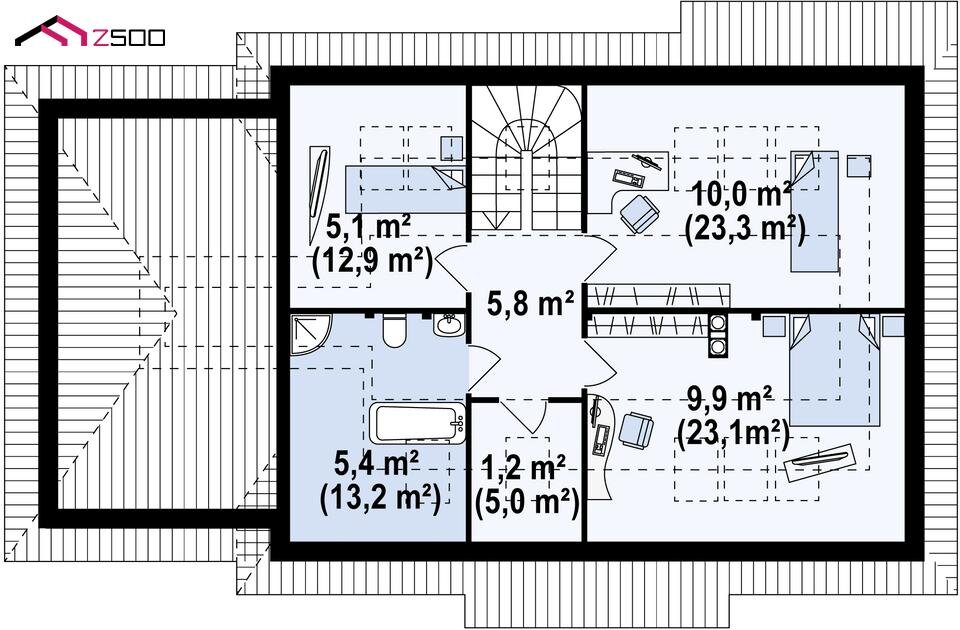
- Небольшое подсобное помещение на мансарде удобно для хранения различных хозяйственных принадлежностей.
- Классический стиль дома будет по достоинству оценен любителями традиционной архитектуры.
Понравился проект? Пишите комментарии.
Посмотреть другие проекты вы можете на сайте.