Добавить в корзинуПозвонить
Найти в Дзене
Никита

Планировка дома. Часть 2.

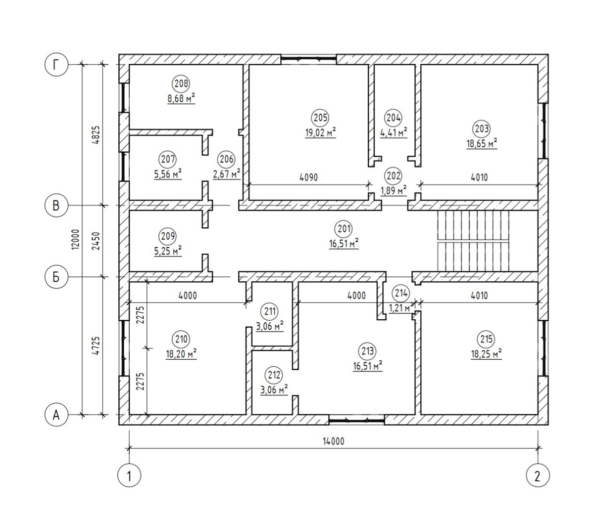
И в очередной раз получив переделанный план, мы воодушевились, ведь уже было довольно интересно Тут как вы видите наш дом уже подрос на пару метров. Мы решили отказаться пока от веранды (в моменте, но не в будущем) и увеличить дом. А получилось это так. Когда мы уже практически определились с планировкой будущего дома, я вынес её в натуру при помощи ниток. С учетом стен и перегородок. Мы получили возможность пройтись по комнатам, увидеть габариты дома. И всё бы хорошо, но вот жена стала возмущаться что кухня маленькая, а это порядка 30м2. Я ей пытался объяснить что мы стоим в поле, смотрим на нитки и поэтому визуально кухня очень маленькая кажется. Но она настаивала на своём... Пришлось уступить. И я ей конечно же в шутку, очень часто это припоминаю, мы смеёмся. На всё таки рады что бы увили дом. В итого он стал 12х15 по внутрянке. И наружные стены 12.8 на 15.8. Мы решили что комнаты (две, это наша будущая спальня, тогда мы так планировали. но пока в проекте не объединяли эти комнаты)

И в очередной раз получив переделанный план, мы воодушевились, ведь уже было довольно интересно

Тут как вы видите наш дом уже подрос на пару метров. Мы решили отказаться пока от веранды (в моменте, но не в будущем) и увеличить дом. А получилось это так. Когда мы уже практически определились с планировкой будущего дома, я вынес её в натуру при помощи ниток. С учетом стен и перегородок. Мы получили возможность пройтись по комнатам, увидеть габариты дома. И всё бы хорошо, но вот жена стала возмущаться что кухня маленькая, а это порядка 30м2. Я ей пытался объяснить что мы стоим в поле, смотрим на нитки и поэтому визуально кухня очень маленькая кажется. Но она настаивала на своём... Пришлось уступить. И я ей конечно же в шутку, очень часто это припоминаю, мы смеёмся. На всё таки рады что бы увили дом. В итого он стал 12х15 по внутрянке. И наружные стены 12.8 на 15.8.

Мы решили что комнаты (две, это наша будущая спальня, тогда мы так планировали. но пока в проекте не объединяли эти комнаты) и кухню надо поменять местами. Так получится что кухня на солнечной стороне с утра, а комнате в теньке.

Утром жена любит поваляться, а я почти сразу ухожу из комнаты. Завтракать в утренних лучах солнца, это очень классно. Да и в выходные хочется выспаться иногда и солнце тут немного не помощник. А если же захочется солнечного света, достаточно будет открыть шторки, благо мы на юге живём, и солнца, особенно летом у нас достаточно.

Всё хорошо, но походя к стройке, уже на этапе закладки первого ряда, мы что сделали? конечно же поменяли планировку еще раз :)]

-4

Вот так вот теперь выглядит наша планировка первого этажа. Практически утверждённая :) Утверждать что это финальная планировка я не стану, мало ли что. Проёмы конечно мы уже выставили, первый ряд выложен, но вдруг мы сместим перегородки)

И впереди еще будет второй этаж. Так что я думаю планировку мы еще не раз изменим)

А пока мы имеем то что есть) И это наша планировка, к который мы пришли через месяцы обдумываний, меняли её десятки раз, провели сотни разговоров, пообщались с десятками людей, и в итоге нам она нравится.

А что вы думаете по нашей планировке? Как бы вы сделали?

  • Подписывайся на канал, ставь палец вверх и следи за новыми публикациями.
  • Буду рад если тебе есть что добавить по статье, жду в комментариях.