Добавить в корзинуПозвонить
Найти в Дзене
Никита

Планировка дома. Часть 1.

Когда мы приступили к выбору участка, естественно мы стали мечтать о доме. Началась всё с планировки нашего будущего дома. Думаю каждый кто занялся стройкой своего дома проходил этот этап, не зависимо как он решил строить, самостоятельно или через подрядчика. Кучи изрисованных бумажек. Множество цифровых документов. Всё ради будущего комфорта. Приятная и трепетная процедура, однако отнимающая много сил и времени. Наш проект менялся пожалуй десятки раз, и несколько раз кардинально. Вот и мы с женой озадачились данным вопросом. Рисовали, согласовывали, переделывали. Иной раз я закрывался в кабинете, делал эскизы, скидывал на одобрение, переделывал. И так много много раз. Иногда это надоедало, приходилось откладывать этот процесс. Набраться новых идей, пообщаться с друзьями, услышать их мнение. Просмотреть очередной десяток проектов в интернете, и вернуться вновь к своему будущему дому =) Я сейчас попытался описать этот процесс, но не хватит у меня красноречия. Нужно самому пережить это,

Когда мы приступили к выбору участка, естественно мы стали мечтать о доме. Началась всё с планировки нашего будущего дома.

Думаю каждый кто занялся стройкой своего дома проходил этот этап, не зависимо как он решил строить, самостоятельно или через подрядчика.

Кучи изрисованных бумажек. Множество цифровых документов. Всё ради будущего комфорта. Приятная и трепетная процедура, однако отнимающая много сил и времени. Наш проект менялся пожалуй десятки раз, и несколько раз кардинально.

Вот и мы с женой озадачились данным вопросом. Рисовали, согласовывали, переделывали. Иной раз я закрывался в кабинете, делал эскизы, скидывал на одобрение, переделывал. И так много много раз. Иногда это надоедало, приходилось откладывать этот процесс. Набраться новых идей, пообщаться с друзьями, услышать их мнение. Просмотреть очередной десяток проектов в интернете, и вернуться вновь к своему будущему дому =)

Я сейчас попытался описать этот процесс, но не хватит у меня красноречия. Нужно самому пережить это, что бы понять через что мы прошли. Какие волнения мы прошли, какие эмоции пережили. Это было прекрасно) Но всё движется и рано или поздно подходит к завершению. Итак...

После долгих обсуждений, у нас появился первый вариант планировки:

Как вы тут видите, мы пришли к варианту дома 12х12, хотя изначально как я думаю многие, начинали с 10х10. Не нашёл я старых эскизов дома 10х10, но если попадётся, обязательно дополню. Решено было что дом 10х10 будет для нас довольно мал, хоть и на два этажа. Ведь семья у нас тогда уже была 5 человек, не считая моего отца, которого мы уже думали в будущем забрать к себе, и запланировали ему комнату. К тому же мы незадолго до покупки участка и выборе планировки узнали о будущем пополнении)

Решено было изначально что хоть и самострой, но по проекту. Никакого колхоза. Всё должно быть качественно и добротно. Поэтому мы обратились к специалистам. К слову не пожалели ни разу. В ходе обсуждения мы решили переделать планировку.

-3

Для начала увеличить площадь комнаты и кухни. Тут мы решили что сами будем жить на первом этаже а детей поселим на второй. (Изначально мы хотели остаться на втором этаже, т. к. привыкли живя в доме который снимали)

-4

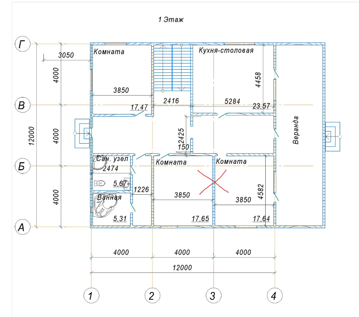
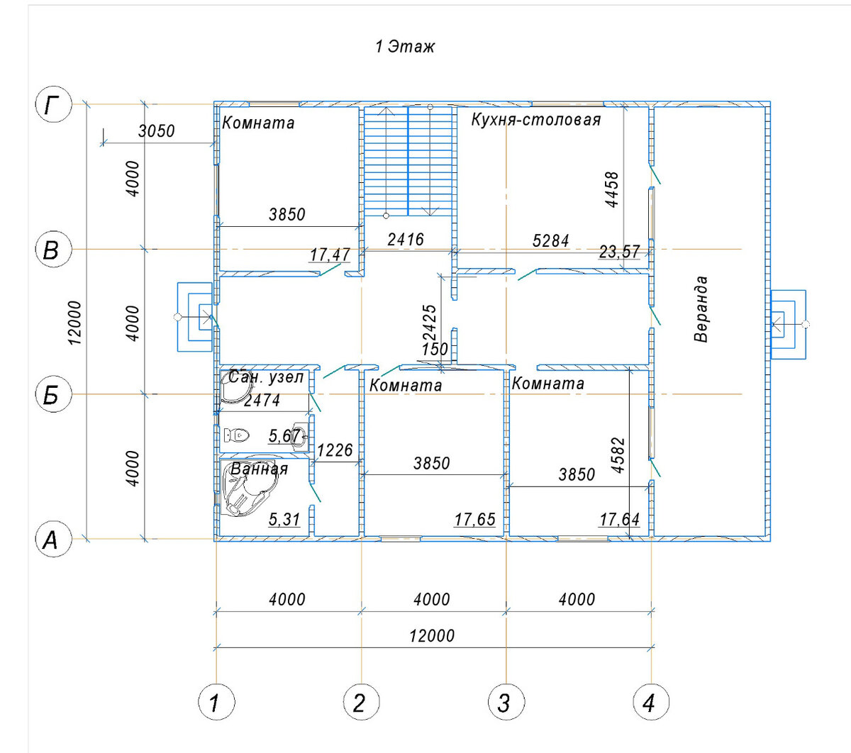
И вот что в итоге мы получили. Сначала планировка нас немного удивила, но посмотрел внимательней, концепция нам понравилась.

Но мы возвращались к строй планировке и пытались её как то исправить что бы прям влюбиться в неё.

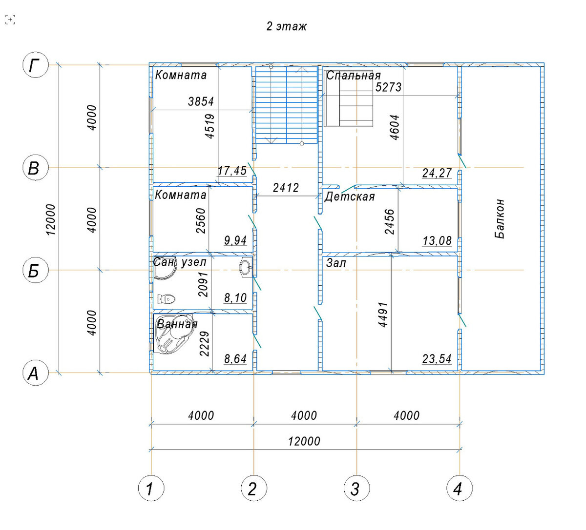
Продолжение во второй части =)

  • Подписывайся на канал, ставь палец вверх и следи за новыми публикациями.
  • Буду рад если тебе есть что добавить по статье, жду в комментариях.