Добавить в корзинуПозвонить
Найти в Дзене
SkladPotolkov ru

Дизайн Потолка 2021г.

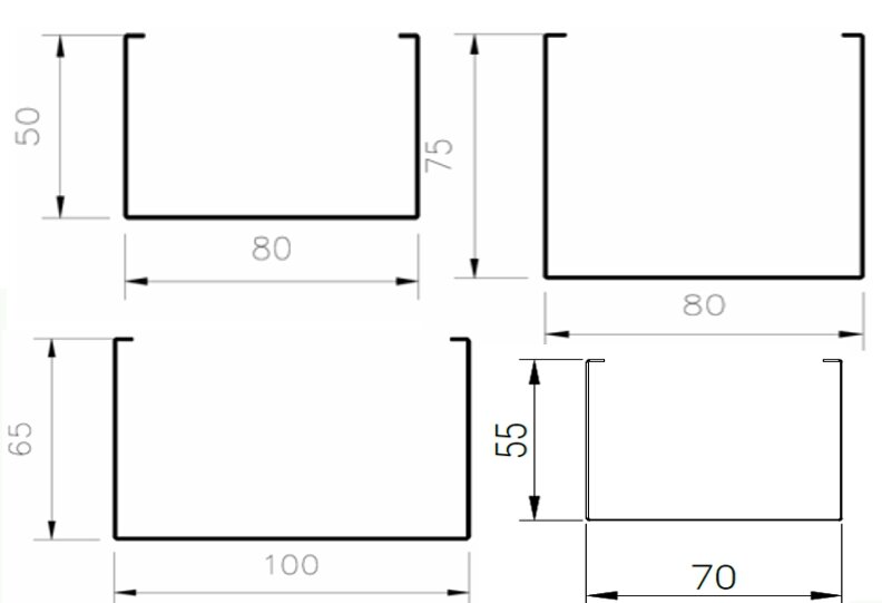
В последние несколько месяцев наметился новый тренд в кубообразных реечных потолках. Дизайнеры закладывают в проект рейку нестандартной ширины. Если традиционно рейка идет шириной 30мм или 40 мм с различными вариантами высот то рейка актуальная сейчас вся идет шириной 50, 60, 80 и даже 100. Обязательно при этом пропорционально закладывать высоту рейки не меньше двух третей ширины. Например если рейка шириной 80 мм, то высота должна быть не меньше 50 мм. Но при этом не больше ширины рейки. Расстояние между рейками не менее 50 мм Тек будет видна объемная структура рейки. Необходимо чтобы визуально четко была видна глубина рейки. Это необходимо чтобы четко провести грань между классическим реечным потолком плоского дизайна , использовавшихся с 90х годов и современными подвесными потолками Кубического дизайна. Дизайн плоской рейки в прошлом , А вот широкая кубическая рейка сейчас находится на подъеме. Пока преобладают светлые цвета: белый , бежевый , кремово- белый , сигнальный белый бежев
Рейки 50х80х50мм в комбинации с рейками 50х230х50
Рейки 50х80х50мм в комбинации с рейками 50х230х50

В последние несколько месяцев наметился новый тренд в кубообразных реечных потолках. Дизайнеры закладывают в проект рейку нестандартной ширины. Если традиционно рейка идет шириной 30мм или 40 мм с различными вариантами высот то рейка актуальная сейчас вся идет шириной 50, 60, 80 и даже 100. Обязательно при этом пропорционально закладывать высоту рейки не меньше двух третей ширины. Например если рейка шириной 80 мм, то высота должна быть не меньше 50 мм. Но при этом не больше ширины рейки.

-2

Расстояние между рейками не менее 50 мм Тек будет видна объемная структура рейки. Необходимо чтобы визуально четко была видна глубина рейки.

-3

Это необходимо чтобы четко провести грань между классическим реечным потолком плоского дизайна , использовавшихся с 90х годов

Реечные потолки 90х  - плоская рейка шириной 100-150 мм.
Реечные потолки 90х - плоская рейка шириной 100-150 мм.

и современными подвесными потолками Кубического дизайна. Дизайн плоской рейки в прошлом , А вот широкая кубическая рейка сейчас находится на подъеме. Пока преобладают светлые цвета: белый , бежевый , кремово- белый , сигнальный белый бежевый, светло-серый.

-5

Хотя уже на ряде объектов 2020- 2023 годов сдачи проектируется потолок с применением крупной рейки цвета светлого дерева.

-6
-7

Так же в ближайшие годы будут актуальны сочетания разных размеров рейки на одной гребенке. Широкие и узкие полосы в одной высоте рейки.

-8