Найти в Дзене

🌄 Необычный светлый дом с мансардой всего за 2 млн

👨‍👩‍👧 Хотите, чтобы ваша семья жила в уютном светлом доме?
Обратите внимание на наш проект «Снегирь». Благодаря второму свету и панорамным окнам здесь всегда очень светло!
А ещё этот дом очень красивый! Только посмотрите на эту уютную террасу и мансарду. И всё это может обойтись вам всего в 2 070 000 рублей.
📈 Какие же у дома характеристики?
Оглавление

👨‍👩‍👧 Хотите, чтобы ваша семья жила в уютном светлом доме?

Обратите внимание на наш проект «Снегирь». Благодаря второму свету и панорамным окнам здесь всегда очень светло!

А ещё этот дом очень красивый! Только посмотрите на эту уютную террасу и мансарду. И всё это может обойтись вам всего в 2 070 000 рублей.

📈 Какие же у дома характеристики?

  • Площадь: 115 м²
  • Габариты: 15х7 м
  • Количество комнат: 5
  • Этажность: 1 (но есть мансарда)
  • Особенности: терраса, второй свет, панорамные окна
  • Возможные материалы несущих стен: каркас, SIP-панели, клееный или профилированный брус.
  • Варианты фундамента: монолитная, сильноармированная или утеплённая шведская плита, сваи (винтовые, железобетонные либо ростверк), ленточный фундамент либо гидростеклоизол.
  • Материал кровли: металлочерепица или профнастил.
  • Цена: от 2 070 000 руб.

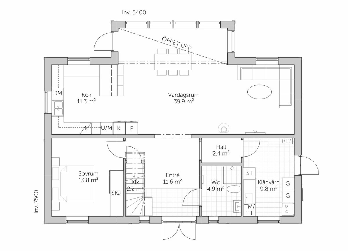
👀 Прогуляемся по дому и ознакомимся с планировкой?

Немного отдохнув на террасе, заходим в дом через главный вход.

1️⃣ Первый этаж

Мы попадаем в очень просторную прихожую.

-2

➡Справа от входа — лестница на второй этаж и спальня.

Спальня идеально подойдёт тем, кому неудобно подниматься на мансарду из-за ограниченных возможностей здоровья.

⬅Слева мы видим туалет, кладовую и небольшое подсобное помещение. Удобно, что из кладовой есть выход на улицу.

Но вернёмся в холл. Мы видим здесь ещё одну дверь.

И она ведёт в самую просторную комнату дома — в гостиную. Её площадь — почти 40 квадратных метров!

Слева от гостиной — небольшая, но очень уютная кухня.

Ещё из гостиной можно выйти на улицу, но мы вернёмся к лестнице и поднимемся в мансарду.

2️⃣ Мансарда

Мы поднимаемся в уютный и просторный зал.

-3

Давайте полюбуемся видом из красивых панорамных окон и пойдём смотреть на другие комнаты.

На этаже есть целых три спальни, причём в одной из них — целых две гардеробные!

Также в мансарде есть просторная ванная комната.

-4

Расскажите, понравился ли вам проект?

Кстати, на этапе проектирования мы можем помочь вам изменить планировку при необходимости!

Хотите посмотреть на другие проекты? Делимся ими с вами:

Не забывайте следить за нашими новостями! Подписывайтесь на канал, заглядывайте на сайт и в группу ВКонтакте.