Добавить в корзинуПозвонить
Найти в Дзене

РЕКОНСТРУКЦИЯ КОТЕЛЬНОЙ ДЛЯ ОБЕСПЕЧЕНИЯ ТЕПЛОВОЙ МОЩНОСТИ ПРОИЗВОДСТВЕННОГО ПРЕДПРИЯТИЯ

В компании «Русский Дом» вы можете заказать реконструкцию котельной производственного предприятия.
Реконструкция котельной установленной тепловой мощности 24 МВт. Проектные решения.
Техническое перевооружение котельной, расположенной в существующем здании котельной на территории предприятия - реконструируемая котельная предназначена для обеспечения тепловой мощностью систем отопления, горячего
Оглавление

В компании «Русский Дом» вы можете заказать реконструкцию котельной производственного предприятия.

Техническое перевооружение котельной, расположенной в существующем здании котельной на территории предприятия - реконструируемая котельная предназначена для обеспечения тепловой мощностью систем отопления, горячего водоснабжения, технологических нужд потребителей производственного предприятия.

Котельная полностью в автоматическом режиме, без постоянного присутствия обслуживающего персонала. Режим эксплуатации – круглогодичный, 24 часа в сутки.

Основной вид топлива – природный газ по ГОСТ 5542-2014 с теплотворной способностью 8000 ккал/м3.

Аварийный вид топлива – дизельное.

Объект: Комплекс изыскательских работ и разработку документации технического перевооружения по объекту котельная.
Состав работ: Проектирование.
Вид строительства – реконструкция (техническое перевооружение).

В здании существующей котельной установлено и подлежит демонтажу оборудование, которое выведено из эксплуатации, как морально устаревшее.

Технические характеристики объекта

Проектируемый объект относятся к категории опасных производственных объектов на котором используется, обращается природный газ (вид опасных веществ -воспламеняющиеся газы).

В зависимости от уровня потенциальной опасности аварий на опасных производственных объектов для жизненно важных интересов личности и общества, проектируемый объект, относятся к III классу опасности (опасные производственные объекты средней опасности).

В настоящее время в здании котельной установлено и подлежит демонтажу оборудование, которое выведено из эксплуатации, как морально устаревшее.

Техническое перевооружение означает замену устаревшего, экономически необоснованного оборудования на современное энергоэффективное.

Технологические решения

Подбор основного оборудования по их теплопроизводительности выполнен путем расчета суммарной тепловой нагрузки системы, которая складывается из нагрузки на отопление, ГВС и собственные нужды. Расчетная производительность котельной с учетом собственных нужд и потерь теплоты в сетях составляет 17,44 МВт, требуемая дополнительная мощность – 20 Гкал/час (23,26 МВт). Установленная мощность котельной – 24 МВт.

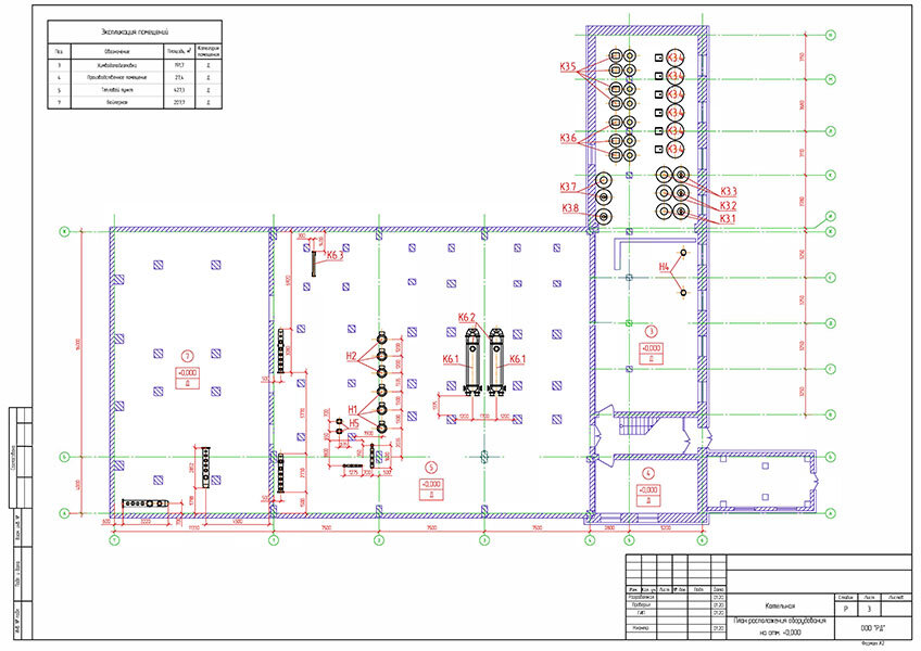
Основное оборудование

Водогрейный котел высокого давления BISAN 12 000 кВт – 2 шт.
Комбинированная горелка (газ/диз.топливо), мощностью 1977/4186-15116 кВт – 1 шт.
Газовая горелка, мощностью 1977/4186 -15116 кВт – 1 шт.

В соответствии с заданием на проектирование котельная обеспечивает следующие параметры тепловой энергии, отпускаемой потребителям:

  • Сетевая вода контура отопления №1 подающего трубопровода, Т=1300 С, Р=8 бар;
  • Сетевая вода контура отопления №1 обратного трубопровода, Т=700 С, Р=6 бар;
  • Сетевая вода контура отопления №2 подающего трубопровода, Т=950 С, Р=8 бар.
  • Сетевая вода контура отопления №2 обратного трубопровода, Т=700 С, Р=6 бар;
  • Контур ГВС подающего трубопровода, Т=600 С, Р=6 бар;
  • Контур ГВС обратного трубопровода, Т=50 С, Р=4 бар;

Из котла подогретая вода через подающий трубопровод Т1 DN300 поступает на 1-й этаж в коллектора бойлерной, обратная вода от потребителей поступает в котлы по трубопроводу Т2 DN300.

Распределение тепловой энергии выполняется в помещении бойлерной и теплового пункта, где устанавливается основное оборудование: подогреватели, коллектора различных контуров и насосное оборудование.

Основной принцип работы бойлерной предусматривает в различных режимах:

  1. Основной – подача теплоносителя от водогрейной котельной;
  2. Резервный – пароводяной, основной греющий теплоноситель пар, поступающий от паровой котельной.

В помещении теплового пункта дополнительно предусматривается установка оборудования для нагрева воды на нужды ГВС, в случае выхода из строя существующего оборудования подачи воды на нужды ГВС.

Водоподготовка

Учитывая требования, предъявляемые к качеству подпиточной/питательной воды заводом-производителем котлов, целесообразно использование общей системы ХВП для водогрейной и паровой котельной, согласно требованиям заказчика.

Суммарная подача воды на котельную (паровая и водогрейная части) составляет

50,28м3/час. Источником водоснабжения является река Нева.

Дымоудаление

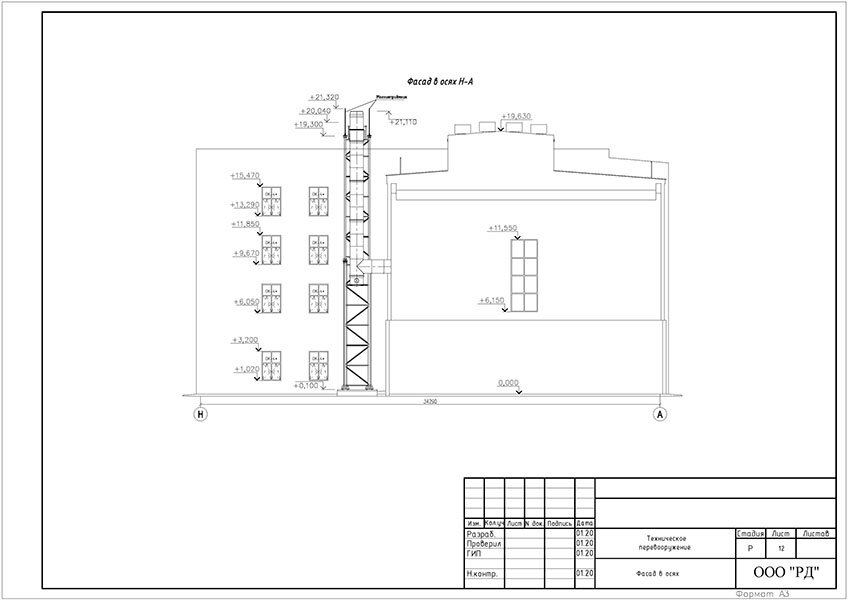
Отвод дымовых газов от котлов осуществляется по двум индивидуальным дымовым трубам, каждая диаметром 1000 мм, отметка верха трубы — + 21.110.

Дымовые трубы устанавливаются на общей металлической конструкции. Вертикальные части газоходов крепятся к несущей башне хомутами через переходные опоры с консолями.

Аварийное топливоснабжение

В здании котельной предусмотрен ввод топливопровода DN50, топливо подается в бак дизельного топлива. Предусматривается установка расходного, пластикового, вертикального бака дизельного топлива объемом 1 м3, расположенного в помещении котельного зала.

Источник: https://www.prdx.ru/rekonstrukciya-kotelnoj-24-mvt-dlya-obespecheniya-teplovoj-moshhnosti-proizvodstvennogo-predpriyatiya/