Добавить в корзинуПозвонить
Найти в Дзене
Алма | Рубленые дома

Проект дома с высокими окнами - 310 м² (5 спален)

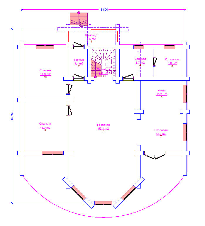
Площадь: 310 м² Объем: 180 м³ Этажность: 2 этажа Диаметр бревна: 28 см Материал: Сосна Вид рубки: Русская рубка Двухэтажный, вместительный, удобный и очень комфортабельный дом, общие габариты которого: 13,8*14,75 м. Данный дом выполнен из натурального дерева — массив сосны, эта максимально качественный и надежный материал, так что можно быть уверенным в большом сроке службы. На первом этаже расположены крыльцо, две спальни, тамбур, санузел, гостиная, столовая, кухня, а также санузел и котельная. На втором этаже: три спальни, холл, гардероб, санузел, два балкона и второй свет. Общая площадь дома составляет 310 кв. м. Итак, данный проект великолепно подходит для постоянного проживания, оборудовав котельную можно спокойно жить в зимнее время года. За счет большой площади можно легко расположить компанию друзей или близких родственников. Пять спален, расположенных на первом и втором этаже располагает к большой компании. Ссылка на проект Дома №25 Проект можно адаптиро
Двухэтажный, вместительный, удобный и очень комфортабельный дом, общие габариты которого: 13,8*14,75 м.
Двухэтажный, вместительный, удобный и очень комфортабельный дом, общие габариты которого: 13,8*14,75 м.

Площадь: 310 м²

Объем: 180 м³

Этажность: 2 этажа

Диаметр бревна: 28 см

Материал: Сосна

Вид рубки: Русская рубка

Двухэтажный, вместительный, удобный и очень комфортабельный дом, общие габариты которого: 13,8*14,75 м. Данный дом выполнен из натурального дерева — массив сосны, эта максимально качественный и надежный материал, так что можно быть уверенным в большом сроке службы. На первом этаже расположены крыльцо, две спальни, тамбур, санузел, гостиная, столовая, кухня, а также санузел и котельная. На втором этаже: три спальни, холл, гардероб, санузел, два балкона и второй свет. Общая площадь дома составляет 310 кв. м.

Итак, данный проект великолепно подходит для постоянного проживания, оборудовав котельную можно спокойно жить в зимнее время года. За счет большой площади можно легко расположить компанию друзей или близких родственников. Пять спален, расположенных на первом и втором этаже располагает к большой компании.

Ссылка на проект Дома №25

Проект можно адаптировать под любую породу дерева и вид рубки.

План Дома № 25

Если у Вас есть какие-то пожелания или свои решения по данному проекту, то мы готовы рассмотреть любые Ваши идеи и воплотить их в жизнь.

_____

Смотрите другие проекты домов на нашем сайте alma43.com .

Или подписывайтесь на наш канал! Будем радовать Вас новыми интересными проектами.

_____

По вопросам приобретения проекта дома и его доработок под потребности Заказчика обращайтесь: