Найти в Дзене

БРИЗ 92 м2 - проект одноэтажного дома 9х14 с двумя спальнями

БРИЗ - проект небольшого дома для семейной пары. Дом идеально удобен для комфорта двоих людей - в нём есть большая спальня, гостиная-лофт, кабинет и большая ванная комната. Отсутствие несущих стен внутри позволит Вам максимально приспособить планировочное решение к своим потребностям. Ещё один симпатичный двухкомнатный одноэтажник со СПА-зоной МАРЦИО Дом удлиненный в плане, размером 9х14 метров, со входом с торца, подходит для узких длинных участков. План разделен на жилую группу помещений с одной стороны и спальные комнаты - с другой. Переднюю часть дома занимает топочная или кладовая (в зависимости от Ваших потребностей), отделяющая жилую зону от внешнего шума с улицы. Параметры топочной (площадь, кубатура, наличие окна) позволяют использовать для отопления магистральный газ. Внутри дома нет несущих стен, и можно варьировать планировку. Вот три варианта (правда, для №2 и №3 нужно окна немного подвинуть) Больше одноэтажных домов с 2 спальнями можно увидеть в этой подборке 👇 Общие зо
Оглавление

БРИЗ - проект небольшого дома для семейной пары.

Дом идеально удобен для комфорта двоих людей - в нём есть большая спальня, гостиная-лофт, кабинет и большая ванная комната. Отсутствие несущих стен внутри позволит Вам максимально приспособить планировочное решение к своим потребностям.

Ещё один симпатичный двухкомнатный одноэтажник со СПА-зоной МАРЦИО

МАРЦИО 104 м2 - проект одноэтажного дома с 2 спальнями, террасой и сауной
Инваполис - проекты рациональных домов 10 марта 2022

ПЛАНИРОВКА

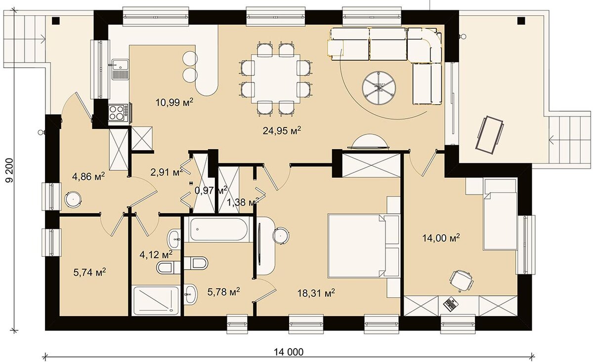
Дом удлиненный в плане, размером 9х14 метров, со входом с торца, подходит для узких длинных участков. План разделен на жилую группу помещений с одной стороны и спальные комнаты - с другой. Переднюю часть дома занимает топочная или кладовая (в зависимости от Ваших потребностей), отделяющая жилую зону от внешнего шума с улицы.

-2

Параметры топочной (площадь, кубатура, наличие окна) позволяют использовать для отопления магистральный газ.

Внутри дома нет несущих стен, и можно варьировать планировку. Вот три варианта (правда, для №2 и №3 нужно окна немного подвинуть)

Больше одноэтажных домов с 2 спальнями можно увидеть в этой подборке 👇

ВНУТРЕННЕЕ ПРОСТРАНСТВО

Общие зоны собраны в единое лофт-пространство, за счет чего дом смотрится очень светлым и просторным внутри. Из гостиной можно выйти на террасу. Окна в зоне гостиной - панорамные.

-4

Кухня удобная, с окнами - чтобы хозяйка не грустила, и не упустила красоту окружающего мира за домашними делами.

-5
  • Информацию для заказа чертежей Вы можете найти на странице дома на нашем основном сайте.
  • Другие проекты домов ИНВАПОЛИС с 1-2 спальнями здесь...
  • Если Вам интересны наши проекты, подписывайтесь на канал ИНВАПОЛИС-ДЗЕН, смотрите обзоры и подборки домов, задавайте вопросы авторам в комментариях.
  • Смотреть обзоры проектов и читать нас можно также в ТЕЛЕГРАММ-КАНАЛЕ ИНВАПОЛИС – подписывайтесь, контент немного отличается 😊