Найти в Дзене

САРДИНИЯ 132 м2 - проект современного одноэтажного дома 11х17 для длинного участка

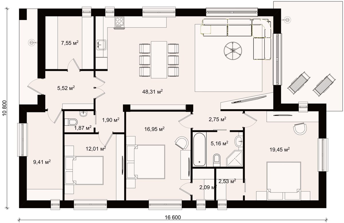
Дом можно построить на участке удлиненной формы шириной от 17 метров. 👇 Ещё несколько длинных домов в подборке Внешность дома современная, лаконичная, без изысков. Дом аккуратный и уютный. Дом подойдёт для постоянного проживания семьи из 3-6 человек. Специфика проекта в расположении всех личных комнат по одной стороне. Особенность плана - деление на две части - левую, общую, и правую - жилую. При этом интерьер - современный лофт, где всё открыто, но благодаря грамотному зонированию и необычной планировочной схеме сохранена приватность там, где это необходимо. Переднюю часть дома занимают хозяйственные помещения - котельная и большая гардеробная. Такое расположение позволяет создать буферную зону между шумной улицей и жилыми помещениями, и удобно для подключения коттеджа к инженерным сетям. Также впереди находится одна жилая комната - гостевая или кабинет. Хозяйские спальни, - их в проекте две, - выделены в отдельный блок с санузлом, со входом из гостиной. Комнаты дополнены небольшими
Оглавление

Дом можно построить на участке удлиненной формы шириной от 17 метров.

👇 Ещё несколько длинных домов в подборке

Одноэтажные дома для длинного участка - 6 вариантов
Инваполис - проекты рациональных домов 13 ноября 2022

Внешность дома современная, лаконичная, без изысков. Дом аккуратный и уютный.

Дом подойдёт для постоянного проживания семьи из 3-6 человек. Специфика проекта в расположении всех личных комнат по одной стороне.

Особенность плана - деление на две части - левую, общую, и правую - жилую. При этом интерьер - современный лофт, где всё открыто, но благодаря грамотному зонированию и необычной планировочной схеме сохранена приватность там, где это необходимо.

-2

Переднюю часть дома занимают хозяйственные помещения - котельная и большая гардеробная. Такое расположение позволяет создать буферную зону между шумной улицей и жилыми помещениями, и удобно для подключения коттеджа к инженерным сетям. Также впереди находится одна жилая комната - гостевая или кабинет. Хозяйские спальни, - их в проекте две, - выделены в отдельный блок с санузлом, со входом из гостиной. Комнаты дополнены небольшими гардеробными или кладовыми.

Дневная зона выполнена в стиле лофт, зонирована на диванную и столовую с кухней. Из диванной зоны можно выйти на участок. В зависимости от формы участка выход можно устроить в одну из двух сторон - в торце помещения или вбок.

Террасы у дома нет, предполагается просто открытое пространство у выхода - помост или лужайка.

👇 Есть вариант этого дома с террасой под крышей

КОРСИКА 133 м2 - проект одноэтажного узкого дома с нестандартной планировкой
Инваполис - проекты рациональных домов 12 декабря 2020

Дневная зона - гостиная и столовая эффектные, со специально оборудованным местом для большого телевизора. Или камина.

-3

Входы в спальни припрятаны за стенкой, но полностью не изолированы от общей зоны.

-4

Панорамные окна гостиной открывают обзор участка.

-5

Планировка дома позволяет вместо гостевой спальни устроить мини-офис с отдельным входом из прихожей. Это может понадобиться, если в вашей семье есть репетитор, юрист, парикмахер, массажист, или ещё кто-то, ведущий приём посетителей. Такое планировочное решение позволит принимать людей минуя жилые помещения.

-6

СОСТАВ ГОТОВОГО ПРОЕКТА ДОМА

Рабочая документация в типовом составе - паспорт для согласования в органах контроля за строительством, и строительно – конструктивный раздел (рабочая документация) для строительства «коробки» из пеноблока или газобетона.

КОНСТРУКТИВНЫЕ РЕШЕНИЯ

Фундамент - монолитная лента до глубины промерзания
Стены – 400 мм пеноблок, газобетон, или керамический блок 380 мм
Перекрытие - пол по грунту
Кровля – чердачная четырёхскатная шатровая «конвертом»

О типовых конструкциях бренда ИНВАПОЛИС©, читайте на странице ПРОЕКТЫ ИЗ ПЕНОБЛОКОВ

  • Информация для приобретения проекта - на странице дома на основном сайте ИНВАПОЛИС
  • Другие проекты одноэтажных домов от архитекторов ИНВАПОЛИС можно посмотреть в каталоге .

► Чтобы не пропускать наши публикации, реагируйте лайком 👍, подписывайтесь на канал, пишите комментарии, тогда нейросети будут показывать нас вам чаще :)

► Получать обзоры наших проектов и следить за новостями и можно также в ТЕЛЕГРАММ-КАНАЛЕ ИНВАПОЛИС – подписывайтесь, контент немного отличается 😊