Добавить в корзинуПозвонить
Найти в Дзене
Идеи для ремонта

Острый угол в спальне

Очередная головоломка от пользователей «Идей для ремонта» на тему того, как исправить неудобную планировку.
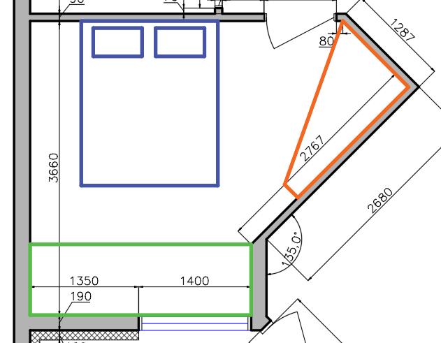
В данном случае речь о спальне с острым углом в еще строящейся однушке.
Застройщик предлагает поставить в этом месте шкаф, однако такое использование пространства неэффективно.
Еще одна вещь, необходимая, по мнению владельца квартиры, - это рабочий стол у окна. На перепланировку хозяин

Очередная головоломка от пользователей «Идей для ремонта» на тему того, как исправить неудобную планировку.

В данном случае речь о спальне с острым углом в еще строящейся однушке.

Застройщик предлагает поставить в этом месте шкаф, однако такое использование пространства неэффективно.

-2

Еще одна вещь, необходимая, по мнению владельца квартиры, - это рабочий стол у окна. На перепланировку хозяин согласен.

Предложения были разные, например, спрямить стену за счет треугольной гардеробной.

-3

Кроме того, поскольку квартира еще строится, знатоки посоветовали связаться с застройщиком и узнать, а можно ли иначе расположить стены.

Вот несколько вариантов перепланировки, которые нам понравились.

-4
-5

На самом деле их больше, и посмотреть все вы можете в обсуждении на сайте>>.

Ну и, конечно, у вас всегда есть возможность предложить свои решения или, наоборот, задать вопрос😊