Найти в Дзене

Дизайн-проект своими руками: пошаговая инструкция для дилетанта

Допустим, вы по каким-то причинам не горите желанием поручить создание дизайн-проекта профильному специалисту. Или просто хотите попробовать свои силы в создании такого проекта. Насколько это реалистично?
Фото из открытых источников.
Хватит парочки базовых навыков: способности читать/ чертить чертежи и умения действовать последовательно.
Об этой последовательности наши дизайнеры интерьеров вам
Оглавление

Допустим, вы по каким-то причинам не горите желанием поручить создание дизайн-проекта профильному специалисту. Или просто хотите попробовать свои силы в создании такого проекта. Насколько это реалистично?

Фото из открытых источников.
Фото из открытых источников.
Хватит парочки базовых навыков: способности читать/ чертить чертежи и умения действовать последовательно.

Об этой последовательности наши дизайнеры интерьеров вам сейчас и расскажут. Обратите внимание, что первые два шага – решающие, ошибка на этих этапах может дорого стоить.

№1. Делаем замер

Ваш интерьер мечты, который вы представляете в голове, может попросту не вписаться в жилище по размерам. Именно поэтому точный и корректный замер – это основа и фундамент любого ремонта.

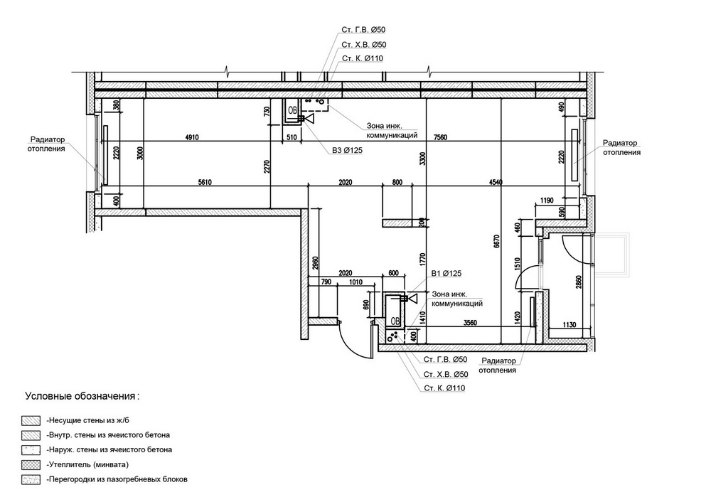
Набросайте от руки или распечатайте планировку своей квартиры. Отметьте все фактические габариты комнат и проемов. Не забудьте указать на плане коммуникации.

Пример такого плана. Фото из открытых источников.
Пример такого плана. Фото из открытых источников.

№2. Масштабирование

Следующий шаг – чертим планировку квартиры в удобном масштабе, как самый распространенный вариант – 1:50. Кроме линейки и карандаша вам ничего не потребуется.

Но можно пойти еще более легким путем и начертить масштабированный план в одной из многочисленных программ для PC или Мака. Для бытовых нужд хватит бесплатной версии почти любого из таких бесплатных приложений.

Черчение в программе. Фото из открытых источников.
Черчение в программе. Фото из открытых источников.

№3. Техзадание

В техническом задании отображаются детальные соображения по поводу стиля будущего интерьера и наполнению комнат – все, что поможет выстроить строителям в голове картинку желаемого результата.

Для этого важно кроме логичного текста предоставить референсы – фотографии аналогичных по духу и стилю интерьеров.

Вдохновляющие картинки – из интернета или профильных журналов. Фото из открытых источников.
Вдохновляющие картинки – из интернета или профильных журналов. Фото из открытых источников.

№4. Переносим пожелания из техзадания на план

Обозначаем на масштабированном плане все элементы интерьера, мебель и функциональные зоны.

Детализированный план. Фото из открытых источников.
Детализированный план. Фото из открытых источников.

№5. 3 D моделирование

Название этого пункта, вероятно, звучит грозно, но на практике ничего сложного в переводе плоской модели плана в объем нет. Для этого существуют простые доступные неспециалистам программы вроде SketchUp .

Почему это важно?

«Плоские» решения могут совершенно иначе выглядеть в 3 D – ближе к реальному положению вещей. Так вы сможете с новой перспективы оценить то, насколько ваши задумки будут удобны/уместны. Плюс вам будет заметно проще подобрать на такую модель материалы для финишной отделки.
Пример моделирования. Фото из открытых источников.
Пример моделирования. Фото из открытых источников.

№6. Непосредственно дизайн

Теперь, когда вы составили весьма основательное представление о будущем интерьере своей квартиры, время переходить к сути дизайна. Перечитываем техзадание, еще раз просматриваем картинки-референсы и принимаем стилистические решения.

Выбирая стройматериалы для финишной отделки, мебель, осветительные приборы и декор, помните о реальных возможностях и габаритах вашего жилища. Такие моменты, как недостаточная высота потолка и нехватка естественного освещения может свести на нет ваши задумки.

Тоже 3 D . Фото из открытых источников.
Тоже 3 D . Фото из открытых источников.

Больше интересных и полезных заметок о ремонте и недвижимости:

Как устранить течь на стыке пластиковых труб своими руками?

Самостоятельный дизайн квартиры: пошаговая инструкция

Сколько стоит ремонт квартиры 40 кв.м. под ключ с материалами?