Найти в Дзене

Дачный дом 7х9 с террасой. Показываем фото

Ещё один домик мечты в сельской местности готов принять счастливых дачников этим летом. Знакомьтесь, дом по проекту:
САДОВОД 7Х9
Площадь: 63 м2
Отделка фасада - сайдинг
Оглавление

Ещё один домик мечты в сельской местности готов принять счастливых дачников этим летом. Знакомьтесь, дом по проекту:

САДОВОД 7Х9

Площадь: 63 м2

Отделка фасада - сайдинг
Отделка фасада - сайдинг

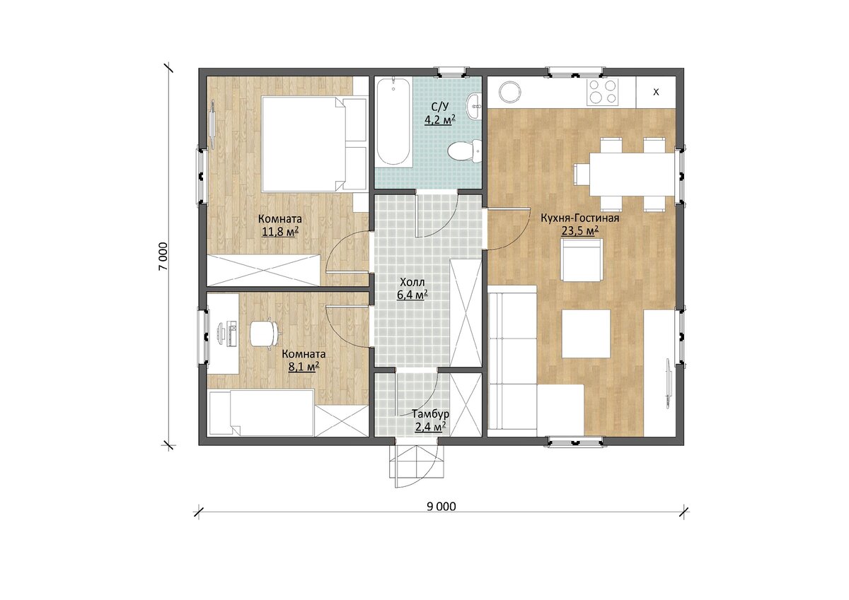
В проекте представлен одноэтажный садовый дом с просторной общей дневной зоной и двумя обособленными спальнями. Вход в здание расположен почти по центру фасадной стены. За дверью тамбур 2,4 м2 и отделенный от него дверью холл-коридор 6,4 м2 – в обоих помещениях можно установить шкафы для одежды и обуви. В самой глубине оборудована совмещенная ванная комната 4,2 м2 .

План
План
Пристройка террасы - как дополнительная услуга. В некоторых проектах она заложена. Смотрите на нашем сайте
Пристройка террасы - как дополнительная услуга. В некоторых проектах она заложена. Смотрите на нашем сайте

Правую часть садового дома занимает кухня-гостиная площадью 23,5 м2 – это вместительное помещение, где можно организовать уютную дневную зону. Слева от холла находятся две спальни: 8,1 м2 и 11,8 м2 . Одну из них можно сделать кабинетом, детской или гостевой комнатой.

-4

Такая планировка подходит для летнего отдыха или круглогодичного проживания.

Отделка вагонкой - как дополнительная услуга
Отделка вагонкой - как дополнительная услуга

Строительство занимает от 3 суток в случае каркасно-щитового строительства. В данном доме применялась каркасная технология, утепление - строили 3 недели.

Панорамное окно
Панорамное окно

Вместе с возведением садового дома можно заказать монтаж свайно-винтового фундамента, прокладку коммуникаций и финишную внешнюю отделку.

Утепление
Утепление

Стоимость

Лето (Каркасно-щитовой) 599 000 р.

Осень (Каркасно-щитовой) 688 000 р.

Зима (Каркасный) 902 000 р.

Подробнее о ценах и комплектациях по ссылке:

https://sk-aprel.ru/sadovod/sadovod-7x9?utm_source=yandex.zen

  • Что ещё важно. В любой проект можно внести изменения . Доработать под себя.
  • Строим без предоплаты, в кредит и за мат.капитал
  • Бесплатная доставка до 100 км от Бронниц (Московская область).
  • Монтаж БЕСПЛАТНО
  • Цены действительны на момент публикации.
Если Вам понравилась статья, оставляйте комментарии, ставьте лайки, подписывайтесь на канал. Будет интересно!