Найти в Дзене

Коттедж для городской и дачной застройки

4М637 Фото 1
Количество этажей:1
Общая площадь:143.78 м2
Жилая площадь:67.54 м2
4М637 Фото 1
4М637 Фото 1

Количество этажей:1

Общая площадь:143.78 м2

Жилая площадь:67.54 м2

Высота дома:6.97 м

Высота потолка:2.80 м

Угол наклона кровли:33 °

Площадь крыши:297.50 м2

Количество спален:3

Количество санузлов:2

Гараж:Гараж на одно авто

Минимальный размер участка(длина):24.00 м

Минимальный размер участка(ширина):19.00 м

Площадь застройки:209.5 м2

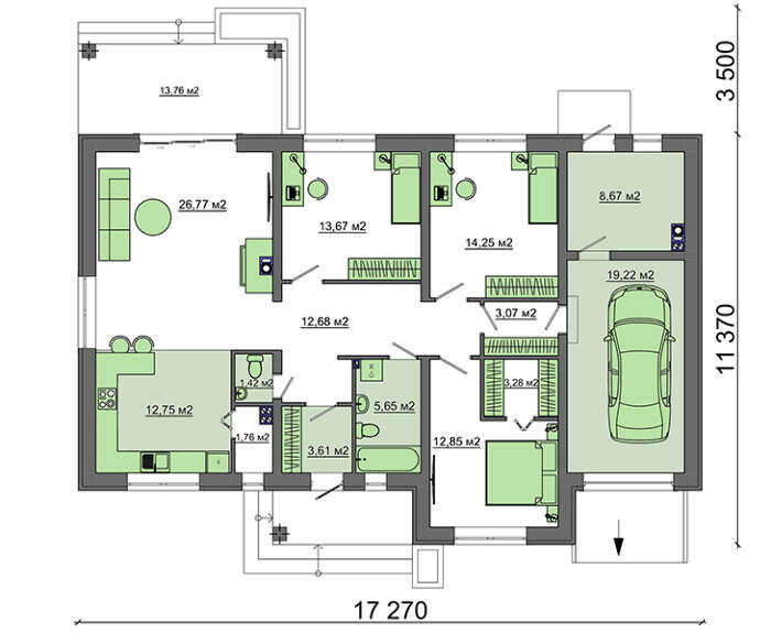
4М637 Планировка
4М637 Планировка
4М637 Расположение на участке
4М637 Расположение на участке
4М637 Фото 2
4М637 Фото 2