Найти в Дзене

Большие желания - большие сомнения

Продолжим тему возведения дома.
Фото автора
Фото автора

Здравствуйте товарищи. Продолжим тему возведения дома.

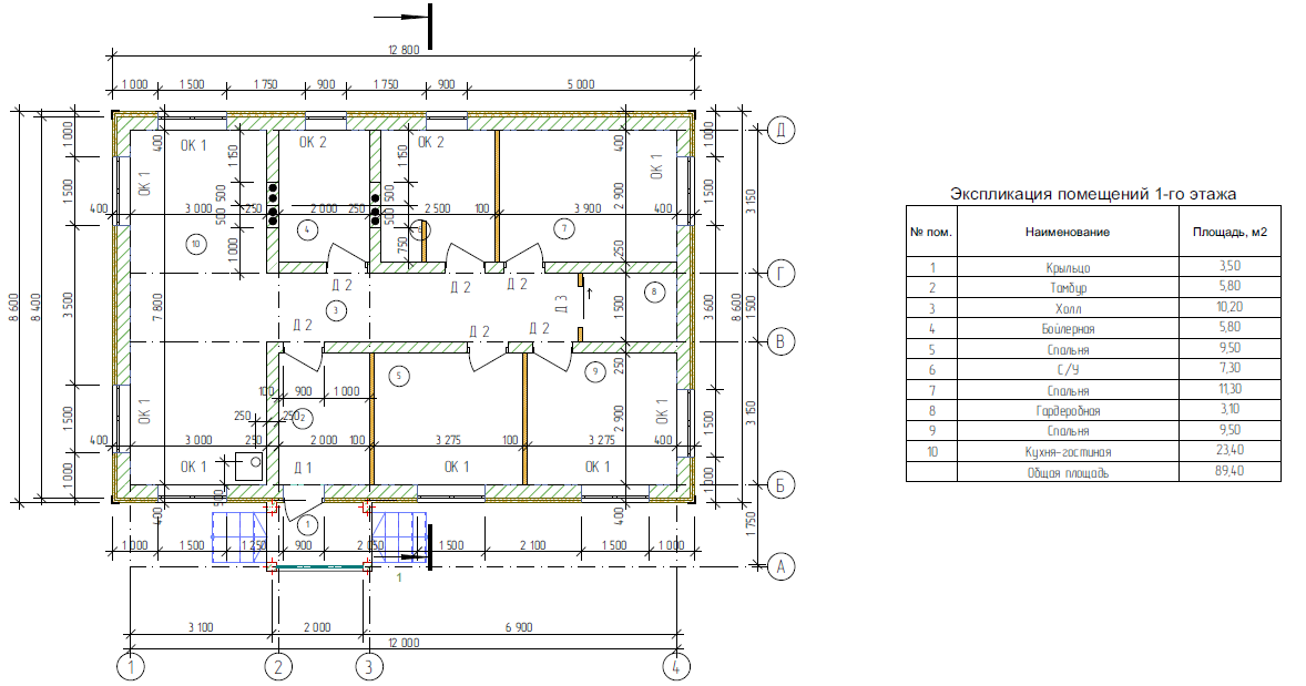
Ещё совсем недавно наше строительство было только в голове и на бумаге в виде нарисованной вручную планировки. Было много сомнений о необходимости заказа проектной документации. Здравый смысл победил и был заказан проект. И вот наконец-то он получен и уже на руках.

Фото автора
Фото автора

Если сравнивать с предыдущей редакцией, то внимательный читатель заметит разницу. Смотрю в документацию и понимаю, что не зря потратил немножко денег и надеюсь, что на этом я больше сэкономлю. Это мы увидим в процессе или по окончанию строительства.

И вот тут, именно тут в голову забираются страхи. Понимание того, во что я вписываюсь.

Бригада разнорабочих не оставила шансов старому дому.
Бригада разнорабочих не оставила шансов старому дому.

Вот так. Был домик и его не стало.

В данный момент жду предложений от строительных компаний по возведению коробки. Но что-то мне подсказывает, что буду нанимать бригады. Слишком уж велИк аппетит СК.

С надеждой и лучшими пожеланиями к Вам.