Найти в Дзене

Проект дома 314 м2 (470 с цоколем) в стиле Русского зодчества 16-17 веков

Эксклюзивный современный проект дома с цокольным этажом с элементами русской архитектуры 16-17 веков.
проект дома архитектура России
Заказчик захотел чего-то необычного, креативного при проектировании своего будущего коттеджа.
Как обычно, оказалось, что новое - это незаслуженно забытое старое, родное, а точнее архитектура России.

Эксклюзивный современный проект дома с цокольным этажом с элементами русской архитектуры 16-17 веков.

проект дома архитектура России
проект дома архитектура России

Заказчик захотел чего-то необычного, креативного при проектировании своего будущего коттеджа.

Как обычно, оказалось, что новое - это незаслуженно забытое старое, родное, а точнее архитектура России.

После нескольких консультаций был достигнут консенсус концепции будущего здания - проект двухэтажного дома делаем в старых добрых русских традициях с применением современных строительных материалов и технологий малоэтажного строительства.

В качестве основы была взята архитектура Петровских палат, названных так в честь царя Петра 1.

Подобная архитектура сохранилась в исторических центрах некоторых городов России.

Визуализации, которые видите, создавались с помощью техники графики.

Представленный проект дома состоит из архитектурного раздела и разрабатывался двумя специалистами - архитекторами:

- входная группа с колоннами, арками, куполом со шпилем;

- наружная деревянная лестничная группа с резными колоннами, куполом со шпилем;

- веранда 17,7 кв. м с арками;

- два экера;

- металлические коньки гребни на крыше;

- множество других декоративных архитектурных элементов.

Конструктивный раздел можем выполнить по новому техническому заданию под конкретные строительные материалы.

Конструктив проекта, при желании, разработаем без цокольного этажа, с другими изменениями.

В конструктиве обязательно будет сводная таблица с подсчетом основных материалов строительства (кирпич, блоки, бетон, арматура, пиломатериалы, утеплитель и т.д.).

Сводная таблица основных материалов служит для закупки и, в дальнейшем, составления сметы.

Перед началом работ были, в который уже раз, пересмотрены работы Судейкина, других российских архитекторов.

Кстати, сборник Судейкина 1913 г. можно посмотреть в Яндекс Дзен по этой ссылке:

альбом проектов из серии архитектура России

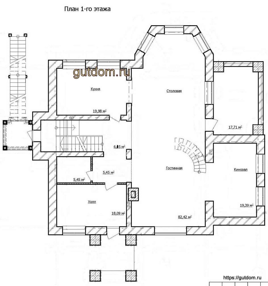
Размеры коттеджа в плане составляют 17 на 17 метров - без входного крыльца и деревянной лестницы.

План первого этажа:

планировка дома первый этаж
планировка дома первый этаж

Обозначения помещений условные.

Например, помещение, обозначенное на первом этаже как кинозал площадью 19,4 м2, использовать как спальную комнату; веранду первого этажа также запроектировать спальной комнатой, внесем другие изменения.

План второго этажа:

планировка дома второй этаж
планировка дома второй этаж

План цокольного этажа:

планировка дома цокольный этаж
планировка дома цокольный этаж

Архитектурный раздел состав:

-5

Заказать, посмотреть концепции (планировки с визуализациями), готовые проекты можно посмотреть по ссылке:

каталог проектов

Так выглядит готовый проект двухэтажного дома (архитектурный раздел) - архитектура России, коллаж:

-6
-7
-8
-9