Найти в Дзене

Оптимальное решение: компактные одноэтажные дома для большой семьи, 4-5 спален

Учитывая возрастающий интерес к одноэтажному частному жилью, мы разработали варианты одноэтажных домов для постоянного проживания или сезонного отдыха многочисленной, разновозрастной семьи. В таком загородном доме, в котором насчитывается четыре — пять жилых комнат, не считая гостиной и столовой, всем найдется место.

Традиционно загородный дом для большой семьи — двухэтажный или с третьим мансардным этажом. Таких домов в нашем каталоге предусмотрено множество, но учитывая возрастающий интерес к одноэтажному частному жилью, нами были разработаны также варианты одноэтажных домов для постоянного проживания или сезонного отдыха многочисленной, разновозрастной семьи: с бабушками, дедушками, внуками и другой родней, которая если и не живет постоянно, то частенько наведывается в гости.

Подписывайтесь на наш канал Яндекс ДЗЕН , прежде чем читать дальше. У нас – только уникальные авторские проекты домов.

В одноэтажном загородном доме , в котором насчитывается четыре — пять жилых комнат, не считая гостиной и столовой, всем найдется место.

При этом, это не обязательно большие по площади дома! В предложенных одноэтажных коттеджах — компактность достигается рациональным решением планировки.

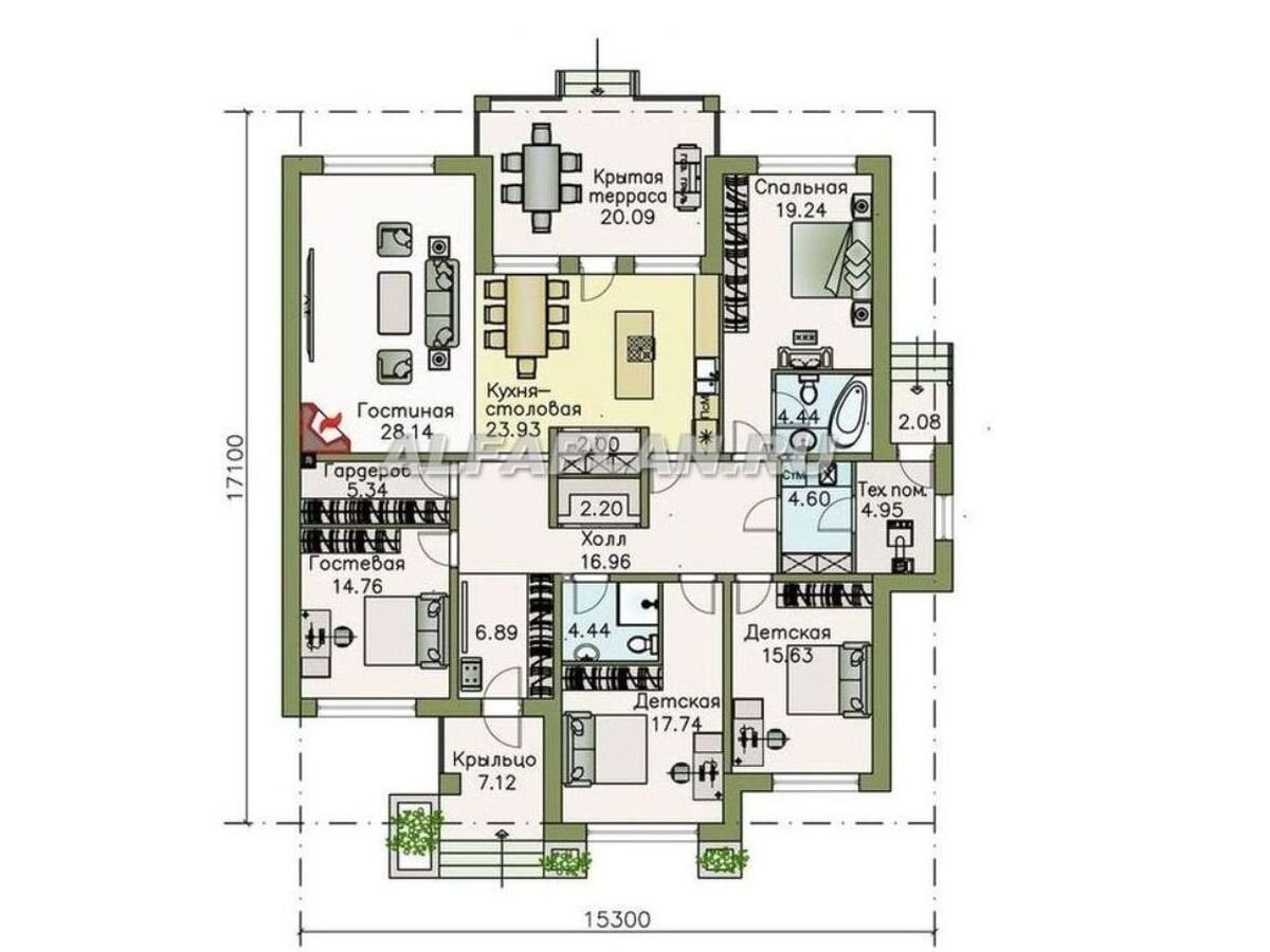
Комфортного размещения многочисленной семьи можно добиться и в небольших домах. Примером тому - проект одноэтажного дома 304В "Выбор удачи" с 4 спальнями. При площади 137 м2 в доме есть все необходимое для комфортной жизни.

Загородный дом 304В "Выбор удачи" разделен в плане на общую и спальные зоны, которые находятся по разные стороны от входа и прихожей. Спальные комнаты вынесены в отдельный функциональный блок. Кухня объединена с гостиной-столовой, и таким образом, выгорожена еще одна, дополнительная комната для кабинета – компьютерной или для гостевой комнаты.

Проект одноэтажного дома 630А «Ангара» с 4 (5) жилыми комнатами, имеет общую площадь 159 м2 и отличается простой и логичной планировкой.

В центре коттеджа 630А "Ангара" находится излюбленное место сбора семьи - гостиная-столовая с камином и примыкающая к ней кухня. Жилые комнаты расположены по обе стороны от гостиной, двумя блоками. В первом блоке загородного дома – три спальных, ванная и душевая. Во втором с – две спальных и санузел. Эта зона может быть использована в качестве спа, с сауной и комнатой отдыха или как гостевая часть дома. Здесь же, как вариант, может проживать, старшее или младшее поколение семьи.

Проект одноэтажного дома 728А «Зодиак» площадью 167м2 также имеет два варианта планировки дома: с 5 спальнями или с 4 спальнями и сауной.

Планировка дома 728А "Ангара" логична и также отвечает потребностям большой семьи. На входе в дом – просторная прихожая с гардеробной. Гостиная, столовая и кухня образуют единое пространство практически квадратной формы 45 м2 с высокими потолками. Терраса примыкает непосредственно к столовой-кухне. По одну сторону от гостиной – две спальни с душевой для детей, по другую – спальня хозяев и гостевая. Гостевая комната может быть заменена на сауну. Кабинет при необходимости также может служить спальней.

Строительство домов под ключ может быть выполнено в любом регионе России. Готовые проекты домов требуют ПРИВЯЗКИ к участку строительства .

Проект дома цена: актуальную стоимость можно уточнить у наших консультантов или на сайте.

Рассмотреть и заказать эти или другие варианты проектов коллекции "Одноэтажная Россия" можно по ссылке.

«Фото построенных домов » – более 450 фотогалерей строительства домов по нашим проектам.

Поделитесь мнением о проекте дома, и расскажите о нем друзьям. Еще больше интересных постов в нашем Telegram.

Стройте дома по проектам ® Альфаплан!

Проект разработан архитектурным бюро ® «Альфаплан». У нас – только уникальные авторские проекты домов. Архитектурный проект дома является охраняемым объектом авторского права. Воспроизведение визуализаций проекта и/или его частей разрешается с обязательным указанием имени автора и активной гиперссылки на источник.

#загородный дом #одноэтажный дом #проект под ключ #планировка дома #строительство домов