Найти в Дзене

Что такое антресоль или спор с архитектором

По материалам проекта RuDomVilla
Все пространство в дело
Как уже рассказывали раньше, мы приступили к работе с архитектором по проектированию нашего будущего загородного дома. Конечно, до решения о сотрудничестве со специалистом по проектированию было просмотрено миллиард миллионов вариантов типовых проектов, проштудировано тысяча сайтов экспертов, просмотрены сотни сайтов продаж загородных домов

По материалам проекта RuDomVilla

Все пространство в дело
Все пространство в дело

Как уже рассказывали раньше, мы приступили к работе с архитектором по проектированию нашего будущего загородного дома. Конечно, до решения о сотрудничестве со специалистом по проектированию было просмотрено миллиард миллионов вариантов типовых проектов, проштудировано тысяча сайтов экспертов, просмотрены сотни сайтов продаж загородных домов по всему миру, но ни одно предложение не подошло нашим запросам. Единственным выходом из сложившейся ситуации была разработка собственного проекта. Посмотрим в финале насколько это было оправдано и по комфорту жизни и экономии бюджета строительства.

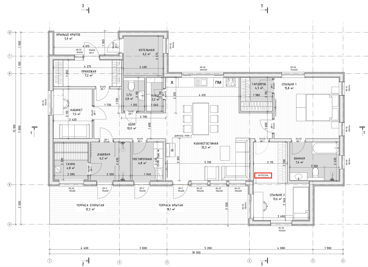
Получили первый набросок будущей планировки дома по результатам наших совместных с архитектором мозговых штурмов. Первое впечатление, что это практически то, что нам нужно. Но как говорится дьявол кроется в деталях.

Планировка будущего загородного дома
Планировка будущего загородного дома

Мы решили, что раз дом у нас будет одноэтажный с двускатной крышей, то обязательно нужно использовать потолочное пространство для организации зоны второго уровня с возможностью уединения и дополнительного спального места, для тех кого обычно не зовут. В техническом задании сформулированном специалистом для проектировании особо отметили данное пожелание и казалось, что понимание конечного варианта было на 100%. Так вот, если внимательно присмотреться на планировку, то можно найти небольшое слово "антресоль". То есть в итоге дизайнер нашего дома предложил сделать антресоль в спальне номер 2 и организовал там дополнительное спальное место. Такое решение в принципе нами не рассматривалось. Наше воображение рисовало нечто следующее:

Наше представление антресоли
Наше представление антресоли

Решили перепроверить в Википедии, что же такое антресоль и были удовлетворены ее ответом.

Антресоль это верхний полуэтаж, встроенный в объём основного этажа, имеющий низкий потолок (может быть под уклоном). Но с другой стороны по народному справочнику антресолью называется также верхняя часть высокой комнаты, разделённой на два полуэтажа.

Получилось, что в принципе архитектор и мы под словом антресоль понимали разные допустимые решения. Хорошо, подумали мы, что выбрали этого архитектора, да и вообще что пошли по такому пути, так как перед началом объемного проектирования мы совместно обнаружили этот казус, существенно влияющие на все дальнейшие шаги. Теперь ждем коррекции планировки.

Сравнить проекты домов непросто, попробуйте сами посмотреть сайты загородных домов. РуДомВилла профессионально занимается сравнением и предоставлением полной информации своим клиентам, поэтому поможем и Вам.

Выставочный экспонат
Выставочный экспонат

Ставим лайки и подписываемся на наш канал, чтобы котики были всегда дома!

Пишите комментарии по планировке и высоте потолка в антресоли, указанной в статье, нам важно ваше мнение.