Найти в Дзене
ПрофильЛес

Одноэтажный дом-баня 10х10, проект и планировка

Несмотря на приличные размеры сруба - 10 на 10 метров, это функционально баня, поскольку там предусмотрены помещения для

Изготовили и отправили комплект сруба из профилированного бруса камерной сушки для бани в Переславский район, включая обвязочный брус, обработанный специальным составом.

Сруб изготавливался по проекту бани фирмы "Переславский ландшафт". Сборка производилась бригадой заказчика. 

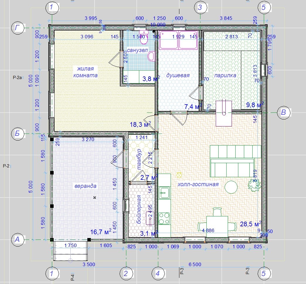
Несмотря на приличные размеры сруба - 10 на 10 метров, это функционально баня, поскольку там предусмотрены помещения для парилки и мойки, а также комната отдыха и гостевая комната, просторная веранда под общей кровлей для продолжения отдыха на улице. 

Использовался брус толщиной 140 мм. Для бани этого достаточно и зимой. В комплекте поставки сразу предусмотрен нижний обвязочный брус, пропитанный антисептическими составами в заводских условиях, чего нельзя выполнить непосредственно на площадке.

планировка
планировка

Визуализация проекта

-2
-3
-4

Домокомплект в сборе

-5
-6

Что в итоге получилось у наших коллег:

https://p76.ru/upload/resize_cache/iblock/609/841_631_1/609b8e7b8f6cc4309d5700f19e0a9254.jpg
https://p76.ru/upload/resize_cache/iblock/609/841_631_1/609b8e7b8f6cc4309d5700f19e0a9254.jpg
https://p76.ru/upload/resize_cache/iblock/203/841_631_1/2032aa6c731019110f08d2ef852bfe2d.jpg
https://p76.ru/upload/resize_cache/iblock/203/841_631_1/2032aa6c731019110f08d2ef852bfe2d.jpg

На сайте компании "ПрофильЛес" вы можете заказать сухой профилированный брус с пазогребневым профилем непосредственно от производителя различных сечений: 100х100, 100х150, 150х150, 150х190 мм. из северного вологодского леса камерной сушки.

Производим  домокомплекты домов и бань из профилированного бруса камерной сушки.

Посмотрите другие статьи про готовые бани:

Уютная баня для долгих посиделок

Проект бани и реальные фото. Что получилось

Готовая баня 5х8м, стоимость и комплектация

Подписывайтесь на канал, здесь мы публикуем проекты домов, готовые объекты, идеи. 👍