Добавить в корзинуПозвонить
Найти в Дзене

Проект одноэтажного дома с мансардой 200 кв. м АК34-манс: семь спален!

Готовый проект одноэтажного дома с мансардой общей площадью 200 м2 состоит из полного комплекта архитектурно-строительных чертежей, необходимых для строительства.
проект одноэтажного дома с мансардой вид 1
За основу был взят популярный проект дома, который на Яндекс Дзен можно посмотреть по ссылке:
АК-34-21

Готовый проект одноэтажного дома с мансардой общей площадью 200 м2 состоит из полного комплекта архитектурно-строительных чертежей, необходимых для строительства.

проект одноэтажного дома с мансардой вид 1
проект одноэтажного дома с мансардой вид 1

За основу был взят популярный проект дома, который на Яндекс Дзен можно посмотреть по ссылке:

АК-34-21

Идея простая:

спроектировать одноэтажный коттедж, прибавив жилую мансарду для увеличения площади до приличных 200 кв. м.

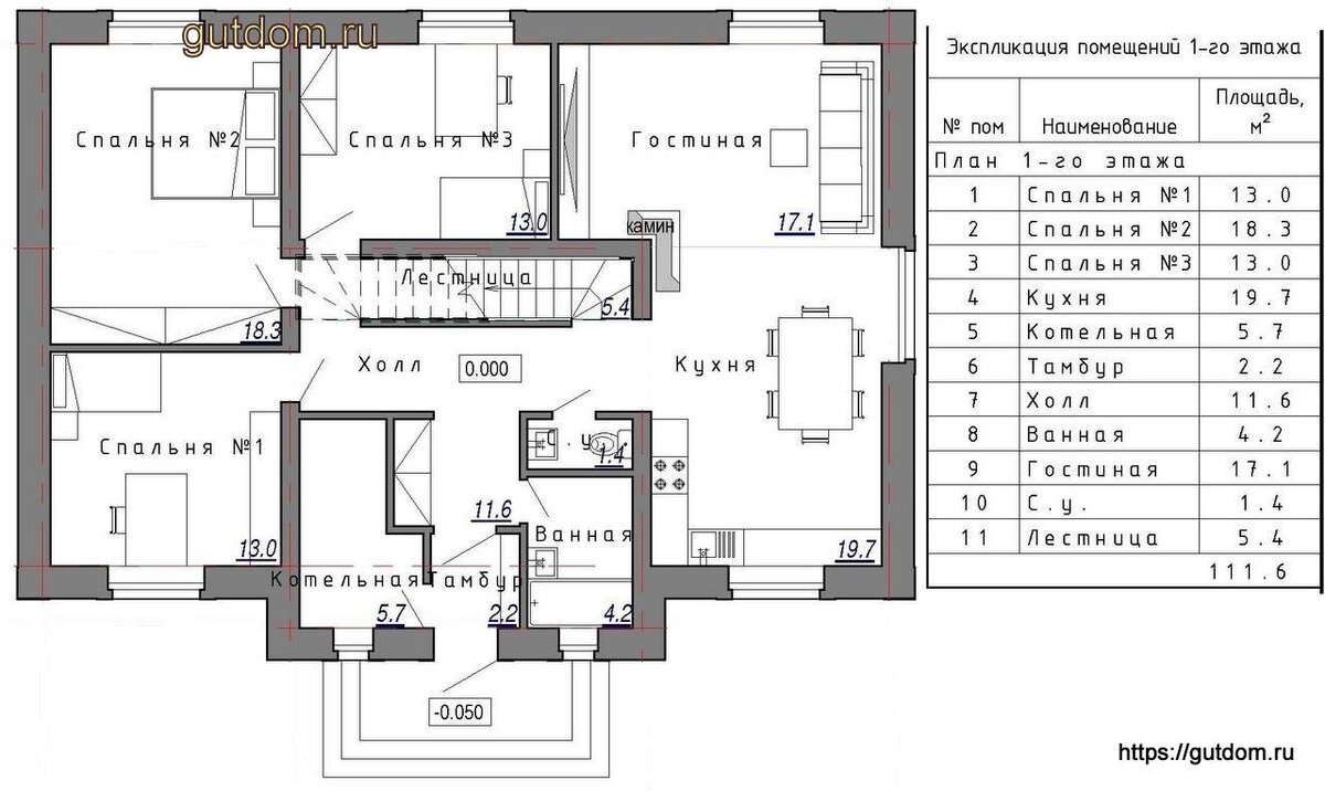
Итог получился впечатляющим - план первого этажа включает три спальные комнаты и гостиную, плюс на мансарде ещё три спальные комнаты.

планировка одноэтажного дома
планировка одноэтажного дома

И не сказать, что в плане коттедж имеет большие размеры - 14,2 на 10,2 метров.

Проект одноэтажного дома с мансардой будет комфортен для большой семьи, для гостей место также найдется.

планировка мансарды одноэтажного дома
планировка мансарды одноэтажного дома

В проекте:

- возможны изменения по желанию заказчика, в том числе корректировка фундамента и стропильной системы с учетом региона строительства;

- подсчитаны основные материалы строительства.

Напоминаю, что таблица с расчетом объемов основных материалов строительства необходима при закупке стройматериалов и, в дальнейшем, составления сметы строителями.

Заказать, посмотреть концепции (планировки с визуализациями), а также несколько десятков готовых проектов можно по ссылке:

каталог домов

-4
-5