Найти в Дзене
Дизайн&Ремонт

26+ ПЛАНИРОВОЧНЫХ РЕШЕНИЙ ПО ОДНОЙ КВАРТИРЕ. А ВЫ ТАКОЕ ВИДЕЛИ?😉 Москва, Усиевича, дом 10.

Это не шутка. Действительно, было выполнено более 26 планировочных решений. Ну, самих планировочных не 26, конечно, думаю штук 7-8, а далее мы творили разные варианты расстановки мебели, немного меняя планировку.
Если среди читателей есть собственники квартир на Усиевича, дом 10 в Москве и ваша планировка совпадает, я и мой заказчик дарим вам 26 вариантов на выбор)))
Чем же это примечательно,
Оглавление

Это не шутка. Действительно, было выполнено более 26 планировочных решений. Ну, самих планировочных не 26, конечно, думаю штук 7-8, а далее мы творили разные варианты расстановки мебели, немного меняя планировку.

Если среди читателей есть собственники квартир на Усиевича, дом 10 в Москве и ваша планировка совпадает, я и мой заказчик дарим вам 26 вариантов на выбор)))

Чем же это примечательно, казалось бы, обычная работа. Но в моей практике еще ни когда не было такого, что бы мы ушли за рамки 5-6 вариантов.

Как все происходило))

При работе над этой квартирой сразу были выявлены некоторые сложности. Ну, для начала посмотрим что есть где..

проектировщик Иванова Ж.Н.
проектировщик Иванова Ж.Н.

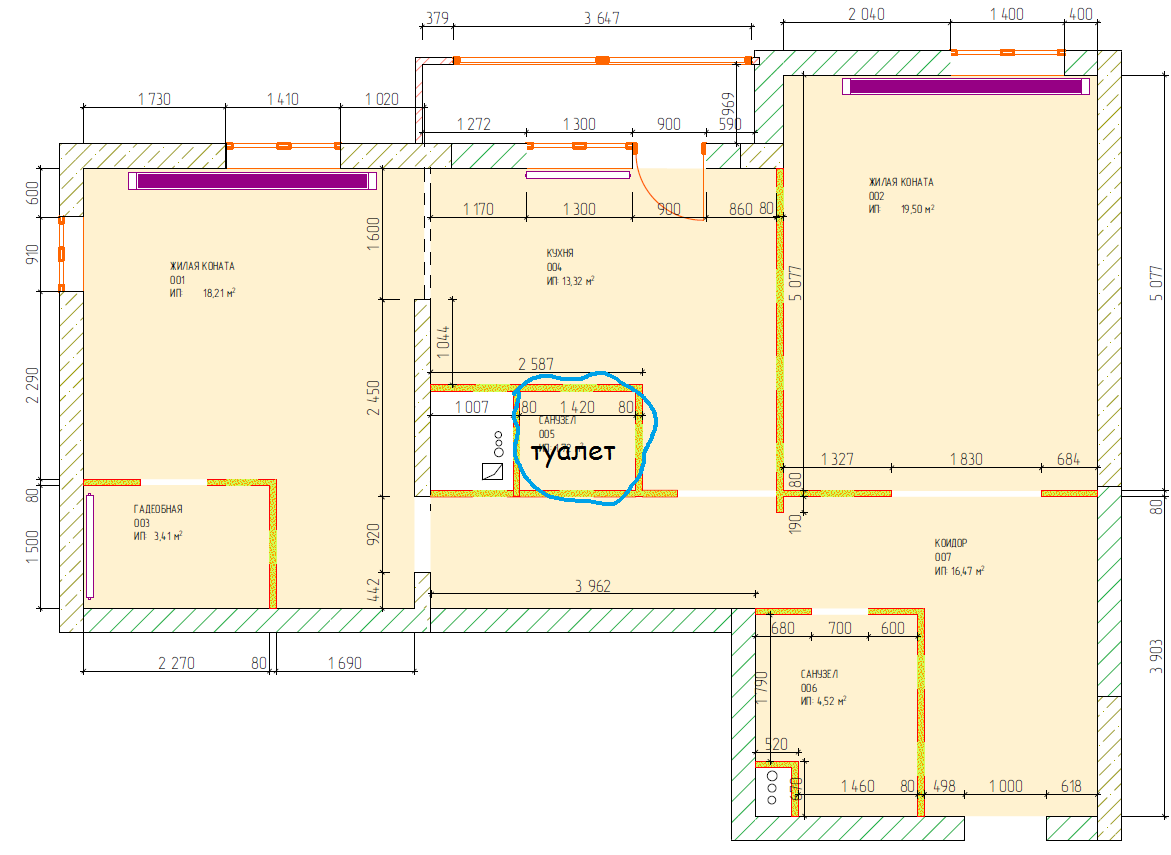
Посередине квартиры нас ждал сюрприз 🙈. Как можно видеть, огромный короб и туалет, который так и хочется убрать и увеличить кухню! И все бы было хорошо, но ФЗ гласит:

Нельзя располагать кухню под санузлами.

А выше нас квартира и они, вполне вероятной захотят там оставить санузел. Это грубое нарушение и включить территорию туалета в кухню мы ни как не можем.

Как мы вышли из этой ситуации см. в конце статьи, там где я представлю вам окончательный утвержденный вариант.

У меня есть правило - работаю до результата. Я не беру доплаты за каждый вариант свыше трех. Но, как правило, больше пяти и не бывает, а в три укладываемся довольно часто. И вот мы отработали один вариант, второй, третий... девятый.. И очевидно, что это не все.

Я сначала была в растерянности и пожалела о пункте в договоре, что работаем до результата. Но, тут сама заказчица, а она человек творческий, подключилась к процессу и стала мне скидывать и свои варианты. И дело даже не в том, что и заказчик подключилась к работе. Моя заказчица, а точнее заказчики (муж и жена) настолько позитивные и легкие люди, что вот так с шутками о том, что не время принимать решение, ибо меркурий из кого-то не вышел ( это шутка была) и т.п. мы работали 2 месяца над планировкой и расстановкой мебели.

Вроде бы стоило и попереживать.. ну когда же.. но сколько же можно.. Но нет. Все прошло на полном позитиве и спортивном азарте)))

Мне стало интересно😉 Как говорят: спортивный интерес проснулся, а сколько же вариантов можно сделать на одну квартиру😶

И, вот вашему вниманию 26 планировок, расстановок мебели глобальный и нет 🌌

И вот то, что мы утвердили. Здесь, правда то же не все совсем просто))) Нам по кухне не хватает 4 см. Но, как говорится: Видим цель - не видим препятствий.

И обещанное планировочное решение и расстановка мебели, которые были утверждены

проектировщик Иванова Ж.Н.
проектировщик Иванова Ж.Н.

А вот так мы увеличили кухню, но по экспликации не залезли под санузел.

проектировщик Иванова Ж.Н.
проектировщик Иванова Ж.Н.

Завтра приступаем к возведению перегородок, с удовольствием расскажу какое решение было принято по этим предательским 4 см. 😉

А какой вариант выбрали бы вы?

Всем доброго дня и отличного настроения!

Подписывайтесь на канал и вы всегда будете в курсе новых публикаций!