Добавить в корзинуПозвонить
Найти в Дзене
atmosfera design

Процесс проектирования, дизайн интерьера

“От замера до альбомов”
Создать хороший дизайн интерьера без тщательного планирования невозможно.
Иначе может получиться проект, который придется переделывать.
К счастью, есть несколько вещей, способных исправить ситуацию.
Этапы проектирования дизайна интерьера квартиры или дома.

Спальня из нашего проекта в ЖК "Жемчужный берег"
Спальня из нашего проекта в ЖК "Жемчужный берег"

Создать хороший дизайн интерьера без тщательного планирования невозможно.

Иначе может получиться проект, который придется переделывать. К счастью, есть несколько вещей, способных исправить ситуацию.

Этапы проектирования дизайна интерьера квартиры или дома.
С чего начинается любой проект?

Примечание

Частично эту тему мы уже затрагивали в статье про стоимость дизайн-проекта, рекомендуем почитать.

Составление дизайна интерьера может стать “камнем преткновения”, если не знать, с какого именно момента начать. Как правило, такая ситуация возникает при самостоятельном планировании проекта. Чтобы избежать ошибок читай статью топ ошибок самостоятельного ремонта (которые могут привести к переделке или перерасходу материалов), лучше обратиться в дизайнерскую организацию (дизайн-студию) например, в компанию полного цикла: она предоставляет услуги не только дизайнера, но и других необходимых специалистов.

А пока расскажем о основных этапах проектирования пространства. С чего начинается любой проект? Конечно с замера помещений.

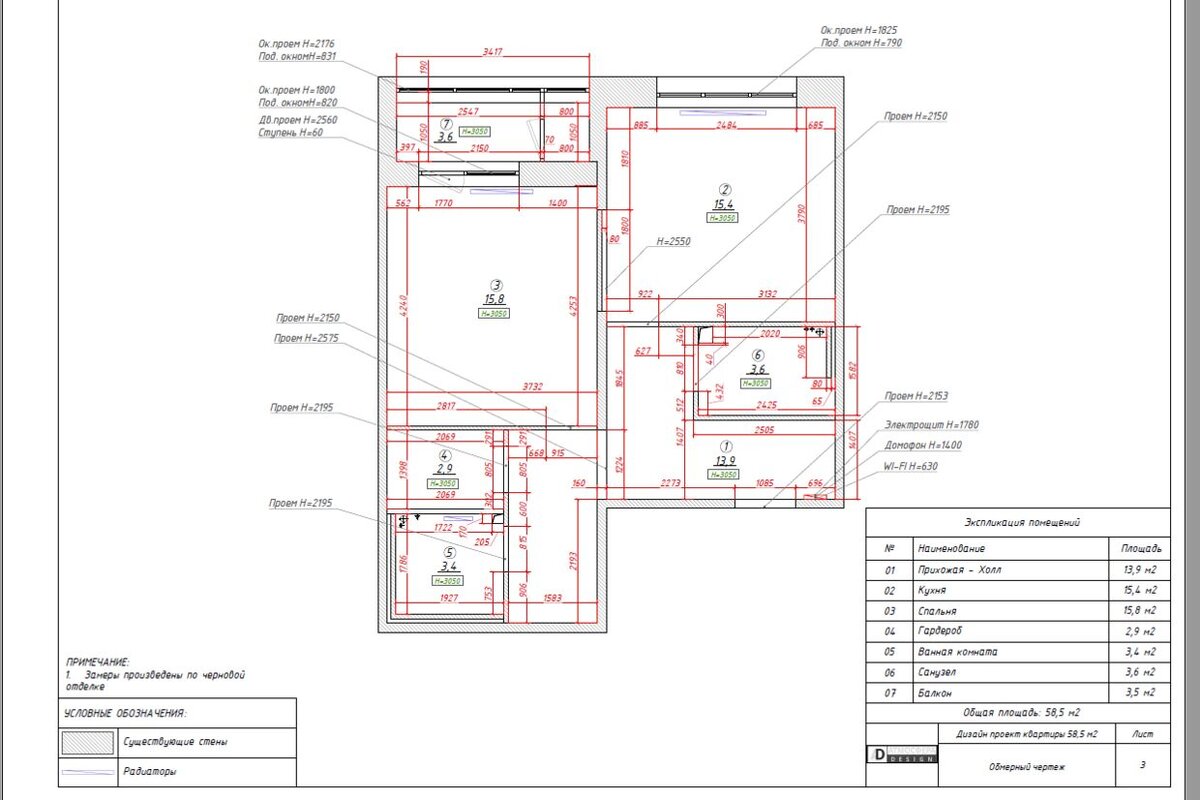
1. Замер помещения и создание чертежного плана

Обмерный план
Обмерный план

Сначала дизайнер знакомится с планом БТИ, потом измеряет параметры комнат (ширину, высоту, длину) и переносит получившиеся величины на отдельный лист. Затем обозначает:

  • ширину стен;
  • положение окон, дверных и других ниш;
  • места несущих конструкций
  • инженерные коммуникации.
  • После замера выбирается масштаб и составляется первоначальный план всех комнат - в специальной программе.

Важный нюанс

Дополнительный замер помещения необходим, потому что чертежи из БТИ не всегда бывают верны, а если честно, информации в них не более 10% от всех необходимых замеров. И этой информации недостаточно, чтобы выполнить качественный дизайн проект.

Кстати, неточности даже в 1–2 сантиметра способны привести к тому, что одному (или нескольким) предметам на плане не хватит места.

2. Определение понравившихся решений

На этом шаге заказчику нужно подумать, какие детали в интерьере ему по душе, а какие лучше не использовать. Затем уточнить зоны перепланировки и функциональные зоны.

Особенно стоит учесть места под хранение бытовой утвари (такой как пылесос или утюг) и подходящие типы дверей и шкафов (от поворотных до раздвижных).

Также нужно определиться с цветовой гаммой и стилистическим направлением будущего пространства. Читайте статью про концептуальное решение.

3. Проработка планировочного решения

Сюда относятся все изменения по перепланировке и планировке помещения. Они обозначаются как правило на 3х листах: лист с планировочным решением, лист демонтажа и монтажа перегородок.

Сначала создается планировочное решение с вариантом расстановки необходимой мебели и оборудования. А потом на ее основании вычерчивается план демонтажа и монтажа.

На планировочном решении обязательно должны быть размеры!
На планировочном решении обязательно должны быть размеры!

4. Визуализация проекта

Кухня из нашего проекта в ЖК "Жемчужный берег"
Кухня из нашего проекта в ЖК "Жемчужный берег"

К этому этапу относится проработка объемного решения на основании концептуального - стилистического решения и согласованной планировки.

Этот этап позволяет максимально представить будущее пространство. Он помогает избежать противоречивых сочетаний материалов и создать гармоничное пространство будущего интерьера под его владельца.

5. Чертежи

Для того, чтобы построить прорисованное в 3d пространство, нужно правильно и понятно для строителей, выполнить рабочие чертежи, в которых будут отображены все технические элементы, материалы, узлы и привязки приборов, мебели.

К техническим элементам относятся розетки, выключатели, места ввода/вывода коммуникаций, разрезы потолков и т.д. Это нужно, чтобы после ремонта не пришлось покупать удлинители для бытовых приборов или заново вставлять выключатель в спальню, если он находится далеко от кровати. Или что то переделывать вовсе.

Также помимо коммуникаций и привязок электрики, необходимо указать, какая отделка и мебель запланирована в будущем интерьере. И обязательно – приложить в конце проекта объемы материалов. Это необходимо для того, чтобы по завершению этапа проектирования, клиент смог получить корректную смету по работам и отделочным материалам и понимал на какую сумму ему ориентироваться при реализации.

По итогу проектирования заказчик получает в результате 3 альбома:

  • Альбом с реалистичными картинками будущего интерьера;
  • Альбом с чертежами и объемами;
  • Альбом с материалами, светом и мебелью, которые были использованы в проекте. А также наименования магазинов, где это все можно купить.

На основании этого уже составляется смета и запускается стройка.

Вот и все.

После заключительного этапа проектирования, заказчику остается только организовать процесс работ и ждать результат.

Если же у него нет на это времени, можно воспользоваться услугой авторского надзора. Подробно про это можно почитать также на нашем сайте в соответствующем разделе